不動産 賃貸 マンション等の住宅情報:埼玉住まい情報


福島県田村市常葉町常葉(船引駅)の賃貸:物件詳細

  • 物件詳細
  • 情報の見方
  • 印刷用画面
交通
所在地
駅徒歩 賃料
管理費等
敷金/保証金
礼金
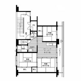
間取り
面積
物件種目
築年月

JR磐越東線/船引
【バス】20分 福島交通バス 常葉車庫 停歩8分

福島県田村市常葉町常葉

4.22万円

なし

なし / なし

なし

3DK

53.08m²

賃貸マンション

1994年12月(築31年1ヶ月)

おすすめPOINT角部屋、南向き、高齢者相談、二人入居可

おすすめコメント

フリーレント1ヶ月+最大3万円引越サポートあり! 初期費用や家賃の節約ならビレッジハウス♪来店不要で手続き可能!

間取図

間取図

外観

外観

<
その他の画像
  • キッチン
  • バス/シャワー
  • トイレ
  • 洗面
  • 収納
  • 玄関
  • バルコニー
  • その他
  • 駐車場
  • 共有部分
  • エントランス
  • その他
>
    • とりあえず保存
    • お問い合わせ
    交通

    JR磐越東線 船引駅
    【バス】 20分 福島交通バス 常葉車庫 停歩8分

    その他の交通

    JR磐越東線 磐城常葉駅 徒歩74分

    所在地 福島県田村市常葉町常葉
    物件種目 賃貸マンション
    賃料 4.22万円 管理費等 なし
    敷金 / 保証金 なし / なし 礼金 なし
    敷引 保証金償却
    その他一時金 退去時クリーニング費用:64,226円 保険等 要 2年 10,000円
    維持費等
    間取り 3DK 専有面積 53.08m²
    築年月 1994年12月(築31年1ヶ月) 階建 / 階 5階建 / 1階
    建物構造 RC 総戸数 40戸
    主要採光面 駐車場 有 3,300円/月
    バイク置き場 駐輪場
    建物名・部屋番号 ビレッジハウスときわ1号棟 0101 ペット
    アピールポイント フリーレント1ヶ月+最大3万円引越サポートあり!
    初期費用や家賃の節約ならビレッジハウス♪来店不要で手続き可能!
    敷金・礼金・更新料・鍵交換手数料0円!
    ※契約内容や審査の結果、敷金をお預かりする場合がございます。
    駐車場新規・既存とも2台目可(要誓約書)
    リフォーム履歴
    リノベーション履歴
    備考
    管理形態/管理員の勤務形態:-/-
    ●短期解約違約金あり
    ⇒1年未満解約は賃料等の3ヵ月分、2年未満は2ヵ月分
    ●法人契約の場合、賃料等の契約条件が異なる場合あり
    ●審査結果により敷金や連帯保証人を必要とする場合あり
    ●賃料に+1,000円でオプション設備追加可能
    ※お部屋の仕様により設置できない場合あり
    退去時クリーニング費用: 64,226円(税込)
    エネルギー消費性能
    断熱性能
    目安光熱費
    バス・トイレ バス・トイレ別、洗面所独立
    キッチン 2口コンロ、ガスコンロ付、ガスコンロ可
    セキュリティー
    収納
    設備・サービス 室内洗濯機置場、給湯、プロパンガス、エアコン
    TV・通信 インターネット対応、光ファイバー
    その他 バルコニー
    契約期間 2年 現況 空家
    条件等 入居可能時期 即時
    更新料 なし 物件番号 1182126702
    情報公開日 2025年10月28日 次回更新予定日 2025年12月20日
    ケータイ用バーコード

    QRコード

    スマートフォンでこの物件を見る
    スマートフォンからもこの物件をご覧になれます。
    ※「-」と表示されている項目については、情報提供会社にご確認ください。

    この物件の周辺情報

    周辺施設 シミズストア 常葉店
    距離 1048m

    クイックお問い合わせ

    ここから簡単にお問い合わせをすることができます。
    (SSLでの暗号化での送信を希望されるお客さまは こちら よりお問い合わせください)

    お問い合わせ内容(必須)
    お名前(必須) 姓  名 
    メールアドレス(必須)
    ※携帯電話のメールアドレスをご入力される方はこちらをご確認ください
    電話番号(必須)
    - -

    ※入力いただいた電話番号へSMSまたは音声でパスワードをご連絡します。

    携帯電話の番号をご入力の方へ

    携帯電話の番号をご入力の方へ
    確認画面にて送信ボタンをクリックするとSMSが携帯電話に届きます。
    そのSMSに記載のパスワード(認証番号)を入力し、お問い合わせを完了してください。
    尚、SMSの送信者番号は 0005 202 760 となります。
    これはアットホームの固定番号です。

    備考欄 希望条件、物件案内希望日、質問などがございましたらご記入ください。
    お問い合わせを行う前に「個人情報の取り扱いについて」を必ずお読みください。
    「個人情報の取り扱いについて」に同意いただいた場合は「上記にご同意の上 確認画面へ進む」のボタンをクリックしてください。

    個人情報の取り扱いについて

    皆さまが送付された個人情報はアットホーム(株)のサーバを経由し、お問い合わせ先の不動産会社にメールまたはFAXにて転送されるためアットホーム(株)にも保管されます。アットホーム(株)で保管された個人情報の取り扱いについては、【こちら】をご覧ください。
    また、本画面でご記入いただいた個人情報は、お問い合わせ先の不動産会社でも保管します。 お問い合わせ先の不動産会社が保管する個人情報の取り扱いについては、不動産会社に直接お問い合わせください。

    情報提供会社

    情報提供会社

    ビレッジハウス・マネジメント(株) 東北エリア

    東京都知事免許(2)第100758号

    交通:
    東京メトロ日比谷線/神谷町駅 徒歩1分
    東京都港区虎ノ門4丁目3-13 ヒューリック神谷町ビル4階
    TEL:
    0120-979-037
    FAX:
    03-6369-3978
    所属団体:
    (公財)日本賃貸住宅管理協会会員
    (公社)東京都宅地建物取引業協会会員
    (公社)首都圏不動産公正取引協議会加盟

    取引態様:貸主

    • 会社情報
    • 00269447
    スマートフォンで
    この不動産会社を見る
    QRコード
    • とりあえず保存
    • お問い合わせ
    • 提携サイト等より掲載されている物件情報につきましては、不動産会社詳細情報にリンクされていないものがあります。
    • 物件に関するお問合せは、物件詳細ページの「情報提供会社」に表示されている不動産会社へ直接お願いいたします。
    • 間取図は、現況を優先させていただきます。
    • 映像は物件の一部を撮影したものです。物件の契約にあたっての最終判断はご自身の判断に基づいて行ってください。
    • 仲介手数料について仲介手数料

    アットホームは物件情報の適正化に努めております。 内容に誤りがある場合にはこちらへご連絡ください。

    【埼玉住まい情報】では、日本全国の物件から賃貸マンションや賃貸アパート・賃貸一戸建て等の賃貸住宅情報、新築マンション・分譲マンションや中古マンション等の売買マンション情報、新築一戸建てや中古一戸建てなどの戸建住宅、 土地など、総合的な不動産住宅情報検索サービスを提供致します。
    【埼玉住まい情報】から、選りすぐりの不動産物件を探してみましょう。

    【免責事項】
    このコーナーの運営はアットホーム株式会社(https://www.athome.co.jp/)が行っています。
    このコーナーに掲載している物件情報は、「アットホーム不動産情報ネットワーク」に加盟する不動産会社等(情報提供元)から提供されています。信頼性の高い情報提供が行えるよう、最大限の努力をしておりますが、その内容を保証するものではありません。 利用者のみなさまと各情報提供元との取引に起因する損害および情報が掲載されたことに起因する損害等については、株式会社イーシティ埼玉、およびアットホームは一切責任を負いません。
    各物件情報の内容や画像等はすべて現況を優先させていただきます。
    お取引等(お取引の準備、資金調達等を含みます)の際には、内容や契約条件等について、各情報提供元より十分な説明を受け、ご自身でご確認の上、判断してください。
    このコーナーへの物件情報のご掲載、その他不動産業務ソリューション等についての不動産会社様のお問合せはこちらからお願いいたします。

    物件画像: