千葉県松戸市小金原7丁目(常盤平駅)の賃貸:物件詳細
交通 所在地 |
駅徒歩 |
賃料 管理費等 |
敷金/保証金 礼金 |
間取り 面積 |
物件種目 築年月 |
|
京成松戸線/常盤平
千葉県松戸市小金原7丁目
|
18分
|
9.7万円
3,000円
|
1ヶ月 / なし
1ヶ月
|
2LDK
53.62m²
|
賃貸アパート
2026年2月
|
最上階、南向き、高齢者相談、二人入居可、保証人不要
|
|
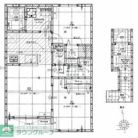
間取図
間取図
|
|
その他の画像
|
| 交通 | 京成松戸線 常盤平駅 徒歩18分 |
|---|
| その他の交通 | JR千代田・常磐緩行線 北小金駅 【バス】 14分 笹塚 停歩4分 |
| 所在地 |
千葉県松戸市小金原7丁目
|
| 物件種目 |
賃貸アパート |
| 賃料 |
9.7万円 |
管理費等 |
3,000円 |
| 敷金 / 保証金 |
1ヶ月 / なし |
礼金 |
1ヶ月 |
| 敷引 |
- |
保証金償却 |
- |
| その他一時金 |
なし、鍵交換代等:16,500円~ |
保険等 |
要 2年 29,000円 |
| 維持費等 |
はじめclub off:1,100円/月 |
| 間取り |
2LDK(LDK11.3帖 洋室5.2帖 洋室4.5帖) |
専有面積 |
53.62m² |
| 築年月 |
2026年2月
|
階建 / 階 |
2階建 / 2階 |
| 建物構造 |
木造 |
総戸数 |
1戸 |
| 主要採光面 |
南 |
駐車場 |
有 7,700円/月 |
| バイク置き場 |
- |
駐輪場 |
有 |
| 建物名・部屋番号 |
リーブルファイン松戸小金原 |
ペット |
-
|
| アピールポイント |
クレジットカード作成なしで分割払いも可能な物件も多数ございます!(審査あり)初期費用クレジットカード決済も可能!当店では、ご来店いただかなくてもお部屋のご内見、ご契約まで全てオンラインでのご対応が可能 |
| リフォーム履歴 |
- |
| リノベーション履歴 |
- |
| 備考 |
賃貸保証等:加入要(加入要 / 賃貸保証会社:株式会社エポスカード【初回】月額合計の50%【毎月】1,000円)
管理形態/管理員の勤務形態:-/-
人気物件はすぐに申込が入ってしまいます!先行申し込み・先行契約ご対応可能です。お早めにご連絡ください!LINEでのお部屋探し、やり取りも可能でスムーズです♪
|
| エネルギー消費性能 |
- |
| 断熱性能 |
- |
| 目安光熱費 |
- |
| バス・トイレ |
バス・トイレ別、浴室乾燥機、追焚機能、シャワー付洗面化粧台、洗面所独立、洗面所、洗面台、温水洗浄便座、トイレ |
| キッチン |
システムキッチン、3口以上コンロ、ガスコンロ付、グリル |
| セキュリティー |
モニター付インターホン、ディンプルキー、ダブルロックドア |
| 収納 |
ウォークインクローゼット、収納スペース、クローゼット、シューズボックス |
| 設備・サービス |
エアコン2台以上、室内洗濯機置場、都市ガス給湯、給湯、都市ガス、エアコン |
| TV・通信 |
インターネット対応、インターネット使用料無料、ケーブルTV |
| その他 |
宅配BOX、バルコニー、駐輪場 |
| 契約期間 |
2年 |
現況 |
空家 |
| 条件等 |
- |
入居可能時期 |
2026年3月上旬予定 |
| 更新料 |
新賃料 1ヶ月 |
物件番号 |
1182252618 |
| 情報公開日 |
2026年1月5日 |
次回更新予定日 |
2026年3月15日 |
| ケータイ用バーコード |
- スマートフォンでこの物件を見る
- スマートフォンからもこの物件をご覧になれます。
|
※「-」と表示されている項目については、情報提供会社にご確認ください。
| 周辺施設 |
マルエツ小金原店 |
| 距離 |
550m |
写真を見る |
| 周辺施設 |
ヨークマート |
| 距離 |
680m |
写真を見る |
| 周辺施設 |
リブレ京成小金原店 |
| 距離 |
1240m |
写真を見る |
| 周辺施設 |
ビッグ・エー松戸常盤平店 |
| 距離 |
1510m |
写真を見る |
| 周辺施設 |
西友常盤平店 |
| 距離 |
1610m |
写真を見る |
| 周辺施設 |
おっ母さん食品館 |
| 距離 |
2130m |
写真を見る |
| 周辺施設 |
アコレ常盤平2丁目店 |
| 距離 |
2030m |
写真を見る |
ここから簡単にお問い合わせをすることができます。
(SSLでの暗号化での送信を希望されるお客さまは
こちら
よりお問い合わせください)
お問い合わせを行う前に
「個人情報の取り扱いについて」を必ずお読みください。
「個人情報の取り扱いについて」に同意いただいた場合は「上記にご同意の上 確認画面へ進む」のボタンをクリックしてください。
個人情報の取り扱いについて
皆さまが送付された個人情報はアットホーム(株)のサーバを経由し、お問い合わせ先の不動産会社にメールまたはFAXにて転送されるためアットホーム(株)にも保管されます。アットホーム(株)で保管された個人情報の取り扱いについては、【こちら】をご覧ください。
また、本画面でご記入いただいた個人情報は、お問い合わせ先の不動産会社でも保管します。 お問い合わせ先の不動産会社が保管する個人情報の取り扱いについては、不動産会社に直接お問い合わせください。
国土交通大臣免許(1)第9927号 |
|---|
- 交通:
- JR千代田・常磐緩行線/松戸駅 徒歩1分
- 千葉県松戸市本町15-6 グランシャリオ松戸1F
- TEL:
- 047-361-8877
- FAX:
- 047-361-8883
取引態様:仲介  - 00313240
|
- スマートフォンで
この不動産会社を見る

|
- 提携サイト等より掲載されている物件情報につきましては、不動産会社詳細情報にリンクされていないものがあります。
- 物件に関するお問合せは、物件詳細ページの「情報提供会社」に表示されている不動産会社へ直接お願いいたします。
- 間取図は、現況を優先させていただきます。
- 映像は物件の一部を撮影したものです。物件の契約にあたっての最終判断はご自身の判断に基づいて行ってください。
- 仲介手数料について

アットホームは物件情報の適正化に努めております。
内容に誤りがある場合にはこちらへご連絡ください。