不動産 賃貸 マンション等の住宅情報:埼玉住まい情報


東京都港区芝大門2丁目(大門駅)の賃貸:物件詳細

  • 物件詳細
  • 情報の見方
  • 印刷用画面
交通
所在地
駅徒歩 賃料
管理費等
敷金/保証金
礼金
間取り
面積
物件種目
築年月

都営浅草線/大門

東京都港区芝大門2丁目

3分

30.8万円

12,000円

なし / なし

なし

1LDK

66.72m²

賃貸マンション

2002年11月(築23年)

おすすめPOINTペット相談、常時ゴミ出し可能、高齢者相談、二人入居可、24時間換気システム、メゾネット

おすすめコメント  スタッフ: 山本 冬馬

共用部にはゴミ出し24時間OK・宅配ボックスなど様々な設備やサービスが揃っているので便利です。室内設備はエアコン・BS・CS・追い焚きなどが揃っているので、快適に過ごしやすいお部屋になります。

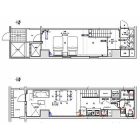
間取図

間取図

外観

外観

外観も気になるポイント

<
その他の画像
  • リビング
  • キッチン
  • バス/シャワー
  • トイレ
  • 収納
  • 室内
  • 設備
  • 玄関
  • エントランス
  • その他
  • 共有部分
  • 共有部分
  • 飲食店
  • 飲食店
  • 飲食店
  • その他
  • 販売店
  • コンビニ
>
    • とりあえず保存
    • お問い合わせ
    交通

    都営浅草線 大門駅 徒歩3分

    その他の交通

    都営三田線 芝公園駅 徒歩5分

    JR山手線 浜松町駅 徒歩6分

    所在地 東京都港区芝大門2丁目
    物件種目 賃貸マンション
    賃料 30.8万円 管理費等 12,000円
    敷金 / 保証金 なし / なし 礼金 なし
    敷引 保証金償却
    その他一時金 なし、鍵交換代等:16,500円~ 保険等 要 2年 24,000円
    維持費等
    間取り 1LDK(LDK15.4、洋12.5) 専有面積 66.72m²
    築年月 2002年11月(築23年) 階建 / 階 地上10階地下1階建 / メゾネット地下1階~1階部分
    建物構造 RC 総戸数
    主要採光面 西 駐車場 近有 40,000円/月
    バイク置き場 駐輪場 有 330円/月
    建物名・部屋番号 ハイリーフ芝大門 ペット 相談
    アピールポイント セキュリティ面は、オートロック・TVインターホンなど充実しているので、防犯対策もばっちりです。室内設備はBS・CS・追い焚き・ネット使用料不要など大変充実しております。共用部には宅配ボックス・ゴミ出し24時間OKなどが揃っております。共用部に防犯カメラが付いているので、不法投棄やいたずらの抑制につながります。ペットと離れたくない方にもご紹介したい、ペット相談可の物件です。徒歩3分の位置に駅がある物件です。エアコン付きの物件で、温度管理が楽々です。フローリングは防音性にも優れているのでニーズが高いです。引っ越しにもタイミングがあるかと思います。ぜひお聞かせください。敷地内ごみ置き場は、毎日のごみ捨ての煩わしさを軽減します。
    リフォーム履歴
    リノベーション履歴
    備考
    賃貸保証等:加入要(加入料:総賃料(賃料+共益費+駐輪料)の50% 更新料:1年ごとに総賃料の25%利用設備(駐車場・バ)
    管理形態/管理員の勤務形態:-/-
    室内設備はシステムキッチン・BS・CS・追い焚きなど大変充実しております。セキュリティ面は、オートロック・TVインターホンなど充実しているので、防犯対策もばっちりです。共用部には宅配ボックス・ゴミ出し24時間OKなど様々な設備やサービスが揃っているので便利です。敷地内ごみ置き場があるのとないのでは、利便性が全く違います。洋風なお住まいをお求めの方に適した全居室フローリングです。何品も作る場合でも同時に料理を進められる、2口コンロを備え付けております。こちらの物件はマンションです。駐輪場付きの物件です。引っ越しにもタイミングがあるかと思います。ぜひお聞かせください。引越しのときは何かとやることが多いですが、インターネット無料物件なのでネット回線に関する契約や工事の手間を省くことができます。
    エネルギー消費性能
    断熱性能
    目安光熱費
    バス・トイレ バス・トイレ別、追焚機能、温水洗浄便座、トイレ
    キッチン システムキッチン、独立型キッチン、2口コンロ
    セキュリティー モニター付オートロック、オートロック、モニター付インターホン、防犯カメラ
    収納 収納スペース、クローゼット
    設備・サービス 室内洗濯機置場、洗濯機置場、全居室フローリング、フローリング、エアコン、冷房
    TV・通信 インターネット対応、インターネット使用料無料、光ファイバー、CS、BS端子
    その他 宅配BOX、駐輪場、エレベーター
    契約期間 2年 現況 空家
    条件等 定期借家定期借家 入居可能時期 相談
    更新料 物件番号 1182258213
    情報公開日 2025年10月19日 次回更新予定日 2025年11月4日
    ケータイ用バーコード

    QRコード

    スマートフォンでこの物件を見る
    スマートフォンからもこの物件をご覧になれます。
    ※「-」と表示されている項目については、情報提供会社にご確認ください。

    この物件の周辺情報

    周辺施設 おかめ鮨
    距離 958m
    周辺施設 韓国料理ヨギヨ
    距離 1029m
    周辺施設 Boulangerie a la Demande(ブーランジェリー ア ラ ドゥマンド)
    距離 1546m
    周辺施設 エニタイムフィットネス 芝浜松町店
    距離 372m
    周辺施設 マルエツプチ 浜松町二丁目店
    距離 444m
    周辺施設 ファミリーマート 浜松町駅前店
    距離 288m

    クイックお問い合わせ

    ここから簡単にお問い合わせをすることができます。
    (SSLでの暗号化での送信を希望されるお客さまは こちら よりお問い合わせください)

    お問い合わせ内容(必須)
    お名前(必須) 姓  名 
    メールアドレス(必須)
    ※携帯電話のメールアドレスをご入力される方はこちらをご確認ください
    電話番号(必須)
    - -

    ※入力いただいた電話番号へSMSまたは音声でパスワードをご連絡します。

    携帯電話の番号をご入力の方へ

    携帯電話の番号をご入力の方へ
    確認画面にて送信ボタンをクリックするとSMSが携帯電話に届きます。
    そのSMSに記載のパスワード(認証番号)を入力し、お問い合わせを完了してください。
    尚、SMSの送信者番号は 0005 202 760 となります。
    これはアットホームの固定番号です。

    備考欄 希望条件、物件案内希望日、質問などがございましたらご記入ください。
    お問い合わせを行う前に「個人情報の取り扱いについて」を必ずお読みください。
    「個人情報の取り扱いについて」に同意いただいた場合は「上記にご同意の上 確認画面へ進む」のボタンをクリックしてください。

    個人情報の取り扱いについて

    皆さまが送付された個人情報はアットホーム(株)のサーバを経由し、お問い合わせ先の不動産会社にメールまたはFAXにて転送されるためアットホーム(株)にも保管されます。アットホーム(株)で保管された個人情報の取り扱いについては、【こちら】をご覧ください。
    また、本画面でご記入いただいた個人情報は、お問い合わせ先の不動産会社でも保管します。 お問い合わせ先の不動産会社が保管する個人情報の取り扱いについては、不動産会社に直接お問い合わせください。

    情報提供会社

    情報提供会社

    Sky Yard Property(株)

    東京都知事免許(1)第107337号

    交通:
    JR山手線/新橋駅 徒歩5分
    東京都中央区銀座8丁目11-1 GINZA GS BLD.2 7階
    TEL:
    03-6281-4770
    FAX:
    03-6281-4771
    所属団体:
    (公社)東京都宅地建物取引業協会会員
    (公社)首都圏不動産公正取引協議会加盟

    取引態様:仲介

    • 会社情報
    • 00271811
    スマートフォンで
    この不動産会社を見る
    QRコード
    • とりあえず保存
    • お問い合わせ
    • 提携サイト等より掲載されている物件情報につきましては、不動産会社詳細情報にリンクされていないものがあります。
    • 物件に関するお問合せは、物件詳細ページの「情報提供会社」に表示されている不動産会社へ直接お願いいたします。
    • 間取図は、現況を優先させていただきます。
    • 映像は物件の一部を撮影したものです。物件の契約にあたっての最終判断はご自身の判断に基づいて行ってください。
    • 仲介手数料について仲介手数料

    アットホームは物件情報の適正化に努めております。 内容に誤りがある場合にはこちらへご連絡ください。

    【埼玉住まい情報】では、日本全国の物件から賃貸マンションや賃貸アパート・賃貸一戸建て等の賃貸住宅情報、新築マンション・分譲マンションや中古マンション等の売買マンション情報、新築一戸建てや中古一戸建てなどの戸建住宅、 土地など、総合的な不動産住宅情報検索サービスを提供致します。
    【埼玉住まい情報】から、選りすぐりの不動産物件を探してみましょう。

    【免責事項】
    このコーナーの運営はアットホーム株式会社(https://www.athome.co.jp/)が行っています。
    このコーナーに掲載している物件情報は、「アットホーム不動産情報ネットワーク」に加盟する不動産会社等(情報提供元)から提供されています。信頼性の高い情報提供が行えるよう、最大限の努力をしておりますが、その内容を保証するものではありません。 利用者のみなさまと各情報提供元との取引に起因する損害および情報が掲載されたことに起因する損害等については、株式会社イーシティ埼玉、およびアットホームは一切責任を負いません。
    各物件情報の内容や画像等はすべて現況を優先させていただきます。
    お取引等(お取引の準備、資金調達等を含みます)の際には、内容や契約条件等について、各情報提供元より十分な説明を受け、ご自身でご確認の上、判断してください。
    このコーナーへの物件情報のご掲載、その他不動産業務ソリューション等についての不動産会社様のお問合せはこちらからお願いいたします。

    物件画像: