東京都杉並区西荻南2丁目(西荻窪駅)の賃貸:物件詳細
交通 所在地 |
駅徒歩 |
賃料 管理費等 |
敷金/保証金 礼金 |
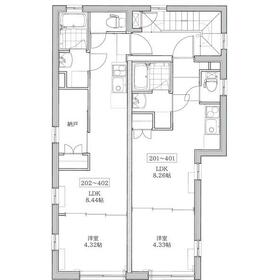
間取り 面積 |
物件種目 築年月 |
|
JR総武線/西荻窪
東京都杉並区西荻南2丁目
|
6分
|
15.5万円
10,000円
|
1ヶ月 / なし
なし
|
1LDK
30.54m²
|
賃貸マンション
2026年1月
|
ペット相談、角部屋、二人入居可
|
| 交通 | JR総武線 西荻窪駅 徒歩6分 |
|---|
| その他の交通 | JR中央線 西荻窪駅 徒歩6分 |
| 所在地 |
東京都杉並区西荻南2丁目
|
| 物件種目 |
賃貸マンション |
| 賃料 |
15.5万円 |
管理費等 |
10,000円 |
| 敷金 / 保証金 |
1ヶ月 / なし |
礼金 |
なし |
| 敷引 |
- |
保証金償却 |
- |
| その他一時金 |
ライフサポート24/2年ごと:16,500円 |
保険等 |
要 2年 17,000円 |
| 維持費等 |
- |
| 間取り |
1LDK(LDK8.44/洋室4.32) |
専有面積 |
30.54m² |
| 築年月 |
2026年1月
|
階建 / 階 |
地上4階地下1階建 / 3階 |
| 建物構造 |
RC |
総戸数 |
8戸 |
| 主要採光面 |
西 |
駐車場 |
- |
| バイク置き場 |
- |
駐輪場 |
- |
| 建物名・部屋番号 |
PRATIQUE西荻窪 402 |
ペット |
相談 |
| アピールポイント |
開催プレゼントキャンペーン開催!
新築WRCデザイナーズマンション!犬猫OK!
インターネット無料 |
| リフォーム履歴 |
- |
| リノベーション履歴 |
- |
| 備考 |
賃貸保証等:加入要(その他 エルズサポート 初回保証料総賃料の50%、月額保証料総賃料の1%(口座振替手数料含む)※外国籍サポートプラン加入時、別途月額2,200円)
管理形態/管理員の勤務形態:-/巡回
管理人巡回
ライフサポート24/2年ごと: 16,500円(税込)
保険料: 17,000円(税無) 2年
保証会社: 加入要
エルズサポート 初回保証料総賃料の50%、月額保証料総賃料の1%(口座振替手数料含む)※外国籍サポートプラン加入時、別途月額2,200円
解約予告: 2ヶ月前
|
| エネルギー消費性能 |
- |
| 断熱性能 |
- |
| 目安光熱費 |
- |
| バス・トイレ |
バス・トイレ別、浴室乾燥機、追焚機能、洗面所独立、温水洗浄便座 |
| キッチン |
カウンターキッチン、IHクッキングヒーター、2口コンロ |
| セキュリティー |
オートロック、モニター付インターホン、ダブルロックドア |
| 収納 |
- |
| 設備・サービス |
室内洗濯機置場、フローリング、都市ガス、エアコン |
| TV・通信 |
インターネット使用料無料 |
| その他 |
宅配BOX |
| 契約期間 |
2年 |
現況 |
完成済 |
| 条件等 |
- |
入居可能時期 |
即時 |
| 更新料 |
新賃料 1ヶ月 |
物件番号 |
1182472902 |
| 情報公開日 |
2026年1月17日 |
次回更新予定日 |
2026年3月6日 |
| ケータイ用バーコード |
- スマートフォンでこの物件を見る
- スマートフォンからもこの物件をご覧になれます。
|
※「-」と表示されている項目については、情報提供会社にご確認ください。
ここから簡単にお問い合わせをすることができます。
(SSLでの暗号化での送信を希望されるお客さまは
こちら
よりお問い合わせください)
お問い合わせを行う前に
「個人情報の取り扱いについて」を必ずお読みください。
「個人情報の取り扱いについて」に同意いただいた場合は「上記にご同意の上 確認画面へ進む」のボタンをクリックしてください。
個人情報の取り扱いについて
皆さまが送付された個人情報はアットホーム(株)のサーバを経由し、お問い合わせ先の不動産会社にメールまたはFAXにて転送されるためアットホーム(株)にも保管されます。アットホーム(株)で保管された個人情報の取り扱いについては、【こちら】をご覧ください。
また、本画面でご記入いただいた個人情報は、お問い合わせ先の不動産会社でも保管します。 お問い合わせ先の不動産会社が保管する個人情報の取り扱いについては、不動産会社に直接お問い合わせください。
東京都知事免許(10)第44219号 |
|---|
- 交通:
- 東京メトロ丸ノ内線/新宿御苑前駅 徒歩3分
- 東京都新宿区新宿2丁目3-12 光和ビル5F
- TEL:
- 03-6709-9250
- FAX:
- 03-6709-9252
- 所属団体:
- (公社)東京都宅地建物取引業協会会員(公社)首都圏不動産公正取引協議会加盟
取引態様:仲介  - 00265160
|
- スマートフォンで
この不動産会社を見る

|
- 提携サイト等より掲載されている物件情報につきましては、不動産会社詳細情報にリンクされていないものがあります。
- 物件に関するお問合せは、物件詳細ページの「情報提供会社」に表示されている不動産会社へ直接お願いいたします。
- 間取図は、現況を優先させていただきます。
- 映像は物件の一部を撮影したものです。物件の契約にあたっての最終判断はご自身の判断に基づいて行ってください。
- 仲介手数料について

アットホームは物件情報の適正化に努めております。
内容に誤りがある場合にはこちらへご連絡ください。