不動産 賃貸 マンション等の住宅情報:埼玉住まい情報


東京都新宿区市谷台町(曙橋駅)の賃貸:物件詳細

  • 物件詳細
  • 情報の見方
  • 印刷用画面
交通
所在地
駅徒歩 賃料
管理費等
敷金/保証金
礼金
間取り
面積
物件種目
築年月

都営新宿線/曙橋

東京都新宿区市谷台町

5分

14万円

8,000円

1ヶ月 / なし

なし

1K

26.39m²

賃貸マンション

2026年3月
新築 

おすすめPOINT角部屋、SOHO向き、2面採光

おすすめコメント

2面採光・壁面(一部天井)は上品な質感の塗装仕上げです

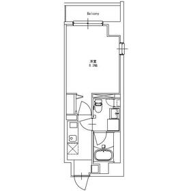
間取図

間取図

外観

外観

イメージ図

その他の画像
  • キッチン
  • キッチン
  • バス/シャワー
  • 玄関
    • とりあえず保存
    • お問い合わせ
    交通

    都営新宿線 曙橋駅 徒歩5分

    その他の交通

    東京メトロ丸ノ内線 四谷三丁目駅 徒歩12分

    都営大江戸線 若松河田駅 徒歩11分

    所在地 東京都新宿区市谷台町
    物件種目 賃貸マンション
    賃料 14万円 管理費等 8,000円
    敷金 / 保証金 1ヶ月 / なし 礼金 なし
    敷引 保証金償却
    その他一時金 なし 保険等 要 2年 19,000円
    維持費等
    間取り 1K(洋室8.3) 専有面積 26.39m²
    築年月 2026年3月 新築  階建 / 階 8階建 / 5階
    建物構造 RC 総戸数 14戸
    主要採光面 北東 駐車場
    バイク置き場 駐輪場 有 無料
    建物名・部屋番号 JU RUY Ichigaya Daimachi 502 ペット
    アピールポイント 2面採光・壁面(一部天井)は上品な質感の塗装仕上げです
    ファミリーマート 徒歩1分
    東京女子医科大学病院 徒歩10分
    学習院女子大学 徒歩28分
    早稲田大学 戸山キャンパス 徒歩25分
    早稲田大学 西早稲田キャンパス 徒歩27分
    リフォーム履歴
    リノベーション履歴
    備考
    賃貸保証等:加入要(その他 ◇CASA 初回40% 年間1万円 月額300円(税別) ◇エポスカード 初回:40% 年間1万円 ◇GTN 初回100% 月額2%)
    管理形態/管理員の勤務形態:-/-
    バルコニー:3.3m²
    短期解約違約金:1年未満は賃料等1ヶ月分
    ルームクリーニング代(退去時払):38,500円(税込)
    ※外国籍の場合は契約時に預かります
    保険料: 19,000円 2年
    保証会社: 加入要
    ◇CASA 初回40% 年間1万円 月額300円(税別)
    ◇エポスカード 初回:40% 年間1万円
    ◇GTN 初回100% 月額2%
    解約予告: 1ヶ月前
    エネルギー消費性能
    断熱性能
    目安光熱費
    バス・トイレ バス・トイレ別、浴室乾燥機、洗面所独立、温水洗浄便座
    キッチン IHクッキングヒーター、2口コンロ
    セキュリティー モニター付オートロック、オートロック、ダブルロックドア、防犯カメラ
    収納 収納スペース、シューズボックス
    設備・サービス 室内洗濯機置場、給湯、全居室フローリング、都市ガス、エアコン
    TV・通信 インターネット使用料無料
    その他 宅配BOX、バルコニー、駐輪場、エレベーター
    契約期間 2年 現況 未完成
    条件等 入居可能時期 2026年3月下旬予定
    更新料 新賃料 1ヶ月 物件番号 1182516802
    情報公開日 2026年2月11日 次回更新予定日 2026年2月25日
    ケータイ用バーコード

    QRコード

    スマートフォンでこの物件を見る
    スマートフォンからもこの物件をご覧になれます。
    ※「-」と表示されている項目については、情報提供会社にご確認ください。

    クイックお問い合わせ

    ここから簡単にお問い合わせをすることができます。
    (SSLでの暗号化での送信を希望されるお客さまは こちら よりお問い合わせください)

    お問い合わせ内容(必須)
    お名前(必須) 姓  名 
    メールアドレス(必須)
    ※携帯電話のメールアドレスをご入力される方はこちらをご確認ください
    電話番号(必須)
    - -

    ※入力いただいた電話番号へSMSまたは音声でパスワードをご連絡します。

    携帯電話の番号をご入力の方へ

    携帯電話の番号をご入力の方へ
    確認画面にて送信ボタンをクリックするとSMSが携帯電話に届きます。
    そのSMSに記載のパスワード(認証番号)を入力し、お問い合わせを完了してください。
    尚、SMSの送信者番号は 0005 202 760 となります。
    これはアットホームの固定番号です。

    備考欄 希望条件、物件案内希望日、質問などがございましたらご記入ください。
    お問い合わせを行う前に「個人情報の取り扱いについて」を必ずお読みください。
    「個人情報の取り扱いについて」に同意いただいた場合は「上記にご同意の上 確認画面へ進む」のボタンをクリックしてください。

    個人情報の取り扱いについて

    皆さまが送付された個人情報はアットホーム(株)のサーバを経由し、お問い合わせ先の不動産会社にメールまたはFAXにて転送されるためアットホーム(株)にも保管されます。アットホーム(株)で保管された個人情報の取り扱いについては、【こちら】をご覧ください。
    また、本画面でご記入いただいた個人情報は、お問い合わせ先の不動産会社でも保管します。 お問い合わせ先の不動産会社が保管する個人情報の取り扱いについては、不動産会社に直接お問い合わせください。

    情報提供会社

    情報提供会社

    (株)MEコーポレーション

    東京都知事免許(5)第84691号

    交通:
    東急東横線/中目黒駅 徒歩6分
    東京都目黒区青葉台1丁目16-4 ME Bldg.
    TEL:
    03-4500-9282
    FAX:
    03-3780-3968
    所属団体:
    (公社)全日本不動産協会会員
    (公社)首都圏不動産公正取引協議会加盟

    取引態様:仲介

    • 会社情報
    • 00017839
    スマートフォンで
    この不動産会社を見る
    QRコード
    • とりあえず保存
    • お問い合わせ
    • 提携サイト等より掲載されている物件情報につきましては、不動産会社詳細情報にリンクされていないものがあります。
    • 物件に関するお問合せは、物件詳細ページの「情報提供会社」に表示されている不動産会社へ直接お願いいたします。
    • 間取図は、現況を優先させていただきます。
    • 映像は物件の一部を撮影したものです。物件の契約にあたっての最終判断はご自身の判断に基づいて行ってください。
    • 仲介手数料について仲介手数料

    アットホームは物件情報の適正化に努めております。 内容に誤りがある場合にはこちらへご連絡ください。

    【埼玉住まい情報】では、日本全国の物件から賃貸マンションや賃貸アパート・賃貸一戸建て等の賃貸住宅情報、新築マンション・分譲マンションや中古マンション等の売買マンション情報、新築一戸建てや中古一戸建てなどの戸建住宅、 土地など、総合的な不動産住宅情報検索サービスを提供致します。
    【埼玉住まい情報】から、選りすぐりの不動産物件を探してみましょう。

    【免責事項】
    このコーナーの運営はアットホーム株式会社(https://www.athome.co.jp/)が行っています。
    このコーナーに掲載している物件情報は、「アットホーム不動産情報ネットワーク」に加盟する不動産会社等(情報提供元)から提供されています。信頼性の高い情報提供が行えるよう、最大限の努力をしておりますが、その内容を保証するものではありません。 利用者のみなさまと各情報提供元との取引に起因する損害および情報が掲載されたことに起因する損害等については、株式会社イーシティ埼玉、およびアットホームは一切責任を負いません。
    各物件情報の内容や画像等はすべて現況を優先させていただきます。
    お取引等(お取引の準備、資金調達等を含みます)の際には、内容や契約条件等について、各情報提供元より十分な説明を受け、ご自身でご確認の上、判断してください。
    このコーナーへの物件情報のご掲載、その他不動産業務ソリューション等についての不動産会社様のお問合せはこちらからお願いいたします。

    物件画像: