東京都品川区東中延1丁目(戸越駅)の賃貸:物件詳細
交通 所在地 |
駅徒歩 |
賃料 管理費等 |
敷金/保証金 礼金 |
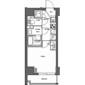
間取り 面積 |
物件種目 築年月 |
|
都営浅草線/戸越
東京都品川区東中延1丁目
|
5分
|
10.5万円
15,000円
|
1ヶ月 / なし
1ヶ月
|
1K
22.33m²
|
賃貸マンション
2017年6月(築8年6ヶ月)
|
ペット相談、分譲タイプ、角部屋、最上階、24時間換気システム
|
|
間取図
|
外観
|
<
その他の画像
>
|
| 交通 | 都営浅草線 戸越駅 徒歩5分 |
|---|
| その他の交通 | 東急池上線 荏原中延駅 徒歩5分 東急大井町線 戸越公園駅 徒歩7分 |
| 所在地 |
東京都品川区東中延1丁目
|
| 物件種目 |
賃貸マンション |
| 賃料 |
10.5万円 |
管理費等 |
15,000円 |
| 敷金 / 保証金 |
1ヶ月 / なし |
礼金 |
1ヶ月 |
| 敷引 |
1ヶ月 |
保証金償却 |
- |
| その他一時金 |
室内清掃費用:66,000円、除菌消臭費:17,600円、24時間サポート:21,450円、事務手数料:11,000円、更新事務手数料:22,000円、鍵交換代等:22,000円~ |
保険等 |
要 2年 23,000円 |
| 維持費等 |
口座振替手数料:660円/月 |
| 間取り |
1K |
専有面積 |
22.33m² |
| 築年月 |
2017年6月(築8年6ヶ月)
|
階建 / 階 |
13階建 / 13階 |
| 建物構造 |
RC |
総戸数 |
- |
| 主要採光面 |
東 |
駐車場 |
- |
| バイク置き場 |
- |
駐輪場 |
- |
| 建物名・部屋番号 |
プレミアムキューブ品川戸越#mo 1303 |
ペット |
相談 |
| アピールポイント |
敷金0ヶ月 戸越駅徒歩5分 ペット可 ネット無料 オートロック 宅配ボックス 独立洗面台 浴室乾燥機 |
| リフォーム履歴 |
- |
| リノベーション履歴 |
- |
| 備考 |
賃貸保証等:加入要(初回保証料30%~50%、更新料10000円~、口振手数料~660円)
管理形態/管理員の勤務形態:-/-
解約予告2ヶ月前 短期解約違約金あり ペット飼育可:1匹の場合共益費+3500円追加、2匹の場合共益費+3500円追加及び敷金1ヶ月追加(償却)
|
| エネルギー消費性能 |
- |
| 断熱性能 |
- |
| 目安光熱費 |
- |
| バス・トイレ |
バス・トイレ別、浴室乾燥機、洗面所独立、洗面所、洗面台、シャワー、温水洗浄便座、トイレ |
| キッチン |
システムキッチン、2口コンロ、ガスコンロ付 |
| セキュリティー |
モニター付オートロック、オートロック、モニター付インターホン、防犯カメラ、火災警報器(報知機) |
| 収納 |
全居室収納、クローゼット、シューズボックス |
| 設備・サービス |
室内洗濯機置場、フローリング、都市ガス、エアコン、暖房、冷房、照明器具 |
| TV・通信 |
インターネット対応、インターネット使用料無料、光ファイバー、CS、BS端子 |
| その他 |
宅配BOX、バルコニー、エレベーター |
| 契約期間 |
2年 |
現況 |
居住中 |
| 条件等 |
- |
入居可能時期 |
指定有り2025年12月5日 |
| 更新料 |
新賃料 1.5ヶ月 |
物件番号 |
1183190312 |
| 情報公開日 |
2025年9月21日 |
次回更新予定日 |
2025年11月19日 |
| ケータイ用バーコード |
- スマートフォンでこの物件を見る
- スマートフォンからもこの物件をご覧になれます。
|
※「-」と表示されている項目については、情報提供会社にご確認ください。
| 周辺施設 |
戸越駅(都営地下鉄 浅草線) |
| 距離 |
400m |
写真を見る |
| 周辺施設 |
まいばすけっと戸越3丁目店 |
| 距離 |
180m |
| 周辺施設 |
セブンイレブン品川戸越3丁目店 |
| 距離 |
190m |
| 周辺施設 |
昭和大学病院附属東病院 |
| 距離 |
1020m |
| 周辺施設 |
品川区立宮前小学校 |
| 距離 |
520m |
写真を見る |
ここから簡単にお問い合わせをすることができます。
(SSLでの暗号化での送信を希望されるお客さまは
こちら
よりお問い合わせください)
お問い合わせを行う前に
「個人情報の取り扱いについて」を必ずお読みください。
「個人情報の取り扱いについて」に同意いただいた場合は「上記にご同意の上 確認画面へ進む」のボタンをクリックしてください。
個人情報の取り扱いについて
皆さまが送付された個人情報はアットホーム(株)のサーバを経由し、お問い合わせ先の不動産会社にメールまたはFAXにて転送されるためアットホーム(株)にも保管されます。アットホーム(株)で保管された個人情報の取り扱いについては、【こちら】をご覧ください。
また、本画面でご記入いただいた個人情報は、お問い合わせ先の不動産会社でも保管します。 お問い合わせ先の不動産会社が保管する個人情報の取り扱いについては、不動産会社に直接お問い合わせください。
東京都知事免許(6)第76891号 |
|---|
- 交通:
- JR山手線/浜松町駅 徒歩2分
- 東京都港区芝大門1丁目16-3 芝大門116ビル1F
- TEL:
- 03-6228-4882
- FAX:
- 03-5408-8401
- 所属団体:
- (公社)全日本不動産協会会員(公社)首都圏不動産公正取引協議会加盟
取引態様:仲介  - 00275545
|
- スマートフォンで
この不動産会社を見る

|
- 提携サイト等より掲載されている物件情報につきましては、不動産会社詳細情報にリンクされていないものがあります。
- 物件に関するお問合せは、物件詳細ページの「情報提供会社」に表示されている不動産会社へ直接お願いいたします。
- 間取図は、現況を優先させていただきます。
- 映像は物件の一部を撮影したものです。物件の契約にあたっての最終判断はご自身の判断に基づいて行ってください。
- 仲介手数料について

アットホームは物件情報の適正化に努めております。
内容に誤りがある場合にはこちらへご連絡ください。