不動産 賃貸 マンション等の住宅情報:埼玉住まい情報


東京都品川区大崎1丁目(大崎駅)の賃貸:物件詳細

  • 物件詳細
  • 情報の見方
  • 印刷用画面
交通
所在地
駅徒歩 賃料
管理費等
敷金/保証金
礼金
間取り
面積
物件種目
築年月

りんかい線/大崎

東京都品川区大崎1丁目

6分

26万円

20,000円

1ヶ月 / なし

1ヶ月

1LDK

61.20m²

賃貸マンション

1997年10月(築28年2ヶ月)

おすすめPOINT分譲タイプ、常時ゴミ出し可能、角部屋、二人入居可、全室2面採光、3面採光、2面採光、24時間換気システム、IT重説対応物件、保証人不要

おすすめコメント  スタッフ: 片平 未菜

地域密着の信頼企業を目指すヘヤギメ!はIT技術でオンライン相談・内覧・非対面契約に対応し、来店不要で安心便利にご契約まで完結。初期費用はカード決済も可能。

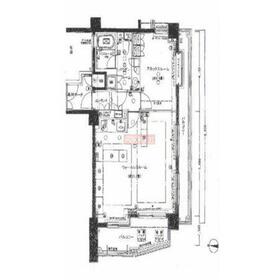
間取図

間取図

外観

外観

<
その他の画像
  • リビング
  • キッチン
  • バス/シャワー
  • 洗面
  • トイレ
  • リビング
  • 室内
  • 室内
  • 設備
  • リビング
  • バルコニー
  • 玄関
  • 共有部分
  • エントランス
  • 設備
  • 眺望
  • ショッピング施設
>
    • とりあえず保存
    • お問い合わせ
    交通

    りんかい線 大崎駅 徒歩6分

    その他の交通

    JR山手線 大崎駅 徒歩6分

    京急本線 北品川駅 徒歩17分

    所在地 東京都品川区大崎1丁目
    物件種目 賃貸マンション
    賃料 26万円 管理費等 20,000円
    敷金 / 保証金 1ヶ月 / なし 礼金 1ヶ月
    敷引 保証金償却
    その他一時金 24時間駆けつけサービス:16,500円、入居時抗菌費用:13,200円、契約事務手数料:11,000円、鍵交換代等:33,000円~ 保険等 要 2年 20,000円
    維持費等 クレジットカード決済 初期費用可
    間取り 1LDK 専有面積 61.20m²
    築年月 1997年10月(築28年2ヶ月) 階建 / 階 7階建 / 3階
    建物構造 RC 総戸数
    主要採光面 西 駐車場
    バイク置き場 駐輪場
    建物名・部屋番号 ビヴァーチェ大崎 303 ペット
    アピールポイント おしゃれなカフェをテーマにしたお部屋探しCAFEヘヤギメ!若くて活気あるスタッフが丁寧に対応いたします。LINE・メール・ビデオ通話でのオンライン相談、現地またはオンライン内覧、IT重説に対応。初期費用はクレジットカード(一括・分割)でのお支払いが可能です。ポータルに掲載されていない未公開物件や周辺エリアの類似物件もまとめてご紹介します。遠方にお住まいの方やお忙しい方も、お気軽にお問い合わせください。最新の空室状況や費用は変動いたしますので、お早めにご確認ください。
    リフォーム履歴
    リノベーション履歴
    備考
    賃貸保証等:加入要(賃貸保証料:0.50ヶ月 賃料と管理費の50%※1年毎10,000円)
    管理形態/管理員の勤務形態:-/-
    IT重説対応物件
    メールやLINEで気軽にご相談いただけます。ご来店が難しいお客様も安心してお問い合わせください。複数物件をまとめてご案内でき、オンライン相談・内見・契約まで対応可能。初期費用はクレジットカード(一括・分割)でのお支払いも可能です。
    エネルギー消費性能
    断熱性能
    目安光熱費
    バス・トイレ バス・トイレ別、浴室乾燥機、オートバス、追焚機能、シャワー付洗面化粧台、洗面所独立、洗面所、洗面台、温水洗浄便座、トイレ
    キッチン システムキッチン、食器洗浄乾燥機、2口コンロ、ガスコンロ付、グリル
    セキュリティー モニター付オートロック、オートロック、モニター付インターホン、ディンプルキー、ダブルロックドア、防犯カメラ
    収納 収納スペース、シューズインクローゼット、クローゼット、シューズボックス
    設備・サービス 室内洗濯機置場、都市ガス給湯、給湯、全居室フローリング、フローリング、都市ガス、エアコン、人感センサー付照明、照明器具
    TV・通信 インターネット対応、光ファイバー、ケーブルTV、CS、BS端子
    その他 宅配BOX、二面バルコニー、バルコニー、エレベーター
    契約期間 2年 現況 居住中
    条件等 入居可能時期 相談
    更新料 新賃料 1ヶ月 物件番号 1183606412
    情報公開日 2025年9月22日 次回更新予定日 2025年11月6日
    ケータイ用バーコード

    QRコード

    スマートフォンでこの物件を見る
    スマートフォンからもこの物件をご覧になれます。
    ※「-」と表示されている項目については、情報提供会社にご確認ください。

    この物件の周辺情報

    周辺施設 まいばすけっと大崎駅前店
    距離 640m
    周辺施設 ライフ大崎ニューシティ店
    距離 360m
    周辺施設 ローソン大崎店
    距離 180m
    周辺施設 ローソンゲートシティ大崎店
    距離 230m
    周辺施設 ローソンゲートシティ大崎アトリウム店
    距離 240m
    周辺施設 成城石井ゲートシティ大崎店
    距離 150m

    クイックお問い合わせ

    ここから簡単にお問い合わせをすることができます。
    (SSLでの暗号化での送信を希望されるお客さまは こちら よりお問い合わせください)

    お問い合わせ内容(必須)
    お名前(必須) 姓  名 
    メールアドレス(必須)
    ※携帯電話のメールアドレスをご入力される方はこちらをご確認ください
    電話番号(必須)
    - -

    ※入力いただいた電話番号へSMSまたは音声でパスワードをご連絡します。

    携帯電話の番号をご入力の方へ

    携帯電話の番号をご入力の方へ
    確認画面にて送信ボタンをクリックするとSMSが携帯電話に届きます。
    そのSMSに記載のパスワード(認証番号)を入力し、お問い合わせを完了してください。
    尚、SMSの送信者番号は 0005 202 760 となります。
    これはアットホームの固定番号です。

    備考欄 希望条件、物件案内希望日、質問などがございましたらご記入ください。
    お問い合わせを行う前に「個人情報の取り扱いについて」を必ずお読みください。
    「個人情報の取り扱いについて」に同意いただいた場合は「上記にご同意の上 確認画面へ進む」のボタンをクリックしてください。

    個人情報の取り扱いについて

    皆さまが送付された個人情報はアットホーム(株)のサーバを経由し、お問い合わせ先の不動産会社にメールまたはFAXにて転送されるためアットホーム(株)にも保管されます。アットホーム(株)で保管された個人情報の取り扱いについては、【こちら】をご覧ください。
    また、本画面でご記入いただいた個人情報は、お問い合わせ先の不動産会社でも保管します。 お問い合わせ先の不動産会社が保管する個人情報の取り扱いについては、不動産会社に直接お問い合わせください。

    情報提供会社

    情報提供会社

    お部屋探しCAFEヘヤギメ!目黒店 (株)S-FIT

    国土交通大臣免許(4)第7352号

    交通:
    JR山手線/目黒駅 徒歩1分
    東京都品川区上大崎2丁目15-18 目黒東豊ビル4F
    TEL:
    0120-49-7890
    FAX:
    03-5475-6201
    所属団体:
    (公社)全日本不動産協会会員
    不動産公正取引協議会加盟

    取引態様:仲介

    • 会社情報
    • 00041904
    スマートフォンで
    この不動産会社を見る
    QRコード
    • とりあえず保存
    • お問い合わせ
    • 提携サイト等より掲載されている物件情報につきましては、不動産会社詳細情報にリンクされていないものがあります。
    • 物件に関するお問合せは、物件詳細ページの「情報提供会社」に表示されている不動産会社へ直接お願いいたします。
    • 間取図は、現況を優先させていただきます。
    • 映像は物件の一部を撮影したものです。物件の契約にあたっての最終判断はご自身の判断に基づいて行ってください。
    • 仲介手数料について仲介手数料

    アットホームは物件情報の適正化に努めております。 内容に誤りがある場合にはこちらへご連絡ください。

    【埼玉住まい情報】では、日本全国の物件から賃貸マンションや賃貸アパート・賃貸一戸建て等の賃貸住宅情報、新築マンション・分譲マンションや中古マンション等の売買マンション情報、新築一戸建てや中古一戸建てなどの戸建住宅、 土地など、総合的な不動産住宅情報検索サービスを提供致します。
    【埼玉住まい情報】から、選りすぐりの不動産物件を探してみましょう。

    【免責事項】
    このコーナーの運営はアットホーム株式会社(https://www.athome.co.jp/)が行っています。
    このコーナーに掲載している物件情報は、「アットホーム不動産情報ネットワーク」に加盟する不動産会社等(情報提供元)から提供されています。信頼性の高い情報提供が行えるよう、最大限の努力をしておりますが、その内容を保証するものではありません。 利用者のみなさまと各情報提供元との取引に起因する損害および情報が掲載されたことに起因する損害等については、株式会社イーシティ埼玉、およびアットホームは一切責任を負いません。
    各物件情報の内容や画像等はすべて現況を優先させていただきます。
    お取引等(お取引の準備、資金調達等を含みます)の際には、内容や契約条件等について、各情報提供元より十分な説明を受け、ご自身でご確認の上、判断してください。
    このコーナーへの物件情報のご掲載、その他不動産業務ソリューション等についての不動産会社様のお問合せはこちらからお願いいたします。

    物件画像: