神奈川県川崎市中原区市ノ坪(武蔵小杉駅)の賃貸:物件詳細
交通 所在地 |
駅徒歩 |
賃料 管理費等 |
敷金/保証金 礼金 |
間取り 面積 |
物件種目 築年月 |
|
JR横須賀線/武蔵小杉
神奈川県川崎市中原区市ノ坪
|
9分
|
9.5万円
15,000円
|
なし / なし
なし
|
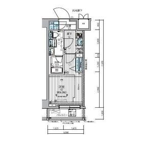
1K
21.90m²
|
賃貸マンション
2017年7月(築8年6ヶ月)
|
ペット相談、分譲タイプ、常時ゴミ出し可能、24時間セキュリティー、外観タイル張り、IT重説対応物件、保証人不要
|
|
間取図
|
外観
|
<
その他の画像
>
|
| 交通 | JR横須賀線 武蔵小杉駅 徒歩9分 |
|---|
| その他の交通 | 東急東横線 武蔵小杉駅 徒歩10分 東急目黒線 元住吉駅 徒歩15分 |
| 所在地 |
神奈川県川崎市中原区市ノ坪
|
| 物件種目 |
賃貸マンション |
| 賃料 |
9.5万円 |
管理費等 |
15,000円 |
| 敷金 / 保証金 |
なし / なし |
礼金 |
なし |
| 敷引 |
- |
保証金償却 |
- |
| その他一時金 |
AMLクラブサポート費:16,500円、鍵交換費:29,700円、退去時クリーニング費用:49,500円、退去時エアコン清掃費:16,500円 |
保険等 |
要 2年 16,000円 |
| 維持費等 |
- |
クレジットカード決済 |
初期費用可 |
| 間取り |
1K(洋室6.3畳/K2畳) |
専有面積 |
21.90m² |
| 築年月 |
2017年7月(築8年6ヶ月)
|
階建 / 階 |
6階建 / 1階 |
| 建物構造 |
RC |
総戸数 |
- |
| 主要採光面 |
東 |
駐車場 |
無 |
| バイク置き場 |
- |
駐輪場 |
有 |
| 建物名・部屋番号 |
メインステージ武蔵小杉 |
ペット |
相談 |
| アピールポイント |
3,000円キャッシュバックキャンペーン実施中。
オンライン接客のお客様にAmazonギフト券3,000円分をプレゼント。
※オンライン接客及びオンライン契約を頂いた方が対象です。
※お一人様につき1回のみとなります。
※キャンペーン期間は2025年11月22日~12月25日です。
|
| リフォーム履歴 |
- |
| リノベーション履歴 |
- |
| 備考 |
賃貸保証等:加入要(家賃総額の50%~)
管理形態/管理員の勤務形態:-/巡回
IT重説対応物件、管理人巡回
分譲賃貸マンション
オートロック/宅配ボックス/浴室乾燥機/独立洗面台/周辺施設充実
|
| エネルギー消費性能 |
- |
| 断熱性能 |
- |
| 目安光熱費 |
- |
| バス・トイレ |
バス・トイレ別、浴室乾燥機、シャワー付洗面化粧台、洗面所独立、洗面台、シャワー、温水洗浄便座、トイレ |
| キッチン |
システムキッチン、2口コンロ、ガスコンロ付 |
| セキュリティー |
オートロック、モニター付インターホン、ディンプルキー、ダブルロックドア、防犯カメラ |
| 収納 |
収納スペース、クローゼット、シューズボックス |
| 設備・サービス |
室内洗濯機置場、洗濯機置場、給湯、フローリング、都市ガス、エアコン |
| TV・通信 |
インターネット使用料無料、CS、BS端子 |
| その他 |
宅配BOX、バルコニー、駐輪場、エレベーター |
| 契約期間 |
2年 |
現況 |
空家 |
| 条件等 |
- |
入居可能時期 |
即時 |
| 更新料 |
新賃料 1.5ヶ月 |
物件番号 |
1183925211 |
| 情報公開日 |
2025年11月8日 |
次回更新予定日 |
2025年12月24日 |
| ケータイ用バーコード |
- スマートフォンでこの物件を見る
- スマートフォンからもこの物件をご覧になれます。
|
※「-」と表示されている項目については、情報提供会社にご確認ください。
| 周辺施設 |
イトーヨーカドー グランツリー武蔵小杉店 |
| 距離 |
669m |
写真を見る |
| 周辺施設 |
まいばすけっと 向河原駅南店 |
| 距離 |
742m |
写真を見る |
| 周辺施設 |
スギドラッグ 向河原駅前店 |
| 距離 |
994m |
写真を見る |
| 周辺施設 |
セブンイレブン 川崎向河原駅前店 |
| 距離 |
990m |
写真を見る |
| 周辺施設 |
ファミリーマート サンズ向河原駅東店 |
| 距離 |
1050m |
写真を見る |
ここから簡単にお問い合わせをすることができます。
(SSLでの暗号化での送信を希望されるお客さまは
こちら
よりお問い合わせください)
お問い合わせを行う前に
「個人情報の取り扱いについて」を必ずお読みください。
「個人情報の取り扱いについて」に同意いただいた場合は「上記にご同意の上 確認画面へ進む」のボタンをクリックしてください。
個人情報の取り扱いについて
皆さまが送付された個人情報はアットホーム(株)のサーバを経由し、お問い合わせ先の不動産会社にメールまたはFAXにて転送されるためアットホーム(株)にも保管されます。アットホーム(株)で保管された個人情報の取り扱いについては、【こちら】をご覧ください。
また、本画面でご記入いただいた個人情報は、お問い合わせ先の不動産会社でも保管します。 お問い合わせ先の不動産会社が保管する個人情報の取り扱いについては、不動産会社に直接お問い合わせください。
東京都知事免許(4)第86028号 |
|---|
- 交通:
- 東京メトロ丸ノ内線/西新宿駅 徒歩1分
- 東京都新宿区西新宿8丁目1-2 PMO西新宿2F
- TEL:
- 03-5348-3311
- FAX:
- 03-5348-3322
- 所属団体:
- (公社)全日本不動産協会会員(公社)首都圏不動産公正取引協議会加盟
取引態様:仲介  - 00996300
|
- スマートフォンで
この不動産会社を見る

|
- 提携サイト等より掲載されている物件情報につきましては、不動産会社詳細情報にリンクされていないものがあります。
- 物件に関するお問合せは、物件詳細ページの「情報提供会社」に表示されている不動産会社へ直接お願いいたします。
- 間取図は、現況を優先させていただきます。
- 映像は物件の一部を撮影したものです。物件の契約にあたっての最終判断はご自身の判断に基づいて行ってください。
- 仲介手数料について

アットホームは物件情報の適正化に努めております。
内容に誤りがある場合にはこちらへご連絡ください。