福岡県福岡市中央区渡辺通2丁目(薬院駅)の賃貸:物件詳細
交通 所在地 |
駅徒歩 |
賃料 管理費等 |
敷金/保証金 礼金 |
間取り 面積 |
物件種目 築年月 |
|
地下鉄七隈線/薬院
福岡県福岡市中央区渡辺通2丁目
|
2分
|
8万円
5,500円
|
なし / なし
2ヶ月
|
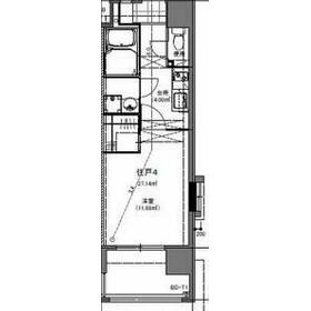
1K
27.14m²
|
賃貸マンション
2017年9月(築8年4ヶ月)
|
デザイナーズ、角部屋、24時間換気システム、外観タイル張り、IT重説対応物件
|
|
間取図
|
外観
|
<
その他の画像
>
|
| 交通 | 地下鉄七隈線 薬院駅 徒歩2分 |
|---|
| その他の交通 | 西鉄天神大牟田線 薬院駅 徒歩2分 地下鉄七隈線 渡辺通駅 徒歩6分 |
| 所在地 |
福岡県福岡市中央区渡辺通2丁目
|
| 物件種目 |
賃貸マンション |
| 賃料 |
8万円 |
管理費等 |
5,500円 |
| 敷金 / 保証金 |
なし / なし |
礼金 |
2ヶ月 |
| 敷引 |
- |
保証金償却 |
- |
| その他一時金 |
なし |
保険等 |
要 |
| 維持費等 |
- |
クレジットカード決済 |
初期費用可 |
| 間取り |
1K |
専有面積 |
27.14m² |
| 築年月 |
2017年9月(築8年4ヶ月)
|
階建 / 階 |
14階建 / 7階 |
| 建物構造 |
RC |
総戸数 |
- |
| 主要採光面 |
南東 |
駐車場 |
- |
| バイク置き場 |
- |
駐輪場 |
有 |
| 建物名・部屋番号 |
Rupieレジデンス渡辺通 |
ペット |
-
|
| リフォーム履歴 |
- |
| リノベーション履歴 |
- |
| 備考 |
管理形態/管理員の勤務形態:-/巡回
IT重説対応物件、管理人巡回
|
| エネルギー消費性能 |
- |
| 断熱性能 |
- |
| 目安光熱費 |
- |
| バス・トイレ |
バス・トイレ別、シャワー付洗面化粧台、洗面所独立、洗面所、洗面台、シャワー、温水洗浄便座、トイレ |
| キッチン |
システムキッチン、2口コンロ、ガスコンロ可 |
| セキュリティー |
モニター付オートロック、オートロック、モニター付インターホン、カードキー、防犯カメラ |
| 収納 |
ウォークインクローゼット、収納スペース、クローゼット、シューズボックス |
| 設備・サービス |
室内洗濯機置場、洗濯機置場、プロパンガス給湯、給湯、全居室フローリング、フローリング、プロパンガス、エアコン、人感センサー付照明 |
| TV・通信 |
インターネット対応、インターネット使用料無料、CS、BS端子 |
| その他 |
宅配BOX、バルコニー、駐輪場、エレベーター |
| 契約期間 |
2年 |
現況 |
居住中 |
| 条件等 |
- |
入居可能時期 |
相談 |
| 更新料 |
- |
物件番号 |
1183983913 |
| 情報公開日 |
2025年12月22日 |
次回更新予定日 |
2026年1月5日 |
| ケータイ用バーコード |
- スマートフォンでこの物件を見る
- スマートフォンからもこの物件をご覧になれます。
|
※「-」と表示されている項目については、情報提供会社にご確認ください。
| 周辺施設 |
セブンイレブン 西鉄薬院駅北口店 |
| 距離 |
177m |
写真を見る |
| 周辺施設 |
福岡天神医療リハビリ専門学校 |
| 距離 |
194m |
写真を見る |
| 周辺施設 |
ドラッグストア マツモトキヨシ 薬院店 |
| 距離 |
217m |
写真を見る |
| 周辺施設 |
セブンイレブン 福岡渡辺通西店 |
| 距離 |
244m |
写真を見る |
| 周辺施設 |
西日本シティ銀行 西鉄薬院駅 |
| 距離 |
309m |
写真を見る |
| 周辺施設 |
にしてつストアReganetMarche(レガネットマルシェ) 薬院店 |
| 距離 |
358m |
写真を見る |
| 周辺施設 |
BiVi(ビビ)福岡 |
| 距離 |
369m |
写真を見る |
| 周辺施設 |
桜十字福岡病院 |
| 距離 |
371m |
写真を見る |
ここから簡単にお問い合わせをすることができます。
(SSLでの暗号化での送信を希望されるお客さまは
こちら
よりお問い合わせください)
お問い合わせを行う前に
「個人情報の取り扱いについて」を必ずお読みください。
「個人情報の取り扱いについて」に同意いただいた場合は「上記にご同意の上 確認画面へ進む」のボタンをクリックしてください。
個人情報の取り扱いについて
皆さまが送付された個人情報はアットホーム(株)のサーバを経由し、お問い合わせ先の不動産会社にメールまたはFAXにて転送されるためアットホーム(株)にも保管されます。アットホーム(株)で保管された個人情報の取り扱いについては、【こちら】をご覧ください。
また、本画面でご記入いただいた個人情報は、お問い合わせ先の不動産会社でも保管します。 お問い合わせ先の不動産会社が保管する個人情報の取り扱いについては、不動産会社に直接お問い合わせください。
福岡県知事免許(4)第15644号 |
|---|
- 交通:
- 西鉄天神大牟田線/西鉄平尾駅 徒歩1分
- 福岡県福岡市南区大楠2丁目19-17 L+HIRAO
- TEL:
- 092-406-9008
- FAX:
- 092-406-9009
- 所属団体:
- (公社)福岡県宅地建物取引業協会会員(一社)九州不動産公正取引協議会加盟
取引態様:仲介  - 80508195
|
- スマートフォンで
この不動産会社を見る

|
- 提携サイト等より掲載されている物件情報につきましては、不動産会社詳細情報にリンクされていないものがあります。
- 物件に関するお問合せは、物件詳細ページの「情報提供会社」に表示されている不動産会社へ直接お願いいたします。
- 間取図は、現況を優先させていただきます。
- 映像は物件の一部を撮影したものです。物件の契約にあたっての最終判断はご自身の判断に基づいて行ってください。
- 仲介手数料について

アットホームは物件情報の適正化に努めております。
内容に誤りがある場合にはこちらへご連絡ください。