大阪府大阪市浪速区湊町2丁目(なんば駅)の賃貸:物件詳細
交通 所在地 |
駅徒歩 |
賃料 管理費等 |
敷金/保証金 礼金 |
間取り 面積 |
物件種目 築年月 |
|
地下鉄御堂筋線/なんば
大阪府大阪市浪速区湊町2丁目
|
4分
|
35万円
30,000円
|
1ヶ月 / なし
2ヶ月
|
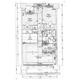
3LDK
100.14m²
|
賃貸マンション
2014年9月(築11年4ヶ月)
|
ペット相談、分譲タイプ、フロントサービス、最上階、免震構造
|
|
間取図
|
外観
|
<
その他の画像
>
|
| 交通 | 地下鉄御堂筋線 なんば駅 徒歩4分 |
|---|
| その他の交通 | 地下鉄御堂筋線 大国町駅 徒歩17分 地下鉄四つ橋線 四ツ橋駅 徒歩17分 |
| 所在地 |
大阪府大阪市浪速区湊町2丁目
|
| 物件種目 |
賃貸マンション |
| 賃料 |
35万円 |
管理費等 |
30,000円 |
| 敷金 / 保証金 |
1ヶ月 / なし |
礼金 |
2ヶ月 |
| 敷引 |
- |
保証金償却 |
- |
| その他一時金 |
なし、鍵交換代等:33,000円~ |
保険等 |
要 |
| 維持費等 |
- |
| 間取り |
3LDK(LDK20・洋室8・洋室6・和室5) |
専有面積 |
100.14m² |
| 築年月 |
2014年9月(築11年4ヶ月)
|
階建 / 階 |
25階建 / 25階 |
| 建物構造 |
RC |
総戸数 |
553戸 |
| 主要採光面 |
東 |
駐車場 |
無 |
| バイク置き場 |
有 |
駐輪場 |
有 |
| 建物名・部屋番号 |
なんばセントラルプラザリバーガーデン 2521 |
ペット |
相談 |
| リフォーム履歴 |
- |
| リノベーション履歴 |
- |
| 備考 |
賃貸保証等:加入要(保証会社加入要)
管理形態/管理員の勤務形態:-/日勤
管理人日勤
|
| エネルギー消費性能 |
- |
| 断熱性能 |
- |
| 目安光熱費 |
- |
| バス・トイレ |
バス・トイレ別、洗面台、シャワー、トイレ |
| キッチン |
- |
| セキュリティー |
オートロック、防犯カメラ |
| 収納 |
全居室収納、ウォークインクローゼット、収納スペース、シューズボックス |
| 設備・サービス |
エアコン2台以上、室内洗濯機置場、洗濯機置場、エアコン |
| TV・通信 |
- |
| その他 |
宅配BOX、バイク置き場、共用ゲストルーム、車寄せスペース、駐輪場 |
| 契約期間 |
2年 |
現況 |
空家 |
| 条件等 |
- |
入居可能時期 |
相談 |
| 更新料 |
- |
物件番号 |
1183989114 |
| 情報公開日 |
2025年10月29日 |
次回更新予定日 |
2025年12月25日 |
| ケータイ用バーコード |
- スマートフォンでこの物件を見る
- スマートフォンからもこの物件をご覧になれます。
|
※「-」と表示されている項目については、情報提供会社にご確認ください。
| 周辺施設 |
OCATモール |
| 距離 |
251m |
写真を見る |
| 周辺施設 |
コーヨー難波湊町店 |
| 距離 |
222m |
写真を見る |
| 周辺施設 |
ライフセントラルスクエアなんば店 |
| 距離 |
327m |
写真を見る |
| 周辺施設 |
ファミリーマート小浦桜川一丁目店 |
| 距離 |
75m |
写真を見る |
| 周辺施設 |
セブンイレブン大阪難波サンケイビル店 |
| 距離 |
190m |
写真を見る |
| 周辺施設 |
コクミンドラッグオーキャット店 |
| 距離 |
271m |
写真を見る |
ここから簡単にお問い合わせをすることができます。
(SSLでの暗号化での送信を希望されるお客さまは
こちら
よりお問い合わせください)
お問い合わせを行う前に
「個人情報の取り扱いについて」を必ずお読みください。
「個人情報の取り扱いについて」に同意いただいた場合は「上記にご同意の上 確認画面へ進む」のボタンをクリックしてください。
個人情報の取り扱いについて
皆さまが送付された個人情報はアットホーム(株)のサーバを経由し、お問い合わせ先の不動産会社にメールまたはFAXにて転送されるためアットホーム(株)にも保管されます。アットホーム(株)で保管された個人情報の取り扱いについては、【こちら】をご覧ください。
また、本画面でご記入いただいた個人情報は、お問い合わせ先の不動産会社でも保管します。 お問い合わせ先の不動産会社が保管する個人情報の取り扱いについては、不動産会社に直接お問い合わせください。
大阪府知事免許(4)第52620号 |
|---|
- 交通:
- JR大阪環状線/大阪駅 徒歩3分
- 大阪府大阪市北区梅田1丁目12-17 JRE梅田スクエアビル5階
- TEL:
- 06-4256-7025
- FAX:
- 06-4256-7395
- 所属団体:
- (公社)全日本不動産協会会員(公社)近畿地区不動産公正取引協議会加盟
取引態様:仲介  - 50020170
|
- スマートフォンで
この不動産会社を見る

|
- 提携サイト等より掲載されている物件情報につきましては、不動産会社詳細情報にリンクされていないものがあります。
- 物件に関するお問合せは、物件詳細ページの「情報提供会社」に表示されている不動産会社へ直接お願いいたします。
- 間取図は、現況を優先させていただきます。
- 映像は物件の一部を撮影したものです。物件の契約にあたっての最終判断はご自身の判断に基づいて行ってください。
- 仲介手数料について

アットホームは物件情報の適正化に努めております。
内容に誤りがある場合にはこちらへご連絡ください。