東京都新宿区百人町3丁目(大久保駅)の賃貸:物件詳細
交通 所在地 |
駅徒歩 |
賃料 管理費等 |
敷金/保証金 礼金 |
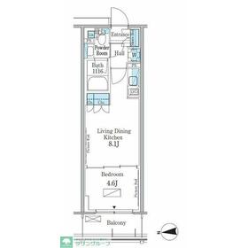
間取り 面積 |
物件種目 築年月 |
|
JR総武線/大久保
東京都新宿区百人町3丁目
|
9分
|
20万円
18,000円
|
1ヶ月 / なし
なし
|
1LDK
30.38m²
|
賃貸マンション
2024年1月(築1年10ヶ月)
|
ペット相談、楽器相談、フリーレント
|
|
間取図
|
外観
|
<
その他の画像
>
|
| 交通 | JR総武線 大久保駅 徒歩9分 |
|---|
| その他の交通 | JR山手線 新大久保駅 徒歩11分 JR山手線 高田馬場駅 徒歩16分 |
| 所在地 |
東京都新宿区百人町3丁目
|
| 物件種目 |
賃貸マンション |
| 賃料 |
20万円 |
管理費等 |
18,000円 |
| 敷金 / 保証金 |
1ヶ月 / なし |
礼金 |
なし |
| 敷引 |
- |
保証金償却 |
- |
| その他一時金 |
なし、鍵交換代等:33,000円~ |
保険等 |
不要 |
| 維持費等 |
- |
| 間取り |
1LDK |
専有面積 |
30.38m² |
| 築年月 |
2024年1月(築1年10ヶ月)
|
階建 / 階 |
7階建 / 4階 |
| 建物構造 |
RC |
総戸数 |
- |
| 主要採光面 |
西 |
駐車場 |
無 |
| バイク置き場 |
有 |
駐輪場 |
無 |
| 建物名・部屋番号 |
パークアクシス新宿百人町 420 |
ペット |
相談 |
| アピールポイント |
インターネット上の物件はほぼ全て当店にてご紹介可能です!まとめてご案内することも可能ですのでお気軽にお問合せください。 |
| リフォーム履歴 |
- |
| リノベーション履歴 |
- |
| 備考 |
賃貸保証等:加入要(初回保証委託料(最低20,000円):月額賃料等の50%、 2年目以降:9,600円/年)
管理形態/管理員の勤務形態:-/-
フリーレント:1ヶ月(1ヶ月)
タウンハウジングは、200社以上の会社と取引があり、常に新着の情報を仕入れております。 地域トップクラスの情報量・取扱い物件をお客様にご提案させていただきます。一部クレジット払いも対応しています♪♪
|
| エネルギー消費性能 |
- |
| 断熱性能 |
- |
| 目安光熱費 |
- |
| バス・トイレ |
バス・トイレ別、浴室乾燥機、トイレ |
| キッチン |
システムキッチン |
| セキュリティー |
オートロック |
| 収納 |
- |
| 設備・サービス |
室内洗濯機置場、フローリング、エアコン |
| TV・通信 |
インターネット対応、ケーブルTV、CS、BS端子 |
| その他 |
宅配BOX、バイク置き場、バルコニー、エレベーター |
| 契約期間 |
2年 |
現況 |
空家 |
| 条件等 |
- |
入居可能時期 |
即時 |
| 仲介手数料 |
1.1ヶ月 |
|
|
| 更新料 |
新賃料 1ヶ月 |
物件番号 |
1184195612 |
| 情報公開日 |
2025年9月23日 |
次回更新予定日 |
2025年11月7日 |
| ケータイ用バーコード |
- スマートフォンでこの物件を見る
- スマートフォンからもこの物件をご覧になれます。
|
※「-」と表示されている項目については、情報提供会社にご確認ください。
| 周辺施設 |
ユニゾンモール |
| 距離 |
970m |
写真を見る |
| 周辺施設 |
BIGBOX |
| 距離 |
1190m |
写真を見る |
| 周辺施設 |
コルモピア東中野店 |
| 距離 |
1420m |
写真を見る |
| 周辺施設 |
まいばすけっと |
| 距離 |
410m |
写真を見る |
| 周辺施設 |
Olympic |
| 距離 |
860m |
写真を見る |
| 周辺施設 |
セブンイレブン高田馬場店 |
| 距離 |
390m |
写真を見る |
| 周辺施設 |
セブンイレブン |
| 距離 |
620m |
写真を見る |
ここから簡単にお問い合わせをすることができます。
(SSLでの暗号化での送信を希望されるお客さまは
こちら
よりお問い合わせください)
お問い合わせを行う前に
「個人情報の取り扱いについて」を必ずお読みください。
「個人情報の取り扱いについて」に同意いただいた場合は「上記にご同意の上 確認画面へ進む」のボタンをクリックしてください。
個人情報の取り扱いについて
皆さまが送付された個人情報はアットホーム(株)のサーバを経由し、お問い合わせ先の不動産会社にメールまたはFAXにて転送されるためアットホーム(株)にも保管されます。アットホーム(株)で保管された個人情報の取り扱いについては、【こちら】をご覧ください。
また、本画面でご記入いただいた個人情報は、お問い合わせ先の不動産会社でも保管します。 お問い合わせ先の不動産会社が保管する個人情報の取り扱いについては、不動産会社に直接お問い合わせください。
国土交通大臣免許(1)第9926号 |
|---|
- 交通:
- 東京メトロ丸ノ内線/新中野駅 徒歩1分
- 東京都中野区本町4丁目44-11 アルペジオ新中野 1F
- TEL:
- 03-5342-2401
- FAX:
- 03-5342-2402
取引態様:仲介  - 00106977
|
- スマートフォンで
この不動産会社を見る

|
- 提携サイト等より掲載されている物件情報につきましては、不動産会社詳細情報にリンクされていないものがあります。
- 物件に関するお問合せは、物件詳細ページの「情報提供会社」に表示されている不動産会社へ直接お願いいたします。
- 間取図は、現況を優先させていただきます。
- 映像は物件の一部を撮影したものです。物件の契約にあたっての最終判断はご自身の判断に基づいて行ってください。
- 仲介手数料について

アットホームは物件情報の適正化に努めております。
内容に誤りがある場合にはこちらへご連絡ください。