神奈川県川崎市川崎区東田町(京急川崎駅)の賃貸:物件詳細
交通 所在地 |
駅徒歩 |
賃料 管理費等 |
敷金/保証金 礼金 |
間取り 面積 |
物件種目 築年月 |
|
京急大師線/京急川崎
神奈川県川崎市川崎区東田町
|
7分
|
15万円
10,000円
|
1ヶ月 / なし
2ヶ月
|
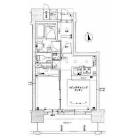
1LDK
33.51m²
|
賃貸マンション
2016年3月(築9年11ヶ月)
|
分譲タイプ、常時ゴミ出し可能、南向き、二人入居可、24時間換気システム、閑静な住宅街、外観タイル張り、保証人不要
|
|
間取図
|
外観
|
<
その他の画像
>
|
| 交通 | 京急大師線 京急川崎駅 徒歩7分 |
|---|
| その他の交通 | JR京浜東北線 川崎駅 徒歩7分 京急大師線 港町駅 徒歩15分 |
| 所在地 |
神奈川県川崎市川崎区東田町
|
| 物件種目 |
賃貸マンション |
| 賃料 |
15万円 |
管理費等 |
10,000円 |
| 敷金 / 保証金 |
1ヶ月 / なし |
礼金 |
2ヶ月 |
| 敷引 |
- |
保証金償却 |
- |
| その他一時金 |
24時間サポート:19,800円 |
保険等 |
要 2年 20,000円 |
| 維持費等 |
- |
クレジットカード決済 |
初期費用可 |
| 間取り |
1LDK |
専有面積 |
33.51m² |
| 築年月 |
2016年3月(築9年11ヶ月)
|
階建 / 階 |
12階建 / 9階 |
| 建物構造 |
RC |
総戸数 |
- |
| 主要採光面 |
南 |
駐車場 |
近有 27,000円/月 |
| バイク置き場 |
- |
駐輪場 |
有 |
| 建物名・部屋番号 |
グローベル川崎ミッドスクエア |
ペット |
-
|
| アピールポイント |
当社では他社様が掲載しているお部屋もまとめてご紹介できます。
気になるお部屋がございましたら電話又はメールにて連絡下さい。入居審査・時期やご予算含め、何でもお気軽にご相談にお越しくださいませ。 |
| リフォーム履歴 |
- |
| リノベーション履歴 |
- |
| 備考 |
賃貸保証等:加入要(初回保証料家賃の50%、月額保証料家賃の1.3%)
管理形態/管理員の勤務形態:-/巡回
管理人巡回
当社では他社様が掲載しているお部屋もまとめてご紹介できます。
気になるお部屋がございましたら電話又はメールにて連絡下さい。入居審査・時期やご予算含め、何でもお気軽にご相談にお越しくださいませ。半年未満の解約時家賃2か月分、1年未満の解約時家賃1か月分の短期違約金が掛かります。
|
| エネルギー消費性能 |
- |
| 断熱性能 |
- |
| 目安光熱費 |
- |
| バス・トイレ |
バス・トイレ別、浴室乾燥機、追焚機能、シャワー付洗面化粧台、洗面所独立、シャワー、温水洗浄便座、トイレ |
| キッチン |
カウンターキッチン、システムキッチン、浄水器、3口以上コンロ、ガスコンロ付、グリル |
| セキュリティー |
モニター付オートロック、オートロック、モニター付インターホン、防犯カメラ |
| 収納 |
全居室収納、ウォークインクローゼット、クローゼット、シューズボックス |
| 設備・サービス |
室内洗濯機置場、全居室フローリング、フローリング、都市ガス、エアコン |
| TV・通信 |
インターネット対応、光ファイバー、CS、BS端子 |
| その他 |
宅配BOX、バルコニー、駐輪場、エレベーター |
| 契約期間 |
2年 |
現況 |
居住中 |
| 条件等 |
- |
入居可能時期 |
相談 |
| 更新料 |
新賃料 1ヶ月 |
物件番号 |
1184485718 |
| 情報公開日 |
2026年1月9日 |
次回更新予定日 |
2026年1月23日 |
| ケータイ用バーコード |
- スマートフォンでこの物件を見る
- スマートフォンからもこの物件をご覧になれます。
|
※「-」と表示されている項目については、情報提供会社にご確認ください。
| 周辺施設 |
紳士服コナカ川崎本店 |
| 距離 |
240m |
写真を見る |
| 周辺施設 |
ファミリーマート川崎東田町店 |
| 距離 |
210m |
写真を見る |
| 周辺施設 |
フレックステイイン川崎貝塚 |
| 距離 |
500m |
写真を見る |
| 周辺施設 |
川崎市立宮前小学校 |
| 距離 |
590m |
写真を見る |
| 周辺施設 |
ヨドバシカメラヨドバシアウトレット京急川崎 |
| 距離 |
670m |
写真を見る |
| 周辺施設 |
エヴァホール川崎 |
| 距離 |
530m |
写真を見る |
| 周辺施設 |
松のや川崎銀座街店 |
| 距離 |
380m |
写真を見る |
| 周辺施設 |
川崎市役所通郵便局 |
| 距離 |
340m |
写真を見る |
ここから簡単にお問い合わせをすることができます。
(SSLでの暗号化での送信を希望されるお客さまは
こちら
よりお問い合わせください)
お問い合わせを行う前に
「個人情報の取り扱いについて」を必ずお読みください。
「個人情報の取り扱いについて」に同意いただいた場合は「上記にご同意の上 確認画面へ進む」のボタンをクリックしてください。
個人情報の取り扱いについて
皆さまが送付された個人情報はアットホーム(株)のサーバを経由し、お問い合わせ先の不動産会社にメールまたはFAXにて転送されるためアットホーム(株)にも保管されます。アットホーム(株)で保管された個人情報の取り扱いについては、【こちら】をご覧ください。
また、本画面でご記入いただいた個人情報は、お問い合わせ先の不動産会社でも保管します。 お問い合わせ先の不動産会社が保管する個人情報の取り扱いについては、不動産会社に直接お問い合わせください。
神奈川県知事免許(1)第32144号 |
|---|
- 交通:
- JR京浜東北線/川崎駅 徒歩5分
- 神奈川県川崎市幸区大宮町15-4 松下ビル3階
- TEL:
- 044-201-8046
- FAX:
- 044-201-8047
- 所属団体:
- (公社)全日本不動産協会会員(公社)首都圏不動産公正取引協議会加盟
取引態様:仲介  - 00275603
|
- スマートフォンで
この不動産会社を見る

|
- 提携サイト等より掲載されている物件情報につきましては、不動産会社詳細情報にリンクされていないものがあります。
- 物件に関するお問合せは、物件詳細ページの「情報提供会社」に表示されている不動産会社へ直接お願いいたします。
- 間取図は、現況を優先させていただきます。
- 映像は物件の一部を撮影したものです。物件の契約にあたっての最終判断はご自身の判断に基づいて行ってください。
- 仲介手数料について

アットホームは物件情報の適正化に努めております。
内容に誤りがある場合にはこちらへご連絡ください。