東京都台東区元浅草3丁目(新御徒町駅)の賃貸:物件詳細
交通 所在地 |
駅徒歩 |
賃料 管理費等 |
敷金/保証金 礼金 |
間取り 面積 |
物件種目 築年月 |
|
都営大江戸線/新御徒町
東京都台東区元浅草3丁目
|
3分
|
16.5万円
15,000円
|
1ヶ月 / なし
なし
|
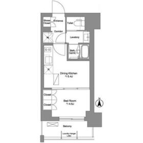
1DK
25.35m²
|
賃貸マンション
2025年2月(築1年未満)
|
ペット相談、南向き、保証人不要
|
|
間取図
|
外観
|
<
その他の画像
>
|
|
|
| 交通 | 都営大江戸線 新御徒町駅 徒歩3分 |
|---|
| その他の交通 | 東京メトロ銀座線 稲荷町駅 徒歩8分 都営浅草線 蔵前駅 徒歩13分 |
| 所在地 |
東京都台東区元浅草3丁目
|
| 物件種目 |
賃貸マンション |
| 賃料 |
16.5万円 |
管理費等 |
15,000円 |
| 敷金 / 保証金 |
1ヶ月 / なし |
礼金 |
なし |
| 敷引 |
- |
保証金償却 |
- |
| その他一時金 |
なし、鍵交換代等:33,000円~ |
保険等 |
要 |
| 維持費等 |
- |
クレジットカード決済 |
初期費用可 |
| 間取り |
1DK(DK5.4洋室4.6) |
専有面積 |
25.35m² |
| 築年月 |
2025年2月(築1年未満)
|
階建 / 階 |
14階建 / 5階 |
| 建物構造 |
RC |
総戸数 |
42戸 |
| 主要採光面 |
南 |
駐車場 |
有 49,500円/月 |
| バイク置き場 |
有 5,500円/月 |
駐輪場 |
有 275円/月 |
| 建物名・部屋番号 |
ブリリアイスト新御徒町 503 |
ペット |
相談 |
| アピールポイント |
仲介手数料【0円】でご紹介。高級賃貸専門スタッフが現地【お待合わせ】にてご案内。どのような難しいご条件でもご相談可能(審査が心配など)。初期費用(全額又は一部)分割可能(クレジットカードなど)。 |
| リフォーム履歴 |
- |
| リノベーション履歴 |
- |
| 備考 |
賃貸保証等:加入要(月額賃料等の50%(初回保証料)と月額賃料等の1%/月(更新料無))
管理形態/管理員の勤務形態:-/巡回
駐車場敷金:1.00ヶ月
管理人巡回
現地お待合わせにてご案内可能です。
短期解約時、違約金が発生する場合がございます。
|
| エネルギー消費性能 |
- |
| 断熱性能 |
- |
| 目安光熱費 |
- |
| バス・トイレ |
バス・トイレ別、浴室乾燥機、洗面所独立、温水洗浄便座、トイレ |
| キッチン |
システムキッチン、2口コンロ、ガスコンロ付 |
| セキュリティー |
モニター付オートロック、オートロック、モニター付インターホン、防犯カメラ |
| 収納 |
クローゼット、シューズボックス |
| 設備・サービス |
室内洗濯機置場、フローリング、都市ガス、エアコン |
| TV・通信 |
インターネット対応、ケーブルTV、BS端子 |
| その他 |
宅配BOX、バイク置き場、バルコニー、駐輪場、エレベーター |
| 契約期間 |
2年 |
現況 |
空家 |
| 条件等 |
- |
入居可能時期 |
即時 |
| 仲介手数料 |
不要 |
|
|
| 更新料 |
新賃料 1ヶ月 |
物件番号 |
1184571517 |
| 情報公開日 |
2025年12月15日 |
次回更新予定日 |
2026年1月2日 |
| ケータイ用バーコード |
- スマートフォンでこの物件を見る
- スマートフォンからもこの物件をご覧になれます。
|
※「-」と表示されている項目については、情報提供会社にご確認ください。
| 周辺施設 |
東京都立白鴎高等学校 附属中学校 |
| 距離 |
275m |
写真を見る |
| 周辺施設 |
台東区立平成小学校 |
| 距離 |
604m |
写真を見る |
| 周辺施設 |
永寿総合病院 |
| 距離 |
659m |
写真を見る |
| 周辺施設 |
永寿総合病院 |
| 距離 |
671m |
写真を見る |
ここから簡単にお問い合わせをすることができます。
(SSLでの暗号化での送信を希望されるお客さまは
こちら
よりお問い合わせください)
お問い合わせを行う前に
「個人情報の取り扱いについて」を必ずお読みください。
「個人情報の取り扱いについて」に同意いただいた場合は「上記にご同意の上 確認画面へ進む」のボタンをクリックしてください。
個人情報の取り扱いについて
皆さまが送付された個人情報はアットホーム(株)のサーバを経由し、お問い合わせ先の不動産会社にメールまたはFAXにて転送されるためアットホーム(株)にも保管されます。アットホーム(株)で保管された個人情報の取り扱いについては、【こちら】をご覧ください。
また、本画面でご記入いただいた個人情報は、お問い合わせ先の不動産会社でも保管します。 お問い合わせ先の不動産会社が保管する個人情報の取り扱いについては、不動産会社に直接お問い合わせください。
東京都知事免許(2)第101127号 |
|---|
- 交通:
- JR山手線/上野駅 徒歩5分
- 東京都台東区上野6丁目1-1 小西本店ビル 6階
- TEL:
- 03-5846-1636
- FAX:
- 03-5846-1635
- 所属団体:
- (公社)全日本不動産協会会員(公社)首都圏不動産公正取引協議会加盟
取引態様:仲介  - 00785903
|
- スマートフォンで
この不動産会社を見る

|
- 提携サイト等より掲載されている物件情報につきましては、不動産会社詳細情報にリンクされていないものがあります。
- 物件に関するお問合せは、物件詳細ページの「情報提供会社」に表示されている不動産会社へ直接お願いいたします。
- 間取図は、現況を優先させていただきます。
- 映像は物件の一部を撮影したものです。物件の契約にあたっての最終判断はご自身の判断に基づいて行ってください。
- 仲介手数料について

アットホームは物件情報の適正化に努めております。
内容に誤りがある場合にはこちらへご連絡ください。