東京都大田区久が原3丁目(久が原駅)の賃貸:物件詳細
交通 所在地 |
駅徒歩 |
賃料 管理費等 |
敷金/保証金 礼金 |
間取り 面積 |
物件種目 築年月 |
|
東急池上線/久が原
東京都大田区久が原3丁目
|
6分
|
5.7万円
6,000円
|
1ヶ月 / なし
1ヶ月
|
ワンルーム
18.90m²
|
賃貸マンション
1991年2月(築34年10ヶ月)
|
デザイナーズ、分譲タイプ、常時ゴミ出し可能、24時間セキュリティー、24時間換気システム、閑静な住宅街、外観タイル張り、保証人不要
|
|
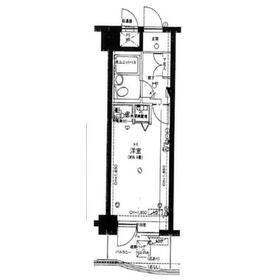
間取図
|
|
<
その他の画像
>
|
| 交通 | 東急池上線 久が原駅 徒歩6分 |
|---|
| その他の交通 | 東急東横線 多摩川駅 徒歩30分 都営浅草線 西馬込駅 徒歩25分 |
| 所在地 |
東京都大田区久が原3丁目
|
| 物件種目 |
賃貸マンション |
| 賃料 |
5.7万円 |
管理費等 |
6,000円 |
| 敷金 / 保証金 |
1ヶ月 / なし |
礼金 |
1ヶ月 |
| 敷引 |
- |
保証金償却 |
- |
| その他一時金 |
なし、鍵交換代等:22,000円~ |
保険等 |
要 2年 18,000円 |
| 維持費等 |
- |
| 間取り |
ワンルーム(洋室6.6) |
専有面積 |
18.90m² |
| 築年月 |
1991年2月(築34年10ヶ月)
|
階建 / 階 |
7階建 / 2階 |
| 建物構造 |
RC |
総戸数 |
- |
| 主要採光面 |
東 |
駐車場 |
近有 30,000円/月 |
| バイク置き場 |
無 |
駐輪場 |
有 |
| 建物名・部屋番号 |
ライオンズマンション久が原第5 |
ペット |
-
|
| リフォーム履歴 |
- |
| リノベーション履歴 |
- |
| 備考 |
管理形態/管理員の勤務形態:-/日勤
管理人日勤
★すぐに空室情報をお調べいたしますので、電話かメールでお気軽にご連絡ください★___★お部屋の写真・お図面の送付・入居時期のご相談・ご契約金のクレジットカード払い、分割払いも、お客様のご要望を喜んでお受けいたします★___★なんでもお気軽にご相談ください!!保証人様不要プランもございます!!
|
| エネルギー消費性能 |
- |
| 断熱性能 |
- |
| 目安光熱費 |
- |
| バス・トイレ |
バス・トイレ同室、シャワー、トイレ |
| キッチン |
IHクッキングヒーター |
| セキュリティー |
オートロック、防犯カメラ、火災警報器(報知機) |
| 収納 |
全居室収納、収納スペース、シューズボックス |
| 設備・サービス |
室内洗濯機置場、洗濯機置場、給湯、全居室フローリング、フローリング、都市ガス、エアコン、照明器具 |
| TV・通信 |
光ファイバー、CATVインターネット、ケーブルTV、CS、BS端子 |
| その他 |
バルコニー、駐輪場、エレベーター |
| 契約期間 |
2年 |
現況 |
居住中 |
| 条件等 |
- |
入居可能時期 |
相談 |
| 更新料 |
新賃料 1.5ヶ月 |
物件番号 |
1184672814 |
| 情報公開日 |
2025年11月1日 |
次回更新予定日 |
2025年11月15日 |
| ケータイ用バーコード |
- スマートフォンでこの物件を見る
- スマートフォンからもこの物件をご覧になれます。
|
※「-」と表示されている項目については、情報提供会社にご確認ください。
| 周辺施設 |
100ショップミーツ御嶽山店 |
| 距離 |
973m |
写真を見る |
| 周辺施設 |
セブンイレブン久が原バス通り店 |
| 距離 |
1015m |
写真を見る |
| 周辺施設 |
100円ショップキャン・ドゥ鵜の木駅前店 |
| 距離 |
1156m |
写真を見る |
| 周辺施設 |
マクドナルド1号線池上店 |
| 距離 |
1381m |
写真を見る |
| 周辺施設 |
TSUTAYA 雪谷大塚店 |
| 距離 |
1713m |
写真を見る |
| 周辺施設 |
まいばすけっと武蔵新田駅西店 |
| 距離 |
1698m |
写真を見る |
ここから簡単にお問い合わせをすることができます。
(SSLでの暗号化での送信を希望されるお客さまは
こちら
よりお問い合わせください)
お問い合わせを行う前に
「個人情報の取り扱いについて」を必ずお読みください。
「個人情報の取り扱いについて」に同意いただいた場合は「上記にご同意の上 確認画面へ進む」のボタンをクリックしてください。
個人情報の取り扱いについて
皆さまが送付された個人情報はアットホーム(株)のサーバを経由し、お問い合わせ先の不動産会社にメールまたはFAXにて転送されるためアットホーム(株)にも保管されます。アットホーム(株)で保管された個人情報の取り扱いについては、【こちら】をご覧ください。
また、本画面でご記入いただいた個人情報は、お問い合わせ先の不動産会社でも保管します。 お問い合わせ先の不動産会社が保管する個人情報の取り扱いについては、不動産会社に直接お問い合わせください。
東京都知事免許(3)第96877号 |
|---|
- 交通:
- JR山手線/五反田駅 徒歩2分
- 東京都品川区東五反田2丁目3-4-9F
- TEL:
- 03-6447-7373
- FAX:
- 03-6447-7372
- 所属団体:
- (公社)全日本不動産協会会員不動産公正取引協議会加盟
取引態様:仲介  - 00161501
|
- スマートフォンで
この不動産会社を見る

|
- 提携サイト等より掲載されている物件情報につきましては、不動産会社詳細情報にリンクされていないものがあります。
- 物件に関するお問合せは、物件詳細ページの「情報提供会社」に表示されている不動産会社へ直接お願いいたします。
- 間取図は、現況を優先させていただきます。
- 映像は物件の一部を撮影したものです。物件の契約にあたっての最終判断はご自身の判断に基づいて行ってください。
- 仲介手数料について

アットホームは物件情報の適正化に努めております。
内容に誤りがある場合にはこちらへご連絡ください。