不動産 賃貸 マンション等の住宅情報:埼玉住まい情報


福岡県福岡市東区馬出5丁目(箱崎宮前駅)の賃貸:物件詳細

  • 物件詳細
  • 情報の見方
  • 印刷用画面
交通
所在地
駅徒歩 賃料
管理費等
敷金/保証金
礼金
間取り
面積
物件種目
築年月

地下鉄箱崎線/箱崎宮前 新着

福岡県福岡市東区馬出5丁目

5分

7.9万円

4,000円

なし / なし

2ヶ月

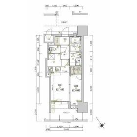
1DK

28.72m²

賃貸マンション

2022年9月(築3年4ヶ月)

おすすめPOINTペット相談、分譲タイプ

おすすめコメント  スタッフ: 永﨑

セキュリティ面は、TVインターホン・オートロックなど充実しているので安心して生活できます。室内設備は浴室乾燥機・洗面化粧台などが揃っており、とても充実しています(*^^*)

間取図

間取図

外観

外観

<
その他の画像
  • リビング
  • 収納
  • 収納
  • 洗面
  • 洗面
  • 設備
  • バス/シャワー
  • トイレ
  • その他
  • キッチン
  • キッチン
  • キッチン
  • リビング
  • 室内
  • 収納
  • 玄関
  • エントランス
  • 共有部分
  • 共有部分
  • 販売店
  • 販売店
  • 販売店
  • ショッピング施設
  • 販売店
  • コンビニ
  • 販売店
>
    • とりあえず保存
    • お問い合わせ
    交通

    地下鉄箱崎線 箱崎宮前駅 徒歩5分

    その他の交通

    地下鉄箱崎線 馬出九大病院前駅 徒歩5分

    JR鹿児島本線 吉塚駅 徒歩10分

    所在地 福岡県福岡市東区馬出5丁目
    物件種目 賃貸マンション
    賃料 7.9万円 管理費等 4,000円
    敷金 / 保証金 なし / なし 礼金 2ヶ月
    敷引 保証金償却
    その他一時金 なし、鍵交換代等:22,000円~ 保険等 要 2年 18,000円
    維持費等 町費:300円/月
    間取り 1DK(DK7.4、洋3) 専有面積 28.72m²
    築年月 2022年9月(築3年4ヶ月) 階建 / 階 14階建 / 10階
    建物構造 RC 総戸数
    主要採光面 南西 駐車場 近有 12,000円/月
    バイク置き場 駐輪場
    建物名・部屋番号 アクタス福岡県庁前グランネクスト ペット 相談
    アピールポイント セキュリティ面は、TVインターホン・オートロックなど充実しているので、防犯対策もばっちりです。収納はウォークインクロゼット・シューズボックスなど豊富なので、衣類や履き物の整理がしやすく便利です。共用部には宅配ボックスが備え付けられているため、好きなタイミングで荷物を受け取ることができます。室内設備は浴室乾燥機・洗面化粧台など充実した設備を備え付けています。2駅利用可能な物件なので、用途や行き先に応じて経路を選択できます。周辺には、徒歩5分で利用できる駅があります。利便性の高い設備も充実した、高ニーズな2022年築の物件です。造りとデザインに関して、自信をもって情報を提供できるマンションです。駐輪場付きの物件です。多くの方がこだわる、陽の当りが良好で快適な物件です。このお部屋は42.44㎡です(^^)
    リフォーム履歴
    リノベーション履歴
    備考
    賃貸保証等:利用可(ジャックス・ニッポンインシュア、初回保証委託料月額合計30%(ジャックス:月々1%手数料・更新料無. ニッポンインシュア:月330円手数料・更新料10,000円) ※契約者や条件によっては、内容が変更)
    管理形態/管理員の勤務形態:-/-
    ★人気物件に空きが出ました★初期費用カード決済可★交渉事何でもお任せください★★LINE問い合わせで毎日新着物件送信中★契約も全てLINEで完結できます♪ぜひLIBERTE株式会社へお任せください★
    共用部には宅配ボックスが備え付けられているため、日々忙しくて家にいる時間が少なくても荷物を受け取れます。セキュリティ面は、オートロック・TVインターホンなどを設置しているので安全面でも優れております。室内設備は洗面化粧台・浴室乾燥機など大変充実。収納はクロゼット・シューズボックスなど豊富なので、広々と空間を利用することも可能です。駐車場まで300mのマンション、いかがでしょうか。是非一度ご覧になってみてください。10階にある物件です。是非ご覧ください14階建ての高層建築。お風呂好きな方にニーズが高いのが、追い焚き機能付きのお風呂です。2駅利用可能な物件なので交通の利便性が良いのが魅力です。駐輪場付きのマンションです。暮らし快適物件、ネット回線有り、お家でパソコンが使えます(#^^#)
    エネルギー消費性能
    断熱性能
    目安光熱費
    バス・トイレ バス・トイレ別、浴室乾燥機、追焚機能、シャワー付洗面化粧台、洗面所独立、洗面所、洗面台、シャワー、温水洗浄便座、トイレ
    キッチン システムキッチン、2口コンロ
    セキュリティー モニター付オートロック、オートロック、モニター付インターホン、ディンプルキー、ダブルロックドア、防犯カメラ
    収納 ウォークインクローゼット、収納スペース、クローゼット、シューズボックス
    設備・サービス 室内洗濯機置場、洗濯機置場、都市ガス給湯、給湯、全居室フローリング、フローリング、都市ガス、エアコン
    TV・通信 インターネット対応、インターネット使用料無料、CS、BS端子
    その他 宅配BOX、バイク置き場、バルコニー、駐輪場、エレベーター
    契約期間 1年 現況 空家
    条件等 入居可能時期 相談
    更新料 物件番号 1184758816
    情報公開日 2025年12月19日 次回更新予定日 2026年1月2日
    ケータイ用バーコード

    QRコード

    スマートフォンでこの物件を見る
    スマートフォンからもこの物件をご覧になれます。
    ※「-」と表示されている項目については、情報提供会社にご確認ください。

    この物件の周辺情報

    周辺施設 マックスバリュ筥崎宮前店
    距離 718m
    周辺施設 サニー吉塚駅前店
    距離 758m
    周辺施設 にしてつストア レガネット筥松店
    距離 933m
    周辺施設 SUPER SPORTS XEBIO(スーパースポーツゼビオ) ゆめタウン博多店
    距離 1182m
    周辺施設 MrMax(ミスターマックス) 吉塚店
    距離 1030m
    周辺施設 ファミリーマート JR箱崎駅店
    距離 1019m
    周辺施設 タカラ薬局箱崎
    距離 835m

    クイックお問い合わせ

    ここから簡単にお問い合わせをすることができます。
    (SSLでの暗号化での送信を希望されるお客さまは こちら よりお問い合わせください)

    お問い合わせ内容(必須)
    お名前(必須) 姓  名 
    メールアドレス(必須)
    ※携帯電話のメールアドレスをご入力される方はこちらをご確認ください
    電話番号(必須)
    - -

    ※入力いただいた電話番号へSMSまたは音声でパスワードをご連絡します。

    携帯電話の番号をご入力の方へ

    携帯電話の番号をご入力の方へ
    確認画面にて送信ボタンをクリックするとSMSが携帯電話に届きます。
    そのSMSに記載のパスワード(認証番号)を入力し、お問い合わせを完了してください。
    尚、SMSの送信者番号は 0005 202 760 となります。
    これはアットホームの固定番号です。

    備考欄 希望条件、物件案内希望日、質問などがございましたらご記入ください。
    お問い合わせを行う前に「個人情報の取り扱いについて」を必ずお読みください。
    「個人情報の取り扱いについて」に同意いただいた場合は「上記にご同意の上 確認画面へ進む」のボタンをクリックしてください。

    個人情報の取り扱いについて

    皆さまが送付された個人情報はアットホーム(株)のサーバを経由し、お問い合わせ先の不動産会社にメールまたはFAXにて転送されるためアットホーム(株)にも保管されます。アットホーム(株)で保管された個人情報の取り扱いについては、【こちら】をご覧ください。
    また、本画面でご記入いただいた個人情報は、お問い合わせ先の不動産会社でも保管します。 お問い合わせ先の不動産会社が保管する個人情報の取り扱いについては、不動産会社に直接お問い合わせください。

    情報提供会社

    情報提供会社

    LIBERTE(株)

    福岡県知事免許(2)第19496号

    交通:
    地下鉄七隈線/天神南駅 徒歩5分
    福岡県福岡市中央区春吉3丁目21-18-603 
    TEL:
    092-753-9657
    FAX:
    092-753-9658
    所属団体:
    (公社)福岡県宅地建物取引業協会会員
    (一社)九州不動産公正取引協議会加盟

    取引態様:仲介

    • 会社情報
    • 80505930
    スマートフォンで
    この不動産会社を見る
    QRコード
    • とりあえず保存
    • お問い合わせ
    • 提携サイト等より掲載されている物件情報につきましては、不動産会社詳細情報にリンクされていないものがあります。
    • 物件に関するお問合せは、物件詳細ページの「情報提供会社」に表示されている不動産会社へ直接お願いいたします。
    • 間取図は、現況を優先させていただきます。
    • 映像は物件の一部を撮影したものです。物件の契約にあたっての最終判断はご自身の判断に基づいて行ってください。
    • 仲介手数料について仲介手数料

    アットホームは物件情報の適正化に努めております。 内容に誤りがある場合にはこちらへご連絡ください。

    【埼玉住まい情報】では、日本全国の物件から賃貸マンションや賃貸アパート・賃貸一戸建て等の賃貸住宅情報、新築マンション・分譲マンションや中古マンション等の売買マンション情報、新築一戸建てや中古一戸建てなどの戸建住宅、 土地など、総合的な不動産住宅情報検索サービスを提供致します。
    【埼玉住まい情報】から、選りすぐりの不動産物件を探してみましょう。

    【免責事項】
    このコーナーの運営はアットホーム株式会社(https://www.athome.co.jp/)が行っています。
    このコーナーに掲載している物件情報は、「アットホーム不動産情報ネットワーク」に加盟する不動産会社等(情報提供元)から提供されています。信頼性の高い情報提供が行えるよう、最大限の努力をしておりますが、その内容を保証するものではありません。 利用者のみなさまと各情報提供元との取引に起因する損害および情報が掲載されたことに起因する損害等については、株式会社イーシティ埼玉、およびアットホームは一切責任を負いません。
    各物件情報の内容や画像等はすべて現況を優先させていただきます。
    お取引等(お取引の準備、資金調達等を含みます)の際には、内容や契約条件等について、各情報提供元より十分な説明を受け、ご自身でご確認の上、判断してください。
    このコーナーへの物件情報のご掲載、その他不動産業務ソリューション等についての不動産会社様のお問合せはこちらからお願いいたします。

    物件画像: