大阪府大阪市西区九条1丁目(九条駅)の賃貸:物件詳細
交通 所在地 |
駅徒歩 |
賃料 管理費等 |
敷金/保証金 礼金 |
間取り 面積 |
物件種目 築年月 |
|
地下鉄中央線/九条
大阪府大阪市西区九条1丁目
|
3分
|
7.8万円
12,000円
|
なし / なし
9万円
|
1K
26.01m²
|
賃貸マンション
2020年2月(築5年9ヶ月)
|
ペット相談、デザイナーズ、常時ゴミ出し可能、最上階、高齢者相談、免震構造、24時間換気システム、バリアフリー、閑静な住宅街、IT重説対応物件
|
|
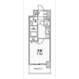
間取図
|
外観
おしゃれな外観です
|
<
その他の画像
>
|
| 交通 | 地下鉄中央線 九条駅 徒歩3分 |
|---|
| その他の交通 | 阪神なんば線 九条駅 徒歩3分 地下鉄千日前線 西長堀駅 徒歩15分 |
| 所在地 |
大阪府大阪市西区九条1丁目
|
| 物件種目 |
賃貸マンション |
| 賃料 |
7.8万円 |
管理費等 |
12,000円 |
| 敷金 / 保証金 |
なし / なし |
礼金 |
9万円 |
| 敷引 |
- |
保証金償却 |
- |
| その他一時金 |
室内清掃費用:38,500円、鍵交換代等:24,200円~ |
保険等 |
要 |
| 維持費等 |
- |
| 間取り |
1K(洋7.3) |
専有面積 |
26.01m² |
| 築年月 |
2020年2月(築5年9ヶ月)
|
階建 / 階 |
11階建 / 11階 |
| 建物構造 |
RC |
総戸数 |
- |
| 主要採光面 |
北東 |
駐車場 |
近有 25,000円/月 |
| バイク置き場 |
- |
駐輪場 |
有 |
| 建物名・部屋番号 |
La Douceur九条 |
ペット |
小型犬可・ 猫可 |
| アピールポイント |
こだわりポイント満載のLa Douceur九条。セブンイレブン 大阪ナインモール九条店まで徒歩3分と近場にコンビニがあるのもポイント。収納はシューズボックス・クロゼットなど豊富なので、広々と空間を利用することも可能です。セキュリティ面は、TVインターホン・オートロックなどを備え付けているので安心して暮らせます。共用部にはゴミ出し24時間OK・宅配ボックスなどが備わっておりとても充実しています。室内設備は洗面化粧台・浴室乾燥機など豊富に揃っており、過ごしやすいお部屋になっております。バルコニー付きの物件で、用途に合わせて活用できおすすめです。2つの調理を同時に進行できるのでサッと料理したい人におすすめな、2口コンロを設置しております。2つの路線をご利用できる場所にあり、アクセスはとても便利です。風通し良好なお部屋なので、換気もしやすく清潔さを保てます。徒歩3分の位置に駅がある物件です。 |
| リフォーム履歴 |
- |
| リノベーション履歴 |
- |
| 備考 |
賃貸保証等:加入要(月額賃料等の60% 月次保証料1.5% 年間保証料なし月額賃料等の60% 月次保証料1.5% 年間保証料なし)
管理形態/管理員の勤務形態:-/巡回
IT重説対応物件、外壁コンクリート、管理人巡回
物件のお問い合わせはSumoSumoまで♪♪
違約金:契約開始日より1年未満の解約は家賃+共益費の1ヶ月分
収納はクロゼット・シューズボックスなど豊富なので、広々と空間を利用することも可能です。共用部には宅配ボックス・ゴミ出し24時間OKなど様々な設備やサービスが揃っているので便利です。室内設備は浴室乾燥機・洗面化粧台など大変充実しております。セキュリティ面は、TVインターホン・オートロックなどを備え付けているので安心して暮らせます。高ニーズな駅近の物件で、徒歩3分で駅に行くことができます。インターネットをご利用いただけます。お財布にも優しい、BSアンテナ設置済み物件となっています。防犯対策もバッチリなマンションタイプの物件です。空き家の物件です。駐車できるスペースも近隣に確保できます。駐輪場付きのマンションです。
|
| エネルギー消費性能 |
- |
| 断熱性能 |
- |
| 目安光熱費 |
- |
| バス・トイレ |
バス・トイレ別、浴室乾燥機、高温差湯式、シャワー付洗面化粧台、洗面所独立、洗面所、洗面台、シャワールーム、シャワー、温水洗浄便座、トイレ |
| キッチン |
システムキッチン、独立型キッチン、2口コンロ、ガスコンロ可 |
| セキュリティー |
モニター付オートロック、オートロック、モニター付インターホン、防犯カメラ |
| 収納 |
収納スペース、クローゼット、シューズボックス |
| 設備・サービス |
室内洗濯機置場、洗濯機置場、都市ガス給湯、給湯、フローリング、都市ガス、エアコン、冷房、人感センサー付照明 |
| TV・通信 |
インターネット対応、インターネット使用料無料、光ファイバー、CATVインターネット、ケーブルTV、CS、BS端子 |
| その他 |
宅配BOX、エレベーター2基以上、バルコニー、駐輪場、エレベーター |
| 契約期間 |
2年 |
現況 |
空家 |
| 条件等 |
- |
入居可能時期 |
即時 |
| 更新料 |
- |
物件番号 |
1185200013 |
| 情報公開日 |
2025年8月24日 |
次回更新予定日 |
2025年11月8日 |
| ケータイ用バーコード |
- スマートフォンでこの物件を見る
- スマートフォンからもこの物件をご覧になれます。
|
※「-」と表示されている項目については、情報提供会社にご確認ください。
| 周辺施設 |
イオンモール大阪ドームシティ |
| 距離 |
585m |
写真を見る |
| 周辺施設 |
C&Cエンド 九条店 |
| 距離 |
526m |
写真を見る |
| 周辺施設 |
セブンイレブン 大阪ナインモール九条店 |
| 距離 |
199m |
写真を見る |
| 周辺施設 |
ファミリーマート 九条店 |
| 距離 |
268m |
写真を見る |
| 周辺施設 |
スギ薬局 ナインモール九条店 |
| 距離 |
161m |
写真を見る |
| 周辺施設 |
薬マツモトキヨシ 九条店 |
| 距離 |
228m |
写真を見る |
ここから簡単にお問い合わせをすることができます。
(SSLでの暗号化での送信を希望されるお客さまは
こちら
よりお問い合わせください)
お問い合わせを行う前に
「個人情報の取り扱いについて」を必ずお読みください。
「個人情報の取り扱いについて」に同意いただいた場合は「上記にご同意の上 確認画面へ進む」のボタンをクリックしてください。
個人情報の取り扱いについて
皆さまが送付された個人情報はアットホーム(株)のサーバを経由し、お問い合わせ先の不動産会社にメールまたはFAXにて転送されるためアットホーム(株)にも保管されます。アットホーム(株)で保管された個人情報の取り扱いについては、【こちら】をご覧ください。
また、本画面でご記入いただいた個人情報は、お問い合わせ先の不動産会社でも保管します。 お問い合わせ先の不動産会社が保管する個人情報の取り扱いについては、不動産会社に直接お問い合わせください。
大阪府知事免許(1)第62697号 |
|---|
- 交通:
- 地下鉄御堂筋線/心斎橋駅 徒歩3分
- 大阪府大阪市中央区南船場3丁目3-23 中和船場ビル102号
- TEL:
- 06-4400-6315
- FAX:
- 06-6258-3116
- 所属団体:
- (公社)全日本不動産協会会員(公社)近畿地区不動産公正取引協議会加盟
取引態様:仲介  - 50105934
|
- スマートフォンで
この不動産会社を見る

|
- 提携サイト等より掲載されている物件情報につきましては、不動産会社詳細情報にリンクされていないものがあります。
- 物件に関するお問合せは、物件詳細ページの「情報提供会社」に表示されている不動産会社へ直接お願いいたします。
- 間取図は、現況を優先させていただきます。
- 映像は物件の一部を撮影したものです。物件の契約にあたっての最終判断はご自身の判断に基づいて行ってください。
- 仲介手数料について

アットホームは物件情報の適正化に努めております。
内容に誤りがある場合にはこちらへご連絡ください。