東京都世田谷区宇奈根2丁目(狛江駅)の賃貸:物件詳細
交通 所在地 |
駅徒歩 |
賃料 管理費等 |
敷金/保証金 礼金 |
間取り 面積 |
物件種目 築年月 |
|
小田急小田原線/狛江 [バス利用可] バス 10分 交通安全教育センター入り口 停歩3分
東京都世田谷区宇奈根2丁目
|
29分
|
7.2万円
3,000円
|
なし / なし
なし
|
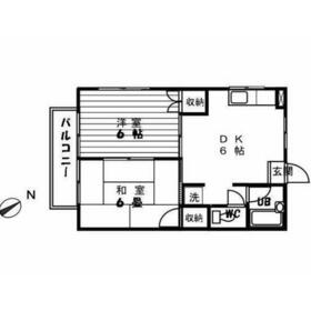
2DK
39.74m²
|
賃貸アパート
1993年1月(築32年10ヶ月)
|
角部屋、最上階、南向き、高齢者相談、二人入居可、2面採光、閑静な住宅街
|
|
間取図
|
外観
|
<
その他の画像
>
|
| 交通 | 小田急小田原線 狛江駅 徒歩29分 [バス利用可] バス 10分 交通安全教育センター入り口 停歩3分 |
|---|
| その他の交通 | 小田急小田原線 成城学園前駅 【バス】 10分 永安寺前 停歩12分 小田急小田原線 喜多見駅 【バス】 11分 岩戸南四丁目 停歩11分 |
| 所在地 |
東京都世田谷区宇奈根2丁目
|
| 物件種目 |
賃貸アパート |
| 賃料 |
7.2万円 |
管理費等 |
3,000円 |
| 敷金 / 保証金 |
なし / なし |
礼金 |
なし |
| 敷引 |
- |
保証金償却 |
- |
| その他一時金 |
室内清掃費用:67,100円、鍵交換代等:22,000円~ |
保険等 |
要 2年 25,000円 |
| 維持費等 |
24時間サポート、月額:1,100円/月、事務手数料:5,500円/月 |
クレジットカード決済 |
初期費用可 |
| 間取り |
2DK(DK6、洋6、和6) |
専有面積 |
39.74m² |
| 築年月 |
1993年1月(築32年10ヶ月)
|
階建 / 階 |
2階建 / 2階 |
| 建物構造 |
木造 |
総戸数 |
- |
| 主要採光面 |
南 |
駐車場 |
- |
| バイク置き場 |
- |
駐輪場 |
有 |
| 建物名・部屋番号 |
206 |
ペット |
-
|
| リフォーム履歴 |
- |
| リノベーション履歴 |
- |
| 備考 |
賃貸保証等:加入要(初回賃料総額の50~100%)
管理形態/管理員の勤務形態:-/-
こだわりポイント満載の加賀見ハイツ。ファミリー向けのポイント、明正小学校が徒歩23分のところにあります。室内設備はエアコン・フローリングなど大変充実しております。当社は、多種多様な賃貸情報を取り扱っております。スタッフ一同、快適な住まいをご提供いただけるよう、全力で努めてまいりますので、ぜひ当社にお任せ下さい。
インターネットに公開されていない、情報や他社様でご紹介中、掲載中の物件も全てまとめてご紹介やご相談可能です。
|
| エネルギー消費性能 |
- |
| 断熱性能 |
- |
| 目安光熱費 |
- |
| バス・トイレ |
バス・トイレ別、洗面台、シャワー、トイレ |
| キッチン |
ガスコンロ可 |
| セキュリティー |
- |
| 収納 |
- |
| 設備・サービス |
室内洗濯機置場、洗濯機置場、プロパンガス給湯、給湯、フローリング、プロパンガス、エアコン |
| TV・通信 |
インターネット対応 |
| その他 |
駐輪場 |
| 契約期間 |
2年 |
現況 |
空家 |
| 条件等 |
- |
入居可能時期 |
即時 |
| 更新料 |
- |
物件番号 |
1185367310 |
| 情報公開日 |
2025年6月5日 |
次回更新予定日 |
2025年10月28日 |
| ケータイ用バーコード |
- スマートフォンでこの物件を見る
- スマートフォンからもこの物件をご覧になれます。
|
※「-」と表示されている項目については、情報提供会社にご確認ください。
| 周辺施設 |
デイリーヤマザキ 喜多見5丁目店 |
| 距離 |
1211m |
写真を見る |
| 周辺施設 |
OK(オーケー) 成城店 |
| 距離 |
1477m |
写真を見る |
| 周辺施設 |
サミットストア 成城店 |
| 距離 |
1655m |
写真を見る |
| 周辺施設 |
セブンイレブン 世田谷成城1丁目店 |
| 距離 |
1906m |
写真を見る |
| 周辺施設 |
無添 くら寿司 世田谷喜多見店 |
| 距離 |
1946m |
写真を見る |
ここから簡単にお問い合わせをすることができます。
(SSLでの暗号化での送信を希望されるお客さまは
こちら
よりお問い合わせください)
お問い合わせを行う前に
「個人情報の取り扱いについて」を必ずお読みください。
「個人情報の取り扱いについて」に同意いただいた場合は「上記にご同意の上 確認画面へ進む」のボタンをクリックしてください。
個人情報の取り扱いについて
皆さまが送付された個人情報はアットホーム(株)のサーバを経由し、お問い合わせ先の不動産会社にメールまたはFAXにて転送されるためアットホーム(株)にも保管されます。アットホーム(株)で保管された個人情報の取り扱いについては、【こちら】をご覧ください。
また、本画面でご記入いただいた個人情報は、お問い合わせ先の不動産会社でも保管します。 お問い合わせ先の不動産会社が保管する個人情報の取り扱いについては、不動産会社に直接お問い合わせください。
東京都知事免許(5)第83621号 |
|---|
- 交通:
- 小田急小田原線/成城学園前駅 徒歩1分
- 東京都世田谷区成城6丁目11-1 成城フェリスⅢ2階
- TEL:
- 03-6411-9314
- FAX:
- 03-6411-9315
- 所属団体:
- (公社)東京都宅地建物取引業協会会員(公社)首都圏不動産公正取引協議会加盟
取引態様:仲介  - 00106079
|
- スマートフォンで
この不動産会社を見る

|
- 提携サイト等より掲載されている物件情報につきましては、不動産会社詳細情報にリンクされていないものがあります。
- 物件に関するお問合せは、物件詳細ページの「情報提供会社」に表示されている不動産会社へ直接お願いいたします。
- 間取図は、現況を優先させていただきます。
- 映像は物件の一部を撮影したものです。物件の契約にあたっての最終判断はご自身の判断に基づいて行ってください。
- 仲介手数料について

アットホームは物件情報の適正化に努めております。
内容に誤りがある場合にはこちらへご連絡ください。