東京都葛飾区東四つ木3丁目(四ツ木駅)の賃貸:物件詳細
交通 所在地 |
駅徒歩 |
賃料 管理費等 |
敷金/保証金 礼金 |
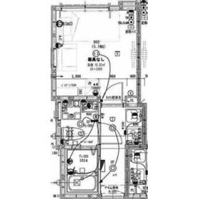
間取り 面積 |
物件種目 築年月 |
京成押上線/四ツ木
東京都葛飾区東四つ木3丁目
|
8分
|
6.2万円
5,000円
|
1ヶ月 / なし
1ヶ月
|
1K
16.83m²
|
賃貸アパート
2024年9月(築1年2ヶ月)
|
角部屋、24時間換気システム、保証人不要
|
間取図
|
外観
|
<
その他の画像
>
|
交通 | 京成押上線 四ツ木駅 徒歩8分 |
---|
その他の交通 | 東武伊勢崎線 鐘ヶ淵駅 【バス】 4分 四ツ木橋 停歩15分 京成本線 お花茶屋駅 【バス】 6分 四ツ木橋 停歩15分 |
所在地 |
東京都葛飾区東四つ木3丁目
|
物件種目 |
賃貸アパート |
賃料 |
6.2万円 |
管理費等 |
5,000円 |
敷金 / 保証金 |
1ヶ月 / なし |
礼金 |
1ヶ月 |
敷引 |
- |
保証金償却 |
- |
その他一時金 |
なし、鍵交換代等:27,500円~ |
保険等 |
要 2年 15,000円 |
維持費等 |
ジャパンライフサポート24:1,100円/月 |
間取り |
1K(洋5.5、K1.5) |
専有面積 |
16.83m² |
築年月 |
2024年9月(築1年2ヶ月)
|
階建 / 階 |
3階建 / 2階 |
建物構造 |
木造 |
総戸数 |
- |
主要採光面 |
北東 |
駐車場 |
無 |
バイク置き場 |
- |
駐輪場 |
- |
建物名・部屋番号 |
プルミエールよつ木 |
ペット |
-
|
アピールポイント |
※仲介手数料無料 『ご来店初めてのお客様・当物件を契約に限る』
ご来店時にはインターネット上の他社様が掲載している物件、SUUMO等に非掲載の人気物件等まとめてご紹介が可能です。
|
リフォーム履歴 |
- |
リノベーション履歴 |
- |
備考 |
賃貸保証等:加入要(総賃料の50%~ 更新料:1万円/年 他1社)
管理形態/管理員の勤務形態:-/-
掲載の物件写真は実際の設備と異なることがありますのでご了承ください。
現状優先での貸し出しとなります。
・短期解約違約金あり(1年未満、総賃料1ヵ月分)
|
エネルギー消費性能 |
- |
断熱性能 |
- |
目安光熱費 |
- |
バス・トイレ |
バス・トイレ別、浴室乾燥機、シャワー付洗面化粧台、洗面所独立、洗面所、温水洗浄便座、トイレ |
キッチン |
システムキッチン、2口コンロ、ガスコンロ可 |
セキュリティー |
モニター付インターホン |
収納 |
収納スペース、シューズボックス |
設備・サービス |
室内洗濯機置場、洗濯機置場、フローリング、都市ガス、エアコン |
TV・通信 |
インターネット対応、インターネット使用料無料、ケーブルTV |
その他 |
宅配BOX |
契約期間 |
2年 |
現況 |
空家 |
条件等 |
- |
入居可能時期 |
相談 |
更新料 |
新賃料 1ヶ月 |
物件番号 |
1185390313 |
情報公開日 |
2025年9月7日 |
次回更新予定日 |
2025年10月26日 |
ケータイ用バーコード |
- スマートフォンでこの物件を見る
- スマートフォンからもこの物件をご覧になれます。
|
※「-」と表示されている項目については、情報提供会社にご確認ください。
周辺施設 |
セブンイレブン 葛飾東立石1丁目店 |
距離 |
761m |
写真を見る |
ここから簡単にお問い合わせをすることができます。
(SSLでの暗号化での送信を希望されるお客さまは
こちら
よりお問い合わせください)
お問い合わせを行う前に
「個人情報の取り扱いについて」を必ずお読みください。
「個人情報の取り扱いについて」に同意いただいた場合は「上記にご同意の上 確認画面へ進む」のボタンをクリックしてください。
個人情報の取り扱いについて
皆さまが送付された個人情報はアットホーム(株)のサーバを経由し、お問い合わせ先の不動産会社にメールまたはFAXにて転送されるためアットホーム(株)にも保管されます。アットホーム(株)で保管された個人情報の取り扱いについては、【こちら】をご覧ください。
また、本画面でご記入いただいた個人情報は、お問い合わせ先の不動産会社でも保管します。 お問い合わせ先の不動産会社が保管する個人情報の取り扱いについては、不動産会社に直接お問い合わせください。
国土交通大臣免許(1)第10788号 |
---|
- 交通:
- JR常磐線/北千住駅 徒歩5分
- 東京都足立区千住4丁目19-11 2階
- TEL:
- 03-5284-7783
- 所属団体:
- (公社)東京都宅地建物取引業協会会員(公社)首都圏不動産公正取引協議会加盟
取引態様:仲介  - 00278735
|
- スマートフォンで
この不動産会社を見る

|
- 提携サイト等より掲載されている物件情報につきましては、不動産会社詳細情報にリンクされていないものがあります。
- 物件に関するお問合せは、物件詳細ページの「情報提供会社」に表示されている不動産会社へ直接お願いいたします。
- 間取図は、現況を優先させていただきます。
- 映像は物件の一部を撮影したものです。物件の契約にあたっての最終判断はご自身の判断に基づいて行ってください。
- 仲介手数料について

アットホームは物件情報の適正化に努めております。
内容に誤りがある場合にはこちらへご連絡ください。