東京都大田区南蒲田1丁目(京急蒲田駅)の賃貸:物件詳細
交通 所在地 |
駅徒歩 |
賃料 管理費等 |
敷金/保証金 礼金 |
間取り 面積 |
物件種目 築年月 |
|
京急本線/京急蒲田
東京都大田区南蒲田1丁目
|
2分
|
8.7万円
10,000円
|
0.5ヶ月 / なし
1ヶ月
|
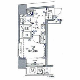
1K
21.20m²
|
賃貸マンション
2002年5月(築23年7ヶ月)
|
ペット相談、分譲タイプ、常時ゴミ出し可能、角部屋、南向き、高齢者相談、ルームシェア可、二人入居可、事務所使用可、法人契約希望、24時間換気システム
|
|
間取図
|
外観
|
<
その他の画像
>
|
| 交通 | 京急本線 京急蒲田駅 徒歩2分 |
|---|
| その他の交通 | JR京浜東北線 蒲田駅 徒歩13分 京急本線 梅屋敷駅 徒歩12分 |
| 所在地 |
東京都大田区南蒲田1丁目
|
| 物件種目 |
賃貸マンション |
| 賃料 |
8.7万円 |
管理費等 |
10,000円 |
| 敷金 / 保証金 |
0.5ヶ月 / なし |
礼金 |
1ヶ月 |
| 敷引 |
- |
保証金償却 |
- |
| その他一時金 |
なし |
保険等 |
要 |
| 維持費等 |
- |
| 間取り |
1K |
専有面積 |
21.20m² |
| 築年月 |
2002年5月(築23年7ヶ月)
|
階建 / 階 |
13階建 / 6階 |
| 建物構造 |
SRC |
総戸数 |
78戸 |
| 主要採光面 |
南 |
駐車場 |
無 |
| バイク置き場 |
有 |
駐輪場 |
有 |
| 建物名・部屋番号 |
シンシア蒲田ステーションプラザ 601 |
ペット |
相談 |
| アピールポイント |
室内見学承ります・お客様のご都合に合わせてオンラインまたはお近くの店舗でご提案可・初期費用分割払い可・クレジットカード利用可・引越業者割引・初期費用のお見積や入居日のご相談もお気軽にお問合せください |
| リフォーム履歴 |
- |
| リノベーション履歴 |
- |
| 備考 |
賃貸保証等:加入要(詳細はお問合わせください。)
管理形態/管理員の勤務形態:-/巡回
バルコニー:2.65m²
管理人巡回
当物件は「住まいのリライフ」で取り扱っております。リライフは首都圏25店舗のネットワークで豊富な物件情報をお客様へご提供します。当物件に類似した未公開物件なども合わせてご提案可能です。お気軽にお問合せください。
|
| エネルギー消費性能 |
- |
| 断熱性能 |
- |
| 目安光熱費 |
- |
| バス・トイレ |
バス・トイレ別、浴室乾燥機、温水洗浄便座 |
| キッチン |
ガスコンロ可 |
| セキュリティー |
オートロック、モニター付インターホン、防犯カメラ |
| 収納 |
シューズボックス |
| 設備・サービス |
室内洗濯機置場、全居室フローリング、フローリング、都市ガス、エアコン |
| TV・通信 |
インターネット対応、ケーブルTV、CS、BS端子 |
| その他 |
宅配BOX、バイク置き場、バルコニー、駐輪場、エレベーター |
| 契約期間 |
2年 |
現況 |
居住中 |
| 条件等 |
- |
入居可能時期 |
2025年10月下旬予定 |
| 更新料 |
新賃料 1ヶ月 |
物件番号 |
1186084002 |
| 情報公開日 |
2025年9月20日 |
次回更新予定日 |
2025年11月12日 |
| ケータイ用バーコード |
- スマートフォンでこの物件を見る
- スマートフォンからもこの物件をご覧になれます。
|
※「-」と表示されている項目については、情報提供会社にご確認ください。
| 周辺施設 |
京急ストア 蒲田店 |
| 距離 |
124m |
写真を見る |
| 周辺施設 |
ライフ 京急蒲田駅前店 |
| 距離 |
186m |
写真を見る |
| 周辺施設 |
セブンイレブン 京急ST蒲田東口駅前広場店 |
| 距離 |
84m |
写真を見る |
| 周辺施設 |
セブンイレブン 京急ST蒲田改札前店 |
| 距離 |
101m |
写真を見る |
| 周辺施設 |
クリエイトSD ウィングキッチン京急蒲田店 |
| 距離 |
106m |
写真を見る |
| 周辺施設 |
ポニークリーニング ウィングキッチン京急蒲田店 |
| 距離 |
74m |
写真を見る |
| 周辺施設 |
JCHO東京蒲田医療センター |
| 距離 |
732m |
| 周辺施設 |
ホームセンターコーナン 本羽田萩中店 |
| 距離 |
1912m |
ここから簡単にお問い合わせをすることができます。
(SSLでの暗号化での送信を希望されるお客さまは
こちら
よりお問い合わせください)
お問い合わせを行う前に
「個人情報の取り扱いについて」を必ずお読みください。
「個人情報の取り扱いについて」に同意いただいた場合は「上記にご同意の上 確認画面へ進む」のボタンをクリックしてください。
個人情報の取り扱いについて
皆さまが送付された個人情報はアットホーム(株)のサーバを経由し、お問い合わせ先の不動産会社にメールまたはFAXにて転送されるためアットホーム(株)にも保管されます。アットホーム(株)で保管された個人情報の取り扱いについては、【こちら】をご覧ください。
また、本画面でご記入いただいた個人情報は、お問い合わせ先の不動産会社でも保管します。 お問い合わせ先の不動産会社が保管する個人情報の取り扱いについては、不動産会社に直接お問い合わせください。
国土交通大臣免許(1)第10792号 |
|---|
- 交通:
- JR京浜東北線/蒲田駅 徒歩2分
- 東京都大田区蒲田5丁目18-1 ザ・シティ蒲田6階
- TEL:
- 03-4216-2419
- FAX:
- 03-6424-7454
- 所属団体:
- (公社)東京都宅地建物取引業協会会員(公社)首都圏不動産公正取引協議会加盟
取引態様:仲介  - 00277690
|
- スマートフォンで
この不動産会社を見る

|
- 提携サイト等より掲載されている物件情報につきましては、不動産会社詳細情報にリンクされていないものがあります。
- 物件に関するお問合せは、物件詳細ページの「情報提供会社」に表示されている不動産会社へ直接お願いいたします。
- 間取図は、現況を優先させていただきます。
- 映像は物件の一部を撮影したものです。物件の契約にあたっての最終判断はご自身の判断に基づいて行ってください。
- 仲介手数料について

アットホームは物件情報の適正化に努めております。
内容に誤りがある場合にはこちらへご連絡ください。