東京都杉並区高円寺北2丁目(高円寺駅)の賃貸:物件詳細
交通 所在地 |
駅徒歩 |
賃料 管理費等 |
敷金/保証金 礼金 |
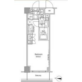
間取り 面積 |
物件種目 築年月 |
|
JR中央線/高円寺
東京都杉並区高円寺北2丁目
|
7分
|
11.7万円
10,000円
|
1ヶ月 / なし
1ヶ月
|
ワンルーム
25.01m²
|
賃貸マンション
2015年8月(築10年4ヶ月)
|
ペット相談、楽器相談、常時ゴミ出し可能、SOHO向き、24時間換気システム、保証人不要
|
|
間取図
|
外観
ザ・パークハビオ高円寺
|
<
その他の画像
>
|
| 交通 | JR中央線 高円寺駅 徒歩7分 |
|---|
| その他の交通 | 東京メトロ東西線 中野駅 徒歩18分 西武新宿線 野方駅 徒歩20分 |
| 所在地 |
東京都杉並区高円寺北2丁目
|
| 物件種目 |
賃貸マンション |
| 賃料 |
11.7万円 |
管理費等 |
10,000円 |
| 敷金 / 保証金 |
1ヶ月 / なし |
礼金 |
1ヶ月 |
| 敷引 |
- |
保証金償却 |
- |
| その他一時金 |
M-REALプレミアムクラブ会員費:19,800円、鍵交換代等:33,000円~ |
保険等 |
要 2年 32,000円 |
| 維持費等 |
- |
クレジットカード決済 |
初期費用可 |
| 間取り |
ワンルーム(洋8.0) |
専有面積 |
25.01m² |
| 築年月 |
2015年8月(築10年4ヶ月)
|
階建 / 階 |
5階建 / 4階 |
| 建物構造 |
RC |
総戸数 |
108戸 |
| 主要採光面 |
西 |
駐車場 |
空無 |
| バイク置き場 |
有 |
駐輪場 |
有 |
| 建物名・部屋番号 |
ザ・パークハビオ高円寺 407 |
ペット |
相談 |
| アピールポイント |
室内見学承ります・お客様のご都合に合わせてオンラインまたはお近くの店舗でご提案可・初期費用分割払い可・クレジットカード利用可・引越業者割引・初期費用のお見積や入居日のご相談もお気軽にお問合せください |
| リフォーム履歴 |
- |
| リノベーション履歴 |
- |
| 備考 |
賃貸保証等:加入要(初回:月額賃料等の50%~)
管理形態/管理員の勤務形態:-/日勤
バルコニー:3.6m²
管理人日勤
当物件は「住まいのリライフ」で取り扱っております。リライフは首都圏25店舗のネットワークで豊富な物件情報をお客様へご提供します。当物件に類似した未公開物件なども合わせてご提案可能です。お気軽にお問合せください。
M-REALプレミアム会費2年:1.98万円
敷金積み増し:ペット飼育(1.00ヶ月) 事務所兼用(1.00ヶ月)
|
| エネルギー消費性能 |
- |
| 断熱性能 |
- |
| 目安光熱費 |
- |
| バス・トイレ |
バス・トイレ別、浴室乾燥機、追焚機能、洗面所独立、温水洗浄便座 |
| キッチン |
システムキッチン、2口コンロ、ガスコンロ可 |
| セキュリティー |
オートロック、モニター付インターホン、防犯カメラ |
| 収納 |
クローゼット、シューズボックス |
| 設備・サービス |
室内洗濯機置場、フローリング、都市ガス、エアコン |
| TV・通信 |
インターネット使用料無料、光ファイバー、BS端子 |
| その他 |
宅配BOX、バイク置き場、エレベーター2基以上、バルコニー、駐輪場、エレベーター |
| 契約期間 |
2年 |
現況 |
居住中 |
| 条件等 |
- |
入居可能時期 |
2026年1月下旬予定 |
| 更新料 |
新賃料 1ヶ月 |
物件番号 |
1186723602 |
| 情報公開日 |
2025年10月17日 |
次回更新予定日 |
2025年11月14日 |
| ケータイ用バーコード |
- スマートフォンでこの物件を見る
- スマートフォンからもこの物件をご覧になれます。
|
※「-」と表示されている項目については、情報提供会社にご確認ください。
| 周辺施設 |
まいばすけっと高円寺駅北店 |
| 距離 |
220m |
写真を見る |
| 周辺施設 |
マルエツ プチ 大和町店 |
| 距離 |
279m |
写真を見る |
| 周辺施設 |
セブンイレブン杉並高円寺北1丁目店 |
| 距離 |
186m |
写真を見る |
| 周辺施設 |
セブンイレブン杉並高円寺北2丁目店 |
| 距離 |
212m |
写真を見る |
| 周辺施設 |
ココカラファイン 高円寺店 |
| 距離 |
336m |
写真を見る |
| 周辺施設 |
ポニークリーニング高円寺北口店 |
| 距離 |
319m |
写真を見る |
| 周辺施設 |
オリンピック高円寺店 |
| 距離 |
240m |
写真を見る |
ここから簡単にお問い合わせをすることができます。
(SSLでの暗号化での送信を希望されるお客さまは
こちら
よりお問い合わせください)
お問い合わせを行う前に
「個人情報の取り扱いについて」を必ずお読みください。
「個人情報の取り扱いについて」に同意いただいた場合は「上記にご同意の上 確認画面へ進む」のボタンをクリックしてください。
個人情報の取り扱いについて
皆さまが送付された個人情報はアットホーム(株)のサーバを経由し、お問い合わせ先の不動産会社にメールまたはFAXにて転送されるためアットホーム(株)にも保管されます。アットホーム(株)で保管された個人情報の取り扱いについては、【こちら】をご覧ください。
また、本画面でご記入いただいた個人情報は、お問い合わせ先の不動産会社でも保管します。 お問い合わせ先の不動産会社が保管する個人情報の取り扱いについては、不動産会社に直接お問い合わせください。
国土交通大臣免許(1)第10792号 |
|---|
- 交通:
- JR中央線/高円寺駅 徒歩1分
- 東京都杉並区高円寺南4丁目27-8 フィルイン高円寺1階
- TEL:
- 03-4431-3238
- FAX:
- 03-5913-8031
- 所属団体:
- (公社)東京都宅地建物取引業協会会員(公社)首都圏不動産公正取引協議会加盟
取引態様:仲介  - 00270211
|
- スマートフォンで
この不動産会社を見る

|
- 提携サイト等より掲載されている物件情報につきましては、不動産会社詳細情報にリンクされていないものがあります。
- 物件に関するお問合せは、物件詳細ページの「情報提供会社」に表示されている不動産会社へ直接お願いいたします。
- 間取図は、現況を優先させていただきます。
- 映像は物件の一部を撮影したものです。物件の契約にあたっての最終判断はご自身の判断に基づいて行ってください。
- 仲介手数料について

アットホームは物件情報の適正化に努めております。
内容に誤りがある場合にはこちらへご連絡ください。