兵庫県神戸市中央区中町通4丁目(神戸駅)の賃貸:物件詳細
交通 所在地 |
駅徒歩 |
賃料 管理費等 |
敷金/保証金 礼金 |
間取り 面積 |
物件種目 築年月 |
|
JR東海道本線/神戸
兵庫県神戸市中央区中町通4丁目
|
7分
|
6.7万円
8,280円
|
なし / なし
1ヶ月
|
1K
24.48m²
|
賃貸マンション
2019年8月(築6年5ヶ月)
|
ペット相談、分譲タイプ、閑静な住宅街、IT重説対応物件、保証人不要
|
|
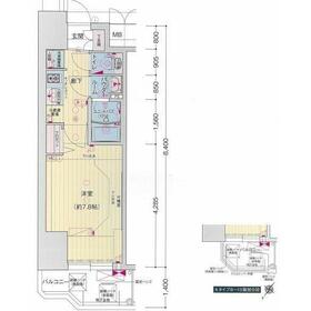
間取図
広めの使いやすい間取りですね♪
|
外観
外はこのようになっています
|
<
その他の画像
>
|
| 交通 | JR東海道本線 神戸駅 徒歩7分 |
|---|
| その他の交通 | 神戸高速東西線 新開地駅 徒歩8分 神戸電鉄有馬線 湊川駅 徒歩12分 |
| 所在地 |
兵庫県神戸市中央区中町通4丁目
|
| 物件種目 |
賃貸マンション |
| 賃料 |
6.7万円 |
管理費等 |
8,280円 |
| 敷金 / 保証金 |
なし / なし |
礼金 |
1ヶ月 |
| 敷引 |
- |
保証金償却 |
- |
| その他一時金 |
なし、鍵交換代等:30,000円~ |
保険等 |
要 2年 18,000円 |
| 維持費等 |
- |
クレジットカード決済 |
初期費用可 |
| 間取り |
1K |
専有面積 |
24.48m² |
| 築年月 |
2019年8月(築6年5ヶ月)
|
階建 / 階 |
13階建 / 2階 |
| 建物構造 |
RC |
総戸数 |
- |
| 主要採光面 |
北西 |
駐車場 |
近有 20,000円/月 |
| バイク置き場 |
- |
駐輪場 |
- |
| 建物名・部屋番号 |
ララプレイス ザ 神戸シルフ |
ペット |
相談 |
| アピールポイント |
セキュリティ面は、TVインターホン・オートロックなどを備え付けているので安心して暮らせます。室内設備は浴室乾燥機・洗面化粧台などが揃っているので、快適に過ごしやすいお部屋になります。収納はシューズボックス・クロゼットなど豊富なので、衣類や履き物の整理がしやすく便利です。共用部には宅配ボックスが備え付けられているため、日々忙しくて家にいる時間が少なくても荷物を受け取れます。近隣にパーキングがあり、遠くに車を停めなくても大丈夫です。システムキッチンは天板に隙間がないため水がたまる心配がなく、家事も快適にこなせます。こちらは初期費用をカードでお支払いいただける物件です。忙しい時でも効率よく料理したい人におすすめな、2口コンロを設置。大量の洗濯物もバルコニーで解決。フローリング張りの物件なので床掃除が簡単です。こちらの物件はマンションです。 |
| リフォーム履歴 |
- |
| リノベーション履歴 |
- |
| 備考 |
賃貸保証等:加入要(初回保証料50%から)
管理形態/管理員の勤務形態:-/-
IT重説対応物件
セキュリティ面は、オートロック・TVインターホンなど充実しているので安心して生活できます。室内設備は洗面所独立・浴室乾燥機など大変充実。収納はクロゼット・シューズボックスなど豊富なので、広々と空間を利用することも可能です。不在時でも荷物を受け取ることができるため、時間調整の手間が省ける宅配ボックスが付いています。バルコニー付きのマンションです。暑い日も寒い日も使えるエアコンが付いており、空調管理に便利。外装もおしゃれで快適な生活をおくることができるマンションです。洋風なお住まいをお求めの方に適した全居室フローリングです。ニーズが高い1Kのお部屋、一人暮らしをする方にもおすすめです。ペットと入居できるか事前にご相談いただける物件です。コンロや作業台が一体化しているので段差がなく、掃除がとても楽になるシステムキッチンがあります。
収納はクロゼット・シューズボックスなど豊富なので、広々と空間を利用することも可能です。宅配ボックス付きのマンションなので時間を気にせず荷物受け取りができます。室内設備は浴室乾燥機・洗面所独立など充実した設備を備え付けています。セキュリティ面は、オートロック・TV
|
| エネルギー消費性能 |
- |
| 断熱性能 |
- |
| 目安光熱費 |
- |
| バス・トイレ |
バス・トイレ別、浴室乾燥機、シャワー付洗面化粧台、洗面所独立、洗面所、シャワールーム、シャワー、温水洗浄便座、トイレ |
| キッチン |
システムキッチン、2口コンロ、ガスコンロ可 |
| セキュリティー |
モニター付オートロック、オートロック、モニター付インターホン |
| 収納 |
収納スペース、クローゼット、シューズボックス |
| 設備・サービス |
室内洗濯機置場、洗濯機置場、給湯、全居室フローリング、フローリング、エアコン |
| TV・通信 |
CS、BS端子 |
| その他 |
宅配BOX、バルコニー |
| 契約期間 |
2年 |
現況 |
空家 |
| 条件等 |
- |
入居可能時期 |
即時 |
| 更新料 |
新賃料 1ヶ月 |
物件番号 |
1186917613 |
| 情報公開日 |
2025年11月26日 |
次回更新予定日 |
2025年12月28日 |
| ケータイ用バーコード |
- スマートフォンでこの物件を見る
- スマートフォンからもこの物件をご覧になれます。
|
※「-」と表示されている項目については、情報提供会社にご確認ください。
ここから簡単にお問い合わせをすることができます。
(SSLでの暗号化での送信を希望されるお客さまは
こちら
よりお問い合わせください)
お問い合わせを行う前に
「個人情報の取り扱いについて」を必ずお読みください。
「個人情報の取り扱いについて」に同意いただいた場合は「上記にご同意の上 確認画面へ進む」のボタンをクリックしてください。
個人情報の取り扱いについて
皆さまが送付された個人情報はアットホーム(株)のサーバを経由し、お問い合わせ先の不動産会社にメールまたはFAXにて転送されるためアットホーム(株)にも保管されます。アットホーム(株)で保管された個人情報の取り扱いについては、【こちら】をご覧ください。
また、本画面でご記入いただいた個人情報は、お問い合わせ先の不動産会社でも保管します。 お問い合わせ先の不動産会社が保管する個人情報の取り扱いについては、不動産会社に直接お問い合わせください。
国土交通大臣免許(1)第11032号 |
|---|
- 交通:
- JR東海道本線/三ノ宮駅 徒歩5分
- 兵庫県神戸市中央区二宮町4丁目7-7 101号
- TEL:
- 078-855-7936
- FAX:
- 078-855-7937
- 所属団体:
- (公社)全日本不動産協会会員(公社)近畿地区不動産公正取引協議会加盟
取引態様:仲介  - 50106463
|
- スマートフォンで
この不動産会社を見る

|
- 提携サイト等より掲載されている物件情報につきましては、不動産会社詳細情報にリンクされていないものがあります。
- 物件に関するお問合せは、物件詳細ページの「情報提供会社」に表示されている不動産会社へ直接お願いいたします。
- 間取図は、現況を優先させていただきます。
- 映像は物件の一部を撮影したものです。物件の契約にあたっての最終判断はご自身の判断に基づいて行ってください。
- 仲介手数料について

アットホームは物件情報の適正化に努めております。
内容に誤りがある場合にはこちらへご連絡ください。