東京都八王子市明神町4丁目(八王子駅)の賃貸:物件詳細
交通 所在地 |
駅徒歩 |
賃料 管理費等 |
敷金/保証金 礼金 |
間取り 面積 |
物件種目 築年月 |
|
JR中央線/八王子
東京都八王子市明神町4丁目
|
7分
|
8.6万円
10,000円
|
なし / なし
なし
|
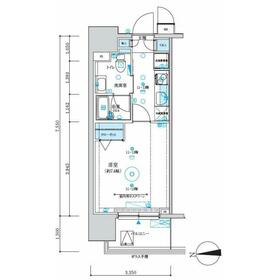
1K
25.64m²
|
賃貸マンション
2025年9月
|
ペット相談、常時ゴミ出し可能、角部屋、外観タイル張り、保証人不要
|
|
間取図
|
外観
|
<
その他の画像
>
|
| 交通 | JR中央線 八王子駅 徒歩7分 |
|---|
| その他の交通 | 京王線 京王八王子駅 徒歩2分 京王高尾線 京王片倉駅 徒歩26分 |
| 所在地 |
東京都八王子市明神町4丁目
|
| 物件種目 |
賃貸マンション |
| 賃料 |
8.6万円 |
管理費等 |
10,000円 |
| 敷金 / 保証金 |
なし / なし |
礼金 |
なし |
| 敷引 |
- |
保証金償却 |
- |
| その他一時金 |
なし |
保険等 |
要 2年 15,000円 |
| 維持費等 |
- |
| 間取り |
1K(洋7.4) |
専有面積 |
25.64m² |
| 築年月 |
2025年9月
|
階建 / 階 |
13階建 / 10階 |
| 建物構造 |
RC |
総戸数 |
- |
| 主要採光面 |
西 |
駐車場 |
近有 22,000円/月 |
| バイク置き場 |
- |
駐輪場 |
有 |
| 建物名・部屋番号 |
MAXIV八王子TRE 1006 |
ペット |
小型犬可・ 猫可 |
| リフォーム履歴 |
- |
| リノベーション履歴 |
- |
| 備考 |
賃貸保証等:加入要(初回保証料:賃料等総額の40%~50% 月額保証料:770円~800円)
管理形態/管理員の勤務形態:-/-
初回保証料:賃料等総額の40%~50% 月額保証料:770円~800円
|
| エネルギー消費性能 |
- |
| 断熱性能 |
- |
| 目安光熱費 |
- |
| バス・トイレ |
バス・トイレ別、浴室乾燥機、シャワー付洗面化粧台、洗面所独立、洗面所、シャワー、温水洗浄便座、トイレ |
| キッチン |
システムキッチン、2口コンロ、ガスコンロ可 |
| セキュリティー |
モニター付オートロック、オートロック、モニター付インターホン、防犯カメラ |
| 収納 |
収納スペース、クローゼット、シューズボックス |
| 設備・サービス |
室内洗濯機置場、洗濯機置場、都市ガス給湯、給湯、全居室フローリング、フローリング、都市ガス、エアコン |
| TV・通信 |
インターネット対応、インターネット使用料無料、光ファイバー |
| その他 |
宅配BOX、バルコニー、駐輪場、エレベーター |
| 契約期間 |
2年 |
現況 |
空家 |
| 条件等 |
- |
入居可能時期 |
即時 |
| 更新料 |
新賃料 1ヶ月 |
物件番号 |
1187005616 |
| 情報公開日 |
2025年12月1日 |
次回更新予定日 |
2025年12月18日 |
| ケータイ用バーコード |
- スマートフォンでこの物件を見る
- スマートフォンからもこの物件をご覧になれます。
|
※「-」と表示されている項目については、情報提供会社にご確認ください。
| 周辺施設 |
グルメシティ京王八王子店 |
| 距離 |
416m |
写真を見る |
| 周辺施設 |
富士ガーデン八王子東急スクエア店 |
| 距離 |
534m |
写真を見る |
| 周辺施設 |
ブルーミングブルーミーセレオ八王子店 |
| 距離 |
669m |
写真を見る |
| 周辺施設 |
ドンキホーテ八王子駅前店 |
| 距離 |
625m |
写真を見る |
| 周辺施設 |
サンクス 八王子明神町店 |
| 距離 |
134m |
写真を見る |
| 周辺施設 |
ファミリーマート 京王八王子駅前店 |
| 距離 |
239m |
写真を見る |
| 周辺施設 |
ファミリーマート 八王子明神町四丁目店 |
| 距離 |
263m |
写真を見る |
| 周辺施設 |
ガスト 八王子旭町店 |
| 距離 |
393m |
写真を見る |
ここから簡単にお問い合わせをすることができます。
(SSLでの暗号化での送信を希望されるお客さまは
こちら
よりお問い合わせください)
お問い合わせを行う前に
「個人情報の取り扱いについて」を必ずお読みください。
「個人情報の取り扱いについて」に同意いただいた場合は「上記にご同意の上 確認画面へ進む」のボタンをクリックしてください。
個人情報の取り扱いについて
皆さまが送付された個人情報はアットホーム(株)のサーバを経由し、お問い合わせ先の不動産会社にメールまたはFAXにて転送されるためアットホーム(株)にも保管されます。アットホーム(株)で保管された個人情報の取り扱いについては、【こちら】をご覧ください。
また、本画面でご記入いただいた個人情報は、お問い合わせ先の不動産会社でも保管します。 お問い合わせ先の不動産会社が保管する個人情報の取り扱いについては、不動産会社に直接お問い合わせください。
国土交通大臣免許(2)第9444号 |
|---|
- 交通:
- JR中央線/八王子駅 徒歩4分
- 東京都八王子市東町13-12 CRビル5F
- TEL:
- 042-649-4883
- FAX:
- 042-649-4884
- 所属団体:
- (公社)東京都宅地建物取引業協会会員(公社)首都圏不動産公正取引協議会加盟
取引態様:仲介  - 00265222
|
- スマートフォンで
この不動産会社を見る

|
- 提携サイト等より掲載されている物件情報につきましては、不動産会社詳細情報にリンクされていないものがあります。
- 物件に関するお問合せは、物件詳細ページの「情報提供会社」に表示されている不動産会社へ直接お願いいたします。
- 間取図は、現況を優先させていただきます。
- 映像は物件の一部を撮影したものです。物件の契約にあたっての最終判断はご自身の判断に基づいて行ってください。
- 仲介手数料について

アットホームは物件情報の適正化に努めております。
内容に誤りがある場合にはこちらへご連絡ください。