岡山県岡山市北区東古松4丁目(大元駅)の賃貸:物件詳細
交通 所在地 |
駅徒歩 |
賃料 管理費等 |
敷金/保証金 礼金 |
間取り 面積 |
物件種目 築年月 |
|
宇野線/大元
岡山県岡山市北区東古松4丁目
|
10分
|
14万円
なし
|
2ヶ月 / なし
1ヶ月
|
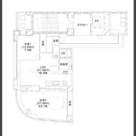
2LDK
101.69m²
|
賃貸マンション
1990年1月(築36年5ヶ月)
|
角部屋、二人入居可、事務所使用可、閑静な住宅街、オール電化、IT重説対応物件
|
|
間取図
|
外観
|
<
その他の画像
>
|
| 交通 | 宇野線 大元駅 徒歩10分 |
|---|
| その他の交通 | 岡山電軌清輝橋線 清輝橋駅 徒歩10分 岡山電軌清輝橋線 東中央町駅 徒歩13分 |
| 所在地 |
岡山県岡山市北区東古松4丁目
|
| 物件種目 |
賃貸マンション |
| 賃料 |
14万円 |
管理費等 |
なし |
| 敷金 / 保証金 |
2ヶ月 / なし |
礼金 |
1ヶ月 |
| 敷引 |
- |
保証金償却 |
- |
| その他一時金 |
なし |
保険等 |
要 2年 17,000円 |
| 維持費等 |
- |
| 間取り |
2LDK(洋室23.1・洋室7.8・LDK19.5) |
専有面積 |
101.69m² |
| 築年月 |
1990年1月(築36年5ヶ月)
|
階建 / 階 |
11階建 / 3階 |
| 建物構造 |
SRC |
総戸数 |
- |
| 主要採光面 |
北東 |
駐車場 |
有 無料 |
| バイク置き場 |
有 |
駐輪場 |
有 |
| 建物名・部屋番号 |
アルバ鹿田町 |
ペット |
-
|
| リフォーム履歴 |
- |
| リノベーション履歴 |
- |
| 備考 |
賃貸保証等:利用可(初回契約時:50%、月額:3%、集送金手数料 500円(税別))
管理形態/管理員の勤務形態:-/巡回
IT重説対応物件、管理人巡回
詳細はお気軽にお問い合わせください。
詳細はお気軽にお問い合わせください。
|
| エネルギー消費性能 |
- |
| 断熱性能 |
- |
| 目安光熱費 |
- |
| バス・トイレ |
バス・トイレ別、浴室乾燥機、追焚機能、シャワー付洗面化粧台、洗面所独立、洗面所、洗面台、シャワー、温水洗浄便座、トイレ |
| キッチン |
カウンターキッチン、システムキッチン、食器洗浄乾燥機、IHクッキングヒーター、3口以上コンロ |
| セキュリティー |
オートロック、モニター付インターホン、防犯カメラ、火災警報器(報知機) |
| 収納 |
収納スペース、クローゼット、シューズボックス |
| 設備・サービス |
エアコン2台以上、室内洗濯機置場、洗濯機置場、給湯、全居室フローリング、フローリング、エアコン、冷房、間接照明、照明器具 |
| TV・通信 |
- |
| その他 |
バイク置き場、エレベーター2基以上、バルコニー、駐輪場、エレベーター |
| 契約期間 |
2年 |
現況 |
空家 |
| 条件等 |
- |
入居可能時期 |
即時 |
| 更新料 |
- |
物件番号 |
1187048614 |
| 情報公開日 |
2025年11月18日 |
次回更新予定日 |
2026年5月15日 |
| ケータイ用バーコード |
- スマートフォンでこの物件を見る
- スマートフォンからもこの物件をご覧になれます。
|
※「-」と表示されている項目については、情報提供会社にご確認ください。
| 周辺施設 |
ザ・ビッグ奥田南店 |
| 距離 |
755m |
写真を見る |
| 周辺施設 |
ユニクロ岡山十日市店 |
| 距離 |
1431m |
写真を見る |
| 周辺施設 |
ハピーズ岡輝店 |
| 距離 |
263m |
写真を見る |
| 周辺施設 |
山陽マルナカ東古松店 |
| 距離 |
268m |
写真を見る |
| 周辺施設 |
サークルK岡山東古松店 |
| 距離 |
143m |
写真を見る |
| 周辺施設 |
セブンイレブン岡山岡町店 |
| 距離 |
299m |
写真を見る |
| 周辺施設 |
くすりのラブ大元店 |
| 距離 |
577m |
写真を見る |
| 周辺施設 |
ザ・ビッグ奥田南店 |
| 距離 |
755m |
写真を見る |
ここから簡単にお問い合わせをすることができます。
(SSLでの暗号化での送信を希望されるお客さまは
こちら
よりお問い合わせください)
お問い合わせを行う前に
「個人情報の取り扱いについて」を必ずお読みください。
「個人情報の取り扱いについて」に同意いただいた場合は「上記にご同意の上 確認画面へ進む」のボタンをクリックしてください。
個人情報の取り扱いについて
皆さまが送付された個人情報はアットホーム(株)のサーバを経由し、お問い合わせ先の不動産会社にメールまたはFAXにて転送されるためアットホーム(株)にも保管されます。アットホーム(株)で保管された個人情報の取り扱いについては、【こちら】をご覧ください。
また、本画面でご記入いただいた個人情報は、お問い合わせ先の不動産会社でも保管します。 お問い合わせ先の不動産会社が保管する個人情報の取り扱いについては、不動産会社に直接お問い合わせください。
国土交通大臣免許(1)第10228号 |
|---|
- 交通:
- 宇野線/大元駅 徒歩5分
- 岡山県岡山市北区東古松3丁目12-22
- TEL:
- 086-801-3720
- FAX:
- 086-801-3722
- 所属団体:
- (公社)全日本不動産協会会員中国地区不動産公正取引協議会加盟
取引態様:仲介  - 50102304
|
- スマートフォンで
この不動産会社を見る

|
- 提携サイト等より掲載されている物件情報につきましては、不動産会社詳細情報にリンクされていないものがあります。
- 物件に関するお問合せは、物件詳細ページの「情報提供会社」に表示されている不動産会社へ直接お願いいたします。
- 間取図は、現況を優先させていただきます。
- 映像は物件の一部を撮影したものです。物件の契約にあたっての最終判断はご自身の判断に基づいて行ってください。
- 仲介手数料について

アットホームは物件情報の適正化に努めております。
内容に誤りがある場合にはこちらへご連絡ください。