東京都江東区毛利2丁目(錦糸町駅)の賃貸:物件詳細
交通 所在地 |
駅徒歩 |
賃料 管理費等 |
敷金/保証金 礼金 |
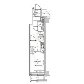
間取り 面積 |
物件種目 築年月 |
|
JR総武線/錦糸町
東京都江東区毛利2丁目
|
8分
|
9.9万円
15,000円
|
1ヶ月 / なし
1ヶ月
|
ワンルーム
25.59m²
|
賃貸マンション
2019年7月(築6年7ヶ月)
|
分譲タイプ、常時ゴミ出し可能、角部屋、二人入居可、24時間換気システム、保証人不要
|
|
間取図
|
外観
|
<
その他の画像
>
|
| 交通 | JR総武線 錦糸町駅 徒歩8分 |
|---|
| その他の交通 | 東京メトロ半蔵門線 住吉駅 徒歩7分 東京メトロ半蔵門線 錦糸町駅 徒歩7分 |
| 所在地 |
東京都江東区毛利2丁目
|
| 物件種目 |
賃貸マンション |
| 賃料 |
9.9万円 |
管理費等 |
15,000円 |
| 敷金 / 保証金 |
1ヶ月 / なし |
礼金 |
1ヶ月 |
| 敷引 |
- |
保証金償却 |
解約時1ヶ月 |
| その他一時金 |
入居中サポート:21,450円、室内抗菌処理代:17,600円、事務手数料:11,000円、鍵交換代等:22,000円~ |
保険等 |
要 2年 23,000円 |
| 維持費等 |
口座振替手数料:660円/月 |
クレジットカード決済 |
初期費用可 |
| 間取り |
ワンルーム |
専有面積 |
25.59m² |
| 築年月 |
2019年7月(築6年7ヶ月)
|
階建 / 階 |
7階建 / 1階 |
| 建物構造 |
RC |
総戸数 |
- |
| 主要採光面 |
西 |
駐車場 |
無 |
| バイク置き場 |
有 |
駐輪場 |
- |
| 建物名・部屋番号 |
ラフィスタ錦糸町Ⅱ 103 |
ペット |
-
|
| アピールポイント |
室内見学承ります・お客様のご都合に合わせてオンラインまたはお近くの店舗でご提案可・初期費用分割払い可・クレジットカード利用可・引越業者割引・初期費用のお見積や入居日のご相談もお気軽にお問合せください |
| リフォーム履歴 |
- |
| リノベーション履歴 |
- |
| 備考 |
賃貸保証等:加入要(初回:緊連30%~)
管理形態/管理員の勤務形態:-/巡回
管理人巡回
当物件は「住まいのリライフ」で取り扱っております。リライフは首都圏25店舗のネットワークで豊富な物件情報をお客様へご提供します。当物件に類似した未公開物件なども合わせてご提案可能です。お気軽にお問合せください。
違約金有:1年未満1ヶ月
|
| エネルギー消費性能 |
- |
| 断熱性能 |
- |
| 目安光熱費 |
- |
| バス・トイレ |
バス・トイレ別、浴室乾燥機、洗面所独立、温水洗浄便座 |
| キッチン |
システムキッチン、2口コンロ、ガスコンロ可 |
| セキュリティー |
オートロック、モニター付インターホン、防犯カメラ |
| 収納 |
クローゼット、シューズボックス |
| 設備・サービス |
室内洗濯機置場、フローリング、都市ガス、エアコン |
| TV・通信 |
インターネット対応、インターネット使用料無料、CS、BS端子 |
| その他 |
宅配BOX、バイク置き場、バルコニー、エレベーター |
| 契約期間 |
2年 |
現況 |
居住中 |
| 条件等 |
- |
入居可能時期 |
指定有り2026年2月4日 |
| 更新料 |
新賃料 1.5ヶ月 |
物件番号 |
1187402102 |
| 情報公開日 |
2025年11月21日 |
次回更新予定日 |
2026年1月5日 |
| ケータイ用バーコード |
- スマートフォンでこの物件を見る
- スマートフォンからもこの物件をご覧になれます。
|
※「-」と表示されている項目については、情報提供会社にご確認ください。
| 周辺施設 |
まいばすけっと 住吉駅北店 |
| 距離 |
297m |
写真を見る |
| 周辺施設 |
まいばすけっと 江東亀戸1丁目店 |
| 距離 |
485m |
写真を見る |
| 周辺施設 |
ファミリーマート江東橋四丁目店 |
| 距離 |
208m |
写真を見る |
| 周辺施設 |
セブンイレブン墨田江東橋4丁目店 |
| 距離 |
261m |
写真を見る |
| 周辺施設 |
マツモトキヨシ錦糸町駅ビル店 |
| 距離 |
676m |
写真を見る |
| 周辺施設 |
白洋舎錦糸町パルコ店 |
| 距離 |
540m |
写真を見る |
国土交通大臣免許(1)第10792号 |
|---|
- 交通:
- JR総武線/錦糸町駅 徒歩1分
- 東京都墨田区錦糸3丁目3-1 第一ハセガワビル5階
- TEL:
- 03-6372-4986
- 所属団体:
- (公社)東京都宅地建物取引業協会会員(公社)首都圏不動産公正取引協議会加盟
取引態様:仲介  - 00277128
|
- スマートフォンで
この不動産会社を見る

|
- 提携サイト等より掲載されている物件情報につきましては、不動産会社詳細情報にリンクされていないものがあります。
- 物件に関するお問合せは、物件詳細ページの「情報提供会社」に表示されている不動産会社へ直接お願いいたします。
- 間取図は、現況を優先させていただきます。
- 映像は物件の一部を撮影したものです。物件の契約にあたっての最終判断はご自身の判断に基づいて行ってください。
- 仲介手数料について

アットホームは物件情報の適正化に努めております。
内容に誤りがある場合にはこちらへご連絡ください。