東京都新宿区百人町3丁目(大久保駅)の賃貸:物件詳細
交通 所在地 |
駅徒歩 |
賃料 管理費等 |
敷金/保証金 礼金 |
間取り 面積 |
物件種目 築年月 |
|
JR総武線/大久保
東京都新宿区百人町3丁目
|
6分
|
27.5万円
18,000円
|
1ヶ月 / なし
なし
|
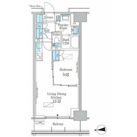
1LDK
42.14m²
|
賃貸マンション
2024年1月(築1年11ヶ月)
|
ペット相談、楽器相談、フリーレント、外観タイル張り、保証人不要
|
|
間取図
|
外観
|
<
その他の画像
>
|
| 交通 | JR総武線 大久保駅 徒歩6分 |
|---|
| その他の交通 | JR山手線 新大久保駅 徒歩9分 JR山手線 高田馬場駅 徒歩15分 |
| 所在地 |
東京都新宿区百人町3丁目
|
| 物件種目 |
賃貸マンション |
| 賃料 |
27.5万円 |
管理費等 |
18,000円 |
| 敷金 / 保証金 |
1ヶ月 / なし |
礼金 |
なし |
| 敷引 |
- |
保証金償却 |
- |
| その他一時金 |
なし、鍵交換代等:33,000円~ |
保険等 |
要 |
| 維持費等 |
口座振替事務手数料:110円/月 |
| 間取り |
1LDK(LDK12.2、洋5) |
専有面積 |
42.14m² |
| 築年月 |
2024年1月(築1年11ヶ月)
|
階建 / 階 |
7階建 / 1階 |
| 建物構造 |
RC |
総戸数 |
- |
| 主要採光面 |
西 |
駐車場 |
- |
| バイク置き場 |
- |
駐輪場 |
有 |
| 建物名・部屋番号 |
パークアクシス新宿百人町 |
ペット |
相談 |
| リフォーム履歴 |
- |
| リノベーション履歴 |
- |
| 備考 |
賃貸保証等:加入要(初回保証料:総賃料の50%(最低2万円)2年目以降:9,600円/年)
管理形態/管理員の勤務形態:-/巡回
フリーレント:1ヶ月(※詳細要確認)
管理人巡回
・ピアノ相談可(アップライトピアノ可)
・短期解約違約金有
・保証会社利用必須(保証会社利用以外は敷金1カ月積み増し)
・留学生相談可(在留カード提出必須)
・フリーレント1カ月
・退去時清掃費:55,624円
※写真・図面と現況が異なる場合、現況を優先させていただきます。
・ペット飼育詳細要確認、敷金1ヶ月追加
|
| エネルギー消費性能 |
- |
| 断熱性能 |
- |
| 目安光熱費 |
- |
| バス・トイレ |
バス・トイレ別、浴室乾燥機、追焚機能、洗面所独立、洗面所、シャワー、温水洗浄便座、トイレ |
| キッチン |
システムキッチン、2口コンロ、ガスコンロ可、グリル |
| セキュリティー |
モニター付オートロック、オートロック、モニター付インターホン、防犯カメラ |
| 収納 |
収納スペース、クローゼット、シューズボックス |
| 設備・サービス |
室内洗濯機置場、洗濯機置場、全居室フローリング、フローリング、都市ガス、エアコン |
| TV・通信 |
インターネット対応、ケーブルTV、CS、BS端子 |
| その他 |
宅配BOX、バルコニー、駐輪場、エレベーター |
| 契約期間 |
2年 |
現況 |
空家 |
| 条件等 |
- |
入居可能時期 |
即時 |
| 更新料 |
新賃料 1ヶ月 |
物件番号 |
1187452008 |
| 情報公開日 |
2025年11月4日 |
次回更新予定日 |
2025年11月18日 |
| ケータイ用バーコード |
- スマートフォンでこの物件を見る
- スマートフォンからもこの物件をご覧になれます。
|
※「-」と表示されている項目については、情報提供会社にご確認ください。
| 周辺施設 |
ファミリーマート 小滝橋通り店 |
| 距離 |
349m |
写真を見る |
| 周辺施設 |
ココカラファイン 大久保駅前店 |
| 距離 |
561m |
写真を見る |
| 周辺施設 |
サンマルクカフェ 東京大久保店 |
| 距離 |
562m |
写真を見る |
| 周辺施設 |
セブン-イレブン新宿大久保駅前店 |
| 距離 |
581m |
写真を見る |
| 周辺施設 |
ロッテリア JR大久保駅前店 |
| 距離 |
591m |
写真を見る |
| 周辺施設 |
ドン・キホーテ 新大久保駅前店 |
| 距離 |
633m |
写真を見る |
| 周辺施設 |
ファミリーマート 北新宿大久保通り店 |
| 距離 |
716m |
写真を見る |
| 周辺施設 |
ドトールコーヒーショップ 大久保店 |
| 距離 |
657m |
写真を見る |
ここから簡単にお問い合わせをすることができます。
(SSLでの暗号化での送信を希望されるお客さまは
こちら
よりお問い合わせください)
お問い合わせを行う前に
「個人情報の取り扱いについて」を必ずお読みください。
「個人情報の取り扱いについて」に同意いただいた場合は「上記にご同意の上 確認画面へ進む」のボタンをクリックしてください。
個人情報の取り扱いについて
皆さまが送付された個人情報はアットホーム(株)のサーバを経由し、お問い合わせ先の不動産会社にメールまたはFAXにて転送されるためアットホーム(株)にも保管されます。アットホーム(株)で保管された個人情報の取り扱いについては、【こちら】をご覧ください。
また、本画面でご記入いただいた個人情報は、お問い合わせ先の不動産会社でも保管します。 お問い合わせ先の不動産会社が保管する個人情報の取り扱いについては、不動産会社に直接お問い合わせください。
東京都知事免許(3)第96228号 |
|---|
- 交通:
- 東京メトロ有楽町線/池袋駅 徒歩3分
- 東京都豊島区池袋2丁目53-1
- TEL:
- 03-5927-1172
- FAX:
- 03-5927-1173
- 所属団体:
- (公社)東京都宅地建物取引業協会会員(公社)首都圏不動産公正取引協議会加盟
取引態様:仲介  - 00279020
|
- スマートフォンで
この不動産会社を見る

|
- 提携サイト等より掲載されている物件情報につきましては、不動産会社詳細情報にリンクされていないものがあります。
- 物件に関するお問合せは、物件詳細ページの「情報提供会社」に表示されている不動産会社へ直接お願いいたします。
- 間取図は、現況を優先させていただきます。
- 映像は物件の一部を撮影したものです。物件の契約にあたっての最終判断はご自身の判断に基づいて行ってください。
- 仲介手数料について

アットホームは物件情報の適正化に努めております。
内容に誤りがある場合にはこちらへご連絡ください。