大阪府大阪市北区大淀南2丁目(福島駅)の賃貸:物件詳細
交通 所在地 |
駅徒歩 |
賃料 管理費等 |
敷金/保証金 礼金 |
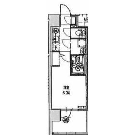
間取り 面積 |
物件種目 築年月 |
|
JR大阪環状線/福島
大阪府大阪市北区大淀南2丁目
|
8分
|
7.65万円
10,000円
|
なし / なし
なし
|
1K
21.47m²
|
賃貸マンション
2025年8月
|
ペット相談、角部屋、南向き、24時間換気システム、閑静な住宅街、IT重説対応物件
|
|
間取図
|
外観
|
<
その他の画像
>
|
| 交通 | JR大阪環状線 福島駅 徒歩8分 |
|---|
| その他の交通 | JR東海道本線 大阪駅 徒歩15分 阪神本線 福島駅 徒歩12分 |
| 所在地 |
大阪府大阪市北区大淀南2丁目
|
| 物件種目 |
賃貸マンション |
| 賃料 |
7.65万円 |
管理費等 |
10,000円 |
| 敷金 / 保証金 |
なし / なし |
礼金 |
なし |
| 敷引 |
- |
保証金償却 |
- |
| その他一時金 |
退去時:ハウスクリーニング代:33,000円、退去時:エアコンクリーニング代:16,500円、鍵交換代等:33,000円~ |
保険等 |
要 2年 20,000円 |
| 維持費等 |
- |
クレジットカード決済 |
初期費用可 |
| 間取り |
1K(洋6.2) |
専有面積 |
21.47m² |
| 築年月 |
2025年8月
|
階建 / 階 |
11階建 / 4階 |
| 建物構造 |
RC |
総戸数 |
- |
| 主要採光面 |
南 |
駐車場 |
有 41,800円/月 |
| バイク置き場 |
有 |
駐輪場 |
有 |
| 建物名・部屋番号 |
エスリードレジデンス梅田クラスシティ |
ペット |
小型犬可 |
| リフォーム履歴 |
- |
| リノベーション履歴 |
- |
| 備考 |
賃貸保証等:加入要(初回(総賃料×60%)月額保証料(総賃料×1.5%))
管理形態/管理員の勤務形態:-/巡回
IT重説対応物件、管理人巡回
★当社ではネットに掲載出来ないマル秘物件も多数ご用意しております。
北区を中心に大阪全域の物件情報を取り揃えており、お客様のニーズに合ったご提案やご紹介をさせて頂きます。
★初期費用をどこよりも交渉してほしい・入居審査が不安・家具家電プランを利用したいなど、そんなお悩みを弊社が解決します。
★弊社では引越しにかかる大きな費用を分割で(最大48回まで)支払えるプランもご用意。
・クレジットカードを持っていない方
・クレジットカードは持ってるけど(利用枠の小さいカード)のみお持ちの方
・急な移動で手持ちがない方
・18歳以上であれば学生様でもご利用可能
・外国籍の方もご利用可能(日本在住に限る)
・審査もLINEで簡単
・(審査結果)は最短2~3分
★インターネットで気なる物件もすべてご紹介可能ですので、お気軽にご相談下さいませ!
★現地案内対応やお出迎えサービスも実施しておりますので、お気軽にスタッフまでお伝え下さいませ。
★女性のお客様や初めての1人暮らしで(ご不安な方)なども安心してお問合せお待ち致しております。
|
| エネルギー消費性能 |
- |
| 断熱性能 |
- |
| 目安光熱費 |
- |
| バス・トイレ |
バス・トイレ別、浴室乾燥機、洗面所独立、洗面所、洗面台、シャワー、温水洗浄便座、トイレ |
| キッチン |
システムキッチン、2口コンロ、ガスコンロ可 |
| セキュリティー |
モニター付オートロック、オートロック、モニター付インターホン、防犯カメラ |
| 収納 |
収納スペース、クローゼット、シューズボックス |
| 設備・サービス |
室内洗濯機置場、洗濯機置場、全居室フローリング、フローリング、都市ガス、エアコン、人感センサー付照明、照明器具 |
| TV・通信 |
インターネット対応、インターネット使用料無料、光ファイバー、ケーブルTV |
| その他 |
宅配BOX、バイク置き場、バルコニー、駐輪場、エレベーター |
| 契約期間 |
2年 |
現況 |
空家 |
| 条件等 |
- |
入居可能時期 |
即時 |
| 更新料 |
33,000円 |
物件番号 |
1187489816 |
| 情報公開日 |
2025年12月1日 |
次回更新予定日 |
2025年12月15日 |
| ケータイ用バーコード |
- スマートフォンでこの物件を見る
- スマートフォンからもこの物件をご覧になれます。
|
※「-」と表示されている項目については、情報提供会社にご確認ください。
| 周辺施設 |
マルシゲ大淀店 |
| 距離 |
176m |
写真を見る |
| 周辺施設 |
ファミリーマート 大淀南店 |
| 距離 |
89m |
写真を見る |
| 周辺施設 |
ダイコクドラッグ福島駅前店 |
| 距離 |
662m |
写真を見る |
| 周辺施設 |
大阪中央病院 |
| 距離 |
1035m |
写真を見る |
| 周辺施設 |
コナミスポーツクラブ梅田 |
| 距離 |
1570m |
写真を見る |
| 周辺施設 |
大阪IT会計専門学校 |
| 距離 |
604m |
写真を見る |
ここから簡単にお問い合わせをすることができます。
(SSLでの暗号化での送信を希望されるお客さまは
こちら
よりお問い合わせください)
お問い合わせを行う前に
「個人情報の取り扱いについて」を必ずお読みください。
「個人情報の取り扱いについて」に同意いただいた場合は「上記にご同意の上 確認画面へ進む」のボタンをクリックしてください。
個人情報の取り扱いについて
皆さまが送付された個人情報はアットホーム(株)のサーバを経由し、お問い合わせ先の不動産会社にメールまたはFAXにて転送されるためアットホーム(株)にも保管されます。アットホーム(株)で保管された個人情報の取り扱いについては、【こちら】をご覧ください。
また、本画面でご記入いただいた個人情報は、お問い合わせ先の不動産会社でも保管します。 お問い合わせ先の不動産会社が保管する個人情報の取り扱いについては、不動産会社に直接お問い合わせください。
大阪府知事免許(2)第59615号 |
|---|
- 交通:
- 地下鉄谷町線/東梅田駅 徒歩3分
- 大阪府大阪市北区堂山町4-4 阪急東ビル7階701号
- TEL:
- 06-6131-3411
- 所属団体:
- (一社)大阪府宅地建物取引業協会会員(公社)近畿地区不動産公正取引協議会加盟
取引態様:仲介  - 50111787
|
- スマートフォンで
この不動産会社を見る

|
- 提携サイト等より掲載されている物件情報につきましては、不動産会社詳細情報にリンクされていないものがあります。
- 物件に関するお問合せは、物件詳細ページの「情報提供会社」に表示されている不動産会社へ直接お願いいたします。
- 間取図は、現況を優先させていただきます。
- 映像は物件の一部を撮影したものです。物件の契約にあたっての最終判断はご自身の判断に基づいて行ってください。
- 仲介手数料について

アットホームは物件情報の適正化に努めております。
内容に誤りがある場合にはこちらへご連絡ください。