愛知県名古屋市熱田区六番2丁目(六番町駅)の賃貸:物件詳細
交通 所在地 |
駅徒歩 |
賃料 管理費等 |
敷金/保証金 礼金 |
間取り 面積 |
物件種目 築年月 |
|
名古屋市名港線/六番町
愛知県名古屋市熱田区六番2丁目
|
1分
|
7万円
8,500円
|
なし / 2ヶ月
1ヶ月
|
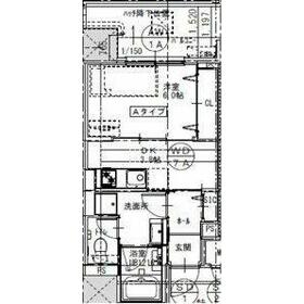
1DK
28.01m²
|
賃貸マンション
2025年6月
|
ペット相談、二人入居可
|
|
間取図
|
外観
|
<
その他の画像
>
|
| 交通 | 名古屋市名港線 六番町駅 徒歩1分 |
|---|
| その他の交通 | 名古屋市名港線 日比野駅 徒歩15分 名古屋市名城線 熱田神宮西駅 徒歩25分 |
| 所在地 |
愛知県名古屋市熱田区六番2丁目
|
| 物件種目 |
賃貸マンション |
| 賃料 |
7万円 |
管理費等 |
8,500円 |
| 敷金 / 保証金 |
なし / 2ヶ月 |
礼金 |
1ヶ月 |
| 敷引 |
- |
保証金償却 |
- |
| その他一時金 |
なし |
保険等 |
要 |
| 維持費等 |
口座振替手数料:330円/月 |
クレジットカード決済 |
初期費用可 |
| 間取り |
1DK(DK3.8、洋6) |
専有面積 |
28.01m² |
| 築年月 |
2025年6月
|
階建 / 階 |
13階建 / 8階 |
| 建物構造 |
RC |
総戸数 |
- |
| 主要採光面 |
北 |
駐車場 |
有 16,500円/月 |
| バイク置き場 |
- |
駐輪場 |
有 550円/月 |
| 建物名・部屋番号 |
さくらHills ROKUBAN Platinum Residence 805 |
ペット |
小型犬可・ 猫可 |
| リフォーム履歴 |
- |
| リノベーション履歴 |
- |
| 備考 |
賃貸保証等:加入要(ジェイリース 初回保証料:総賃料の70% 申込書と契約者身分証(法人契約の場合は会社謄本)が審査時に必要となります。)
管理形態/管理員の勤務形態:-/-
近くにはローソンストア100熱田六番町店(徒歩3分)がありちょっとした買い物に便利です。収納はクロゼット・シューズWICなどが備え付けられているので、衣類や日用品の収納に重宝します。ワクワク、ドキドキの新生活。まずは当社で名古屋市熱田区や名古屋市営名港線六番町付近のお部屋探しをしましょう。好みのお部屋がきっと見つかります。
ローソンストア100熱田六番町店まで徒歩3分と近場にコンビニがあるのもポイント。共用部には宅配ボックスが付いているため、好きなタイミングで荷物を受け取ることができます。室内設備は浴室乾燥機・洗面所独立など大変充実しております。交通の便の良さは、住まい探しの大事な決め手です。名古屋市営名港線六番町周辺のお部屋探しなら、当社へお気軽にご相談ください。
|
| エネルギー消費性能 |
- |
| 断熱性能 |
- |
| 目安光熱費 |
- |
| バス・トイレ |
バス・トイレ別、浴室乾燥機、シャワー付洗面化粧台、洗面所独立、洗面所、洗面台、シャワー、温水洗浄便座、トイレ |
| キッチン |
システムキッチン、2口コンロ、ガスコンロ可 |
| セキュリティー |
オートロック、防犯カメラ |
| 収納 |
収納スペース、シューズインクローゼット、クローゼット |
| 設備・サービス |
室内洗濯機置場、洗濯機置場、全居室フローリング、フローリング、エアコン、複層ガラス |
| TV・通信 |
インターネット対応、CS、BS端子 |
| その他 |
宅配BOX、バルコニー、駐輪場、エレベーター |
| 契約期間 |
2年 |
現況 |
空家 |
| 条件等 |
- |
入居可能時期 |
相談 |
| 更新料 |
- |
物件番号 |
1187510613 |
| 情報公開日 |
2025年10月11日 |
次回更新予定日 |
2025年12月6日 |
| ケータイ用バーコード |
- スマートフォンでこの物件を見る
- スマートフォンからもこの物件をご覧になれます。
|
※「-」と表示されている項目については、情報提供会社にご確認ください。
| 周辺施設 |
CoCo壱番屋六番町店 |
| 距離 |
61m |
写真を見る |
| 周辺施設 |
愛知信用金庫六番町支店 |
| 距離 |
117m |
写真を見る |
| 周辺施設 |
セブンイレブン名古屋四番2丁目店 |
| 距離 |
118m |
写真を見る |
| 周辺施設 |
名古屋銀行六番町支店 |
| 距離 |
120m |
写真を見る |
| 周辺施設 |
愛知信用金庫六番町支店 |
| 距離 |
145m |
写真を見る |
| 周辺施設 |
十六銀行六番町支店 |
| 距離 |
126m |
写真を見る |
| 周辺施設 |
ファミリーマート熱田六番町店 |
| 距離 |
134m |
写真を見る |
| 周辺施設 |
ローソンストア100熱田六番町店 |
| 距離 |
167m |
写真を見る |
ここから簡単にお問い合わせをすることができます。
(SSLでの暗号化での送信を希望されるお客さまは
こちら
よりお問い合わせください)
お問い合わせを行う前に
「個人情報の取り扱いについて」を必ずお読みください。
「個人情報の取り扱いについて」に同意いただいた場合は「上記にご同意の上 確認画面へ進む」のボタンをクリックしてください。
個人情報の取り扱いについて
皆さまが送付された個人情報はアットホーム(株)のサーバを経由し、お問い合わせ先の不動産会社にメールまたはFAXにて転送されるためアットホーム(株)にも保管されます。アットホーム(株)で保管された個人情報の取り扱いについては、【こちら】をご覧ください。
また、本画面でご記入いただいた個人情報は、お問い合わせ先の不動産会社でも保管します。 お問い合わせ先の不動産会社が保管する個人情報の取り扱いについては、不動産会社に直接お問い合わせください。
愛知県知事免許(1)第26086号 |
|---|
- 交通:
- 名鉄常滑線/大江駅 徒歩12分
- 愛知県名古屋市南区宝生町3丁目15
- TEL:
- 052-655-5455
- FAX:
- 052-655-5456
- 所属団体:
- (公社)愛知県宅地建物取引業協会会員東海不動産公正取引協議会加盟
取引態様:仲介  - 40412492
|
- スマートフォンで
この不動産会社を見る

|
- 提携サイト等より掲載されている物件情報につきましては、不動産会社詳細情報にリンクされていないものがあります。
- 物件に関するお問合せは、物件詳細ページの「情報提供会社」に表示されている不動産会社へ直接お願いいたします。
- 間取図は、現況を優先させていただきます。
- 映像は物件の一部を撮影したものです。物件の契約にあたっての最終判断はご自身の判断に基づいて行ってください。
- 仲介手数料について

アットホームは物件情報の適正化に努めております。
内容に誤りがある場合にはこちらへご連絡ください。