不動産 賃貸 マンション等の住宅情報:埼玉住まい情報


東京都渋谷区桜丘町(渋谷駅)の賃貸:物件詳細

  • 物件詳細
  • 情報の見方
  • 印刷用画面
交通
所在地
駅徒歩 賃料
管理費等
敷金/保証金
礼金
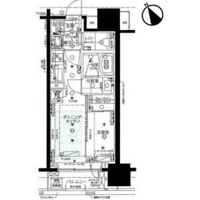
間取り
面積
物件種目
築年月

JR山手線/渋谷 新着

東京都渋谷区桜丘町

12分

17.5万円

15,000円

1ヶ月 / なし

1ヶ月

1LDK

27.66m²

賃貸マンション

2022年12月(築3年1ヶ月)

おすすめPOINT分譲タイプ、常時ゴミ出し可能、南向き、二人入居可、24時間換気システム、保証人不要

おすすめコメント  スタッフ:

当物件はオンラインまたはお近くの店舗でご相談お申込を承ります

間取図

間取図

ピアース渋谷

外観

外観

ピアース渋谷

その他の画像
  • 販売店
  • コンビニ
  • コンビニ
  • 販売店
  • 病院
    • とりあえず保存
    • お問い合わせ
    交通

    JR山手線 渋谷駅 徒歩12分

    その他の交通

    東急東横線 代官山駅 徒歩12分

    東京メトロ日比谷線 恵比寿駅 徒歩14分

    所在地 東京都渋谷区桜丘町
    物件種目 賃貸マンション
    賃料 17.5万円 管理費等 15,000円
    敷金 / 保証金 1ヶ月 / なし 礼金 1ヶ月
    敷引 保証金償却 解約時1ヶ月
    その他一時金 くらしーど24:16,500円 保険等
    維持費等 バイク置き場:5,000円/月 クレジットカード決済 初期費用可
    間取り 1LDK 専有面積 27.66m²
    築年月 2022年12月(築3年1ヶ月) 階建 / 階 地上14階地下1階建 / 9階
    建物構造 RC 総戸数 67戸
    主要採光面 駐車場
    バイク置き場 駐輪場
    建物名・部屋番号 ピアース渋谷 902 ペット
    アピールポイント 室内見学承ります・お客様のご都合に合わせてオンラインまたはお近くの店舗でご提案可・初期費用分割払い可・クレジットカード利用可・引越業者割引・初期費用のお見積や入居日のご相談もお気軽にお問合せください
    リフォーム履歴
    リノベーション履歴
    備考
    賃貸保証等:加入要(初回保証料:賃料+管理費等の50%~)
    管理形態/管理員の勤務形態:-/-
    当物件は「住まいのリライフ」で取り扱っております。リライフは首都圏25店舗のネットワークで豊富な物件情報をお客様へご提供します。当物件に類似した未公開物件なども合わせてご提案可能です。お気軽にお問合せください。
    入居時期相談内容:2025年12月中旬予定
    エネルギー消費性能
    断熱性能
    目安光熱費
    バス・トイレ バス・トイレ別、浴室乾燥機、追焚機能、洗面所独立、温水洗浄便座
    キッチン システムキッチン、食器洗浄乾燥機、2口コンロ、ガスコンロ可
    セキュリティー オートロック、モニター付インターホン、ディンプルキー、ダブルロックドア、防犯カメラ
    収納 ウォークインクローゼット、シューズインクローゼット、クローゼット、シューズボックス
    設備・サービス 室内洗濯機置場、全居室フローリング、フローリング、都市ガス、エアコン
    TV・通信 インターネット対応
    その他 宅配BOX、バルコニー、エレベーター
    契約期間 2年 現況 空家
    条件等 入居可能時期 相談
    更新料 新賃料 1ヶ月 物件番号 1187530702
    情報公開日 2025年12月4日 次回更新予定日 2025年12月18日
    ケータイ用バーコード

    QRコード

    スマートフォンでこの物件を見る
    スマートフォンからもこの物件をご覧になれます。
    ※「-」と表示されている項目については、情報提供会社にご確認ください。

    この物件の周辺情報

    周辺施設 マルエツ プチ 渋谷鶯谷町店
    距離 86m
    周辺施設 紀ノ国屋 渋谷スクランブルスクエア店
    距離 459m
    周辺施設 ミニストップ  渋谷桜丘店
    距離 68m
    周辺施設 ローソン 渋谷鶯谷町店
    距離 171m
    周辺施設 マツモトキヨシ 渋谷Part1店
    距離 840m
    周辺施設 クリーニング24 渋谷店
    距離 173m
    周辺施設 東京共済病院
    距離 1593m
    周辺施設 ケユカ青山店
    距離 1814m

    クイックお問い合わせ

    ここから簡単にお問い合わせをすることができます。
    (SSLでの暗号化での送信を希望されるお客さまは こちら よりお問い合わせください)

    お問い合わせ内容(必須)
    お名前(必須) 姓  名 
    メールアドレス(必須)
    ※携帯電話のメールアドレスをご入力される方はこちらをご確認ください
    電話番号(必須)
    - -

    ※入力いただいた電話番号へSMSまたは音声でパスワードをご連絡します。

    携帯電話の番号をご入力の方へ

    携帯電話の番号をご入力の方へ
    確認画面にて送信ボタンをクリックするとSMSが携帯電話に届きます。
    そのSMSに記載のパスワード(認証番号)を入力し、お問い合わせを完了してください。
    尚、SMSの送信者番号は 0005 202 760 となります。
    これはアットホームの固定番号です。

    備考欄 希望条件、物件案内希望日、質問などがございましたらご記入ください。
    お問い合わせを行う前に「個人情報の取り扱いについて」を必ずお読みください。
    「個人情報の取り扱いについて」に同意いただいた場合は「上記にご同意の上 確認画面へ進む」のボタンをクリックしてください。

    個人情報の取り扱いについて

    皆さまが送付された個人情報はアットホーム(株)のサーバを経由し、お問い合わせ先の不動産会社にメールまたはFAXにて転送されるためアットホーム(株)にも保管されます。アットホーム(株)で保管された個人情報の取り扱いについては、【こちら】をご覧ください。
    また、本画面でご記入いただいた個人情報は、お問い合わせ先の不動産会社でも保管します。 お問い合わせ先の不動産会社が保管する個人情報の取り扱いについては、不動産会社に直接お問い合わせください。

    情報提供会社

    情報提供会社

    (株)リライフ 住まいのリライフ 渋谷店

    国土交通大臣免許(1)第10792号

    交通:
    JR山手線/渋谷駅 徒歩1分
    東京都渋谷区渋谷1丁目24-14 渋谷トライアングルビル6階
    TEL:
    03-6372-4991
    FAX:
    03-6451-1440
    所属団体:
    (公社)東京都宅地建物取引業協会会員
    (公社)首都圏不動産公正取引協議会加盟

    取引態様:仲介

    • 会社情報
    • 00281250
    スマートフォンで
    この不動産会社を見る
    QRコード
    • とりあえず保存
    • お問い合わせ
    • 提携サイト等より掲載されている物件情報につきましては、不動産会社詳細情報にリンクされていないものがあります。
    • 物件に関するお問合せは、物件詳細ページの「情報提供会社」に表示されている不動産会社へ直接お願いいたします。
    • 間取図は、現況を優先させていただきます。
    • 映像は物件の一部を撮影したものです。物件の契約にあたっての最終判断はご自身の判断に基づいて行ってください。
    • 仲介手数料について仲介手数料

    アットホームは物件情報の適正化に努めております。 内容に誤りがある場合にはこちらへご連絡ください。

    【埼玉住まい情報】では、日本全国の物件から賃貸マンションや賃貸アパート・賃貸一戸建て等の賃貸住宅情報、新築マンション・分譲マンションや中古マンション等の売買マンション情報、新築一戸建てや中古一戸建てなどの戸建住宅、 土地など、総合的な不動産住宅情報検索サービスを提供致します。
    【埼玉住まい情報】から、選りすぐりの不動産物件を探してみましょう。

    【免責事項】
    このコーナーの運営はアットホーム株式会社(https://www.athome.co.jp/)が行っています。
    このコーナーに掲載している物件情報は、「アットホーム不動産情報ネットワーク」に加盟する不動産会社等(情報提供元)から提供されています。信頼性の高い情報提供が行えるよう、最大限の努力をしておりますが、その内容を保証するものではありません。 利用者のみなさまと各情報提供元との取引に起因する損害および情報が掲載されたことに起因する損害等については、株式会社イーシティ埼玉、およびアットホームは一切責任を負いません。
    各物件情報の内容や画像等はすべて現況を優先させていただきます。
    お取引等(お取引の準備、資金調達等を含みます)の際には、内容や契約条件等について、各情報提供元より十分な説明を受け、ご自身でご確認の上、判断してください。
    このコーナーへの物件情報のご掲載、その他不動産業務ソリューション等についての不動産会社様のお問合せはこちらからお願いいたします。

    物件画像: