東京都目黒区下目黒1丁目(目黒駅)の賃貸:物件詳細
交通 所在地 |
駅徒歩 |
賃料 管理費等 |
敷金/保証金 礼金 |
間取り 面積 |
物件種目 築年月 |
|
東急目黒線/目黒
東京都目黒区下目黒1丁目
|
6分
|
25万円
15,000円
|
1ヶ月 / なし
1ヶ月
|
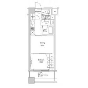
1DK
32.85m²
|
賃貸マンション
2025年4月(築1年未満)
|
ペット相談、楽器相談、常時ゴミ出し可能、SOHO向き、24時間換気システム、閑静な住宅街、保証人不要
|
|
間取図
|
外観
|
<
その他の画像
>
|
| 交通 | 東急目黒線 目黒駅 徒歩6分 |
|---|
| その他の交通 | 東急目黒線 不動前駅 徒歩14分 JR山手線 恵比寿駅 徒歩22分 |
| 所在地 |
東京都目黒区下目黒1丁目
|
| 物件種目 |
賃貸マンション |
| 賃料 |
25万円 |
管理費等 |
15,000円 |
| 敷金 / 保証金 |
1ヶ月 / なし |
礼金 |
1ヶ月 |
| 敷引 |
- |
保証金償却 |
- |
| その他一時金 |
駆けつけサポート24/2年:16,500円 |
保険等 |
要 |
| 維持費等 |
- |
クレジットカード決済 |
初期費用可 |
| 間取り |
1DK |
専有面積 |
32.85m² |
| 築年月 |
2025年4月(築1年未満)
|
階建 / 階 |
8階建 / 7階 |
| 建物構造 |
RC |
総戸数 |
- |
| 主要採光面 |
南西 |
駐車場 |
空無 |
| バイク置き場 |
- |
駐輪場 |
有 |
| 建物名・部屋番号 |
ザ・パークハビオ目黒プレイス 702 |
ペット |
相談 |
| アピールポイント |
室内見学承ります・お客様のご都合に合わせてオンラインまたはお近くの店舗でご提案可・初期費用分割払い可・クレジットカード利用可・引越業者割引・初期費用のお見積や入居日のご相談もお気軽にお問合せください |
| リフォーム履歴 |
- |
| リノベーション履歴 |
- |
| 備考 |
賃貸保証等:加入要(初年度保証料:賃料等合計額の50% 2年目以降:1年毎1万円)
管理形態/管理員の勤務形態:-/-
当物件は「住まいのリライフ」で取り扱っております。リライフは首都圏25店舗のネットワークで豊富な物件情報をお客様へご提供します。当物件に類似した未公開物件なども合わせてご提案可能です。お気軽にお問合せください。
敷金積み増し:ペット飼育(1.00ヶ月) 事務所兼用(1.00ヶ月)
|
| エネルギー消費性能 |
- |
| 断熱性能 |
- |
| 目安光熱費 |
- |
| バス・トイレ |
バス・トイレ別、浴室乾燥機、追焚機能、洗面所独立、温水洗浄便座 |
| キッチン |
システムキッチン、2口コンロ、ガスコンロ可 |
| セキュリティー |
オートロック、モニター付インターホン、防犯カメラ |
| 収納 |
クローゼット、シューズボックス |
| 設備・サービス |
室内洗濯機置場、全居室フローリング、フローリング、エアコン |
| TV・通信 |
インターネット対応、インターネット使用料無料、CS、BS端子 |
| その他 |
宅配BOX、バルコニー、駐輪場、エレベーター |
| 契約期間 |
2年 |
現況 |
空家 |
| 条件等 |
- |
入居可能時期 |
即時 |
| 更新料 |
新賃料 1ヶ月 |
物件番号 |
1187914502 |
| 情報公開日 |
2025年12月14日 |
次回更新予定日 |
2025年12月28日 |
| ケータイ用バーコード |
- スマートフォンでこの物件を見る
- スマートフォンからもこの物件をご覧になれます。
|
※「-」と表示されている項目については、情報提供会社にご確認ください。
| 周辺施設 |
まいばすけっと 下目黒2丁目店 |
| 距離 |
340m |
写真を見る |
| 周辺施設 |
成城石井 アトレ目黒2店 |
| 距離 |
391m |
写真を見る |
| 周辺施設 |
ローソン 下目黒一丁目店 |
| 距離 |
104m |
写真を見る |
| 周辺施設 |
セブンイレブン 目黒行人坂店 |
| 距離 |
147m |
写真を見る |
| 周辺施設 |
ココカラファイン 目黒店 |
| 距離 |
188m |
| 周辺施設 |
シロヤクリーニング 下目黒店 |
| 距離 |
246m |
| 周辺施設 |
総合病院厚生中央病院 |
| 距離 |
924m |
写真を見る |
ここから簡単にお問い合わせをすることができます。
(SSLでの暗号化での送信を希望されるお客さまは
こちら
よりお問い合わせください)
お問い合わせを行う前に
「個人情報の取り扱いについて」を必ずお読みください。
「個人情報の取り扱いについて」に同意いただいた場合は「上記にご同意の上 確認画面へ進む」のボタンをクリックしてください。
個人情報の取り扱いについて
皆さまが送付された個人情報はアットホーム(株)のサーバを経由し、お問い合わせ先の不動産会社にメールまたはFAXにて転送されるためアットホーム(株)にも保管されます。アットホーム(株)で保管された個人情報の取り扱いについては、【こちら】をご覧ください。
また、本画面でご記入いただいた個人情報は、お問い合わせ先の不動産会社でも保管します。 お問い合わせ先の不動産会社が保管する個人情報の取り扱いについては、不動産会社に直接お問い合わせください。
国土交通大臣免許(1)第10792号 |
|---|
- 交通:
- JR山手線/渋谷駅 徒歩1分
- 東京都渋谷区渋谷1丁目24-14 渋谷トライアングルビル6階
- TEL:
- 03-6372-4991
- FAX:
- 03-6451-1440
- 所属団体:
- (公社)東京都宅地建物取引業協会会員(公社)首都圏不動産公正取引協議会加盟
取引態様:仲介  - 00281250
|
- スマートフォンで
この不動産会社を見る

|
- 提携サイト等より掲載されている物件情報につきましては、不動産会社詳細情報にリンクされていないものがあります。
- 物件に関するお問合せは、物件詳細ページの「情報提供会社」に表示されている不動産会社へ直接お願いいたします。
- 間取図は、現況を優先させていただきます。
- 映像は物件の一部を撮影したものです。物件の契約にあたっての最終判断はご自身の判断に基づいて行ってください。
- 仲介手数料について

アットホームは物件情報の適正化に努めております。
内容に誤りがある場合にはこちらへご連絡ください。