東京都文京区水道1丁目(江戸川橋駅)の賃貸:物件詳細
交通 所在地 |
駅徒歩 |
賃料 管理費等 |
敷金/保証金 礼金 |
間取り 面積 |
物件種目 築年月 |
|
東京メトロ有楽町線/江戸川橋
東京都文京区水道1丁目
|
7分
|
14.5万円
15,000円
|
なし / なし
1ヶ月
|
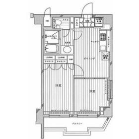
2DK
37.45m²
|
賃貸マンション
2006年3月(築19年10ヶ月)
|
分譲タイプ、角部屋、高齢者相談、二人入居可、2面採光、24時間換気システム、保証人不要
|
|
間取図
|
外観
外観は落ち着いています
|
<
その他の画像
>
|
| 交通 | 東京メトロ有楽町線 江戸川橋駅 徒歩7分 |
|---|
| その他の交通 | 東京メトロ東西線 神楽坂駅 徒歩11分 都営大江戸線 飯田橋駅 徒歩15分 |
| 所在地 |
東京都文京区水道1丁目
|
| 物件種目 |
賃貸マンション |
| 賃料 |
14.5万円 |
管理費等 |
15,000円 |
| 敷金 / 保証金 |
なし / なし |
礼金 |
1ヶ月 |
| 敷引 |
- |
保証金償却 |
- |
| その他一時金 |
室内抗菌代(必須):16,500円、鍵交換代等:33,000円~ |
保険等 |
要 |
| 維持費等 |
ベルプラス(必須):2,200円/月 |
| 間取り |
2DK |
専有面積 |
37.45m² |
| 築年月 |
2006年3月(築19年10ヶ月)
|
階建 / 階 |
8階建 / 4階 |
| 建物構造 |
RC |
総戸数 |
- |
| 主要採光面 |
東 |
駐車場 |
近有 40,000円/月 |
| バイク置き場 |
- |
駐輪場 |
有 |
| 建物名・部屋番号 |
ルーブル飯田橋 |
ペット |
-
|
| アピールポイント |
留守中に注文した商品が届くので、配送時間を気にせず注文ができる宅配ボックスを共用部に備えております。室内設備は浴室乾燥機・洗面所独立など豊富に揃っており、過ごしやすいお部屋になっております。セキュリティ面は、TVインターホン・オートロックなど充実しているので、防犯対策もばっちりです。駅徒歩7分に駅が立地する物件なので、電車を多く利用する方にとって便利です。快適な通信速度でパソコンが使用できる光回線の物件です。ぜひご覧いただきたい賃貸物件です。様々な場所へのアクセスが便利になる、2駅利用可能な物件です。2口コンロが備え付けられているので、2つの料理を同時に進められて時短につながります。友達同士で住むこともできる物件になっておりますので、ご相談ください。フローリングには静電気の防止効果もあるので好評です。 |
| リフォーム履歴 |
- |
| リノベーション履歴 |
- |
| 備考 |
賃貸保証等:加入要(初回契約時:50%、[リロ:月1,000円][JRAG:1万円/年(月330円)] [カーサ:月1%][:月額保証料1%]※外国籍の方は敷金1ヶ月追加)
管理形態/管理員の勤務形態:-/-
室内設備は浴室乾燥機・洗面化粧台など充実した設備を備え付けています。共用部には宅配ボックスが備え付けられているため、非対面で荷物を受け取れます。セキュリティ面は、オートロック・TVインターホンなどを設置しているので安全面でも優れております。生活を快適にする設備も充実のこの物件は月14.5万円です。風通しが良好なお部屋でさわやかな新生活を始めませんか。駐輪場付きの物件です。角部屋は他の住戸との接地面が少ないため、生活音が伝わりずらくなります。家族みんなで一緒にいる時間を作れるお住まい、2DKです。暑い夏、寒い冬には必須のエアコンが付いています。こちらはマンションタイプになります。
|
| エネルギー消費性能 |
- |
| 断熱性能 |
- |
| 目安光熱費 |
- |
| バス・トイレ |
バス・トイレ別、浴室乾燥機、オートバス、追焚機能、洗面所独立、洗面所、温水洗浄便座、トイレ |
| キッチン |
オープンキッチン、システムキッチン、2口コンロ、ガスコンロ可、グリル |
| セキュリティー |
モニター付オートロック、オートロック、モニター付インターホン、ディンプルキー、防犯カメラ |
| 収納 |
収納スペース、クローゼット |
| 設備・サービス |
室内洗濯機置場、洗濯機置場、全居室フローリング、フローリング、エアコン、冷房 |
| TV・通信 |
インターネット対応、光ファイバー、CS、BS端子 |
| その他 |
宅配BOX、バルコニー、駐輪場、エレベーター |
| 契約期間 |
2年 |
現況 |
居住中 |
| 条件等 |
- |
入居可能時期 |
2026年2月下旬予定 |
| 更新料 |
新賃料 1.5ヶ月 |
物件番号 |
1188031016 |
| 情報公開日 |
2025年12月1日 |
次回更新予定日 |
2025年12月16日 |
| ケータイ用バーコード |
- スマートフォンでこの物件を見る
- スマートフォンからもこの物件をご覧になれます。
|
※「-」と表示されている項目については、情報提供会社にご確認ください。
| 周辺施設 |
神楽坂友野 |
| 距離 |
1340m |
写真を見る |
| 周辺施設 |
神楽坂 AVANTI -TAKAHIRO- (アバンティ タカヒロ) |
| 距離 |
1339m |
写真を見る |
| 周辺施設 |
ベローチェ 春日駅前店 |
| 距離 |
1555m |
写真を見る |
| 周辺施設 |
PAIRON(パイロン) 飯田橋本店 |
| 距離 |
404m |
写真を見る |
| 周辺施設 |
まいばすけっと 春日店 |
| 距離 |
438m |
写真を見る |
ここから簡単にお問い合わせをすることができます。
(SSLでの暗号化での送信を希望されるお客さまは
こちら
よりお問い合わせください)
お問い合わせを行う前に
「個人情報の取り扱いについて」を必ずお読みください。
「個人情報の取り扱いについて」に同意いただいた場合は「上記にご同意の上 確認画面へ進む」のボタンをクリックしてください。
個人情報の取り扱いについて
皆さまが送付された個人情報はアットホーム(株)のサーバを経由し、お問い合わせ先の不動産会社にメールまたはFAXにて転送されるためアットホーム(株)にも保管されます。アットホーム(株)で保管された個人情報の取り扱いについては、【こちら】をご覧ください。
また、本画面でご記入いただいた個人情報は、お問い合わせ先の不動産会社でも保管します。 お問い合わせ先の不動産会社が保管する個人情報の取り扱いについては、不動産会社に直接お問い合わせください。
東京都知事免許(1)第107337号 |
|---|
- 交通:
- JR山手線/新橋駅 徒歩5分
- 東京都中央区銀座8丁目11-1 GINZA GS BLD.2 7階
- TEL:
- 03-6281-4770
- FAX:
- 03-6281-4771
- 所属団体:
- (公社)東京都宅地建物取引業協会会員(公社)首都圏不動産公正取引協議会加盟
取引態様:仲介  - 00271811
|
- スマートフォンで
この不動産会社を見る

|
- 提携サイト等より掲載されている物件情報につきましては、不動産会社詳細情報にリンクされていないものがあります。
- 物件に関するお問合せは、物件詳細ページの「情報提供会社」に表示されている不動産会社へ直接お願いいたします。
- 間取図は、現況を優先させていただきます。
- 映像は物件の一部を撮影したものです。物件の契約にあたっての最終判断はご自身の判断に基づいて行ってください。
- 仲介手数料について

アットホームは物件情報の適正化に努めております。
内容に誤りがある場合にはこちらへご連絡ください。