東京都板橋区小茂根1丁目(小竹向原駅)の賃貸:物件詳細
交通 所在地 |
駅徒歩 |
賃料 管理費等 |
敷金/保証金 礼金 |
間取り 面積 |
物件種目 築年月 |
|
東京メトロ副都心線/小竹向原
東京都板橋区小茂根1丁目
|
5分
|
9.7万円
10,000円
|
なし / なし
1ヶ月
|
1K
25.40m²
|
賃貸マンション
2014年9月(築11年4ヶ月)
|
分譲タイプ、常時ゴミ出し可能、角部屋、24時間セキュリティー、2面採光、24時間換気システム、外観タイル張り、保証人不要
|
|
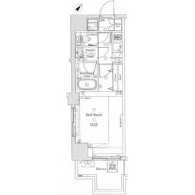
間取図
|
外観
|
<
その他の画像
>
|
| 交通 | 東京メトロ副都心線 小竹向原駅 徒歩5分 |
|---|
| その他の交通 | 西武有楽町線 新桜台駅 徒歩15分 西武池袋線 江古田駅 徒歩19分 |
| 所在地 |
東京都板橋区小茂根1丁目
|
| 物件種目 |
賃貸マンション |
| 賃料 |
9.7万円 |
管理費等 |
10,000円 |
| 敷金 / 保証金 |
なし / なし |
礼金 |
1ヶ月 |
| 敷引 |
- |
保証金償却 |
- |
| その他一時金 |
消毒代:11,000円、契約書類作成料:22,000円、鍵交換代等:33,000円~ |
保険等 |
要 2年 18,000円 |
| 維持費等 |
安心入居サポート料:770円/月 |
クレジットカード決済 |
初期費用可 |
| 間取り |
1K(洋8.2、K2) |
専有面積 |
25.40m² |
| 築年月 |
2014年9月(築11年4ヶ月)
|
階建 / 階 |
10階建 / 9階 |
| 建物構造 |
RC |
総戸数 |
- |
| 主要採光面 |
南東 |
駐車場 |
空無 |
| バイク置き場 |
- |
駐輪場 |
有 2,400円/月 |
| 建物名・部屋番号 |
DIPS小竹向原 |
ペット |
-
|
| アピールポイント |
遠方からのお引越しや、法人契約・オンライン相談・内見も柔軟に承ります!申込~ご契約まで、公式LINE&オンラインですべて完結!初期費用はカード決済・分割支払いにも対応!お気軽にお問合せください!
電話でのお問い合わせ限定【仲介手数料★☆10%割引★☆対象】 |
| リフォーム履歴 |
- |
| リノベーション履歴 |
- |
| 備考 |
賃貸保証等:加入要(家賃総額の70% 月次保証は家賃総額1%※学割などご相談ください。)
管理形態/管理員の勤務形態:-/-
遠方からのお引越しや、法人契約・オンライン相談・内見も柔軟に承ります!申込~ご契約まで、公式LINE&オンラインですべて完結!初期費用はカード決済・分割支払いにも対応!お気軽にお問合せください!
遠方からのお引越しや、法人契約・オンライン相談・内見も柔軟に承ります!申込~ご契約まで、公式LINE&オンラインですべて完結!初期費用はカード決済・分割支払いにも対応!お気軽にお問合せください!
|
| エネルギー消費性能 |
- |
| 断熱性能 |
- |
| 目安光熱費 |
- |
| バス・トイレ |
バス・トイレ別、浴室乾燥機、洗面所独立、洗面所、洗面台、シャワー、温水洗浄便座、トイレ |
| キッチン |
システムキッチン、2口コンロ、ガスコンロ可 |
| セキュリティー |
モニター付オートロック、オートロック、モニター付インターホン、ディンプルキー、ダブルロックドア、防犯カメラ |
| 収納 |
収納スペース、クローゼット、シューズボックス |
| 設備・サービス |
室内洗濯機置場、洗濯機置場、フローリング、都市ガス、エアコン、冷房 |
| TV・通信 |
インターネット対応、光ファイバー、CS、BS端子 |
| その他 |
宅配BOX、バルコニー、駐輪場、エレベーター |
| 契約期間 |
2年 |
現況 |
空家 |
| 条件等 |
- |
入居可能時期 |
即時 |
| 仲介手数料 |
1.1ヶ月 |
|
|
| 更新料 |
新賃料 1ヶ月 |
物件番号 |
1188119616 |
| 情報公開日 |
2025年12月8日 |
次回更新予定日 |
2025年12月22日 |
| ケータイ用バーコード |
- スマートフォンでこの物件を見る
- スマートフォンからもこの物件をご覧になれます。
|
※「-」と表示されている項目については、情報提供会社にご確認ください。
ここから簡単にお問い合わせをすることができます。
(SSLでの暗号化での送信を希望されるお客さまは
こちら
よりお問い合わせください)
お問い合わせを行う前に
「個人情報の取り扱いについて」を必ずお読みください。
「個人情報の取り扱いについて」に同意いただいた場合は「上記にご同意の上 確認画面へ進む」のボタンをクリックしてください。
個人情報の取り扱いについて
皆さまが送付された個人情報はアットホーム(株)のサーバを経由し、お問い合わせ先の不動産会社にメールまたはFAXにて転送されるためアットホーム(株)にも保管されます。アットホーム(株)で保管された個人情報の取り扱いについては、【こちら】をご覧ください。
また、本画面でご記入いただいた個人情報は、お問い合わせ先の不動産会社でも保管します。 お問い合わせ先の不動産会社が保管する個人情報の取り扱いについては、不動産会社に直接お問い合わせください。
東京都知事免許(2)第103874号 |
|---|
- 交通:
- JR山手線/巣鴨駅 徒歩2分
- 東京都豊島区巣鴨1丁目25-8 メゾンドカリテ1階
- TEL:
- 03-6902-9921
- FAX:
- 03-6735-4412
- 所属団体:
- (公社)東京都宅地建物取引業協会会員(公社)首都圏不動産公正取引協議会加盟
取引態様:仲介  - 00280970
|
- スマートフォンで
この不動産会社を見る

|
- 提携サイト等より掲載されている物件情報につきましては、不動産会社詳細情報にリンクされていないものがあります。
- 物件に関するお問合せは、物件詳細ページの「情報提供会社」に表示されている不動産会社へ直接お願いいたします。
- 間取図は、現況を優先させていただきます。
- 映像は物件の一部を撮影したものです。物件の契約にあたっての最終判断はご自身の判断に基づいて行ってください。
- 仲介手数料について

アットホームは物件情報の適正化に努めております。
内容に誤りがある場合にはこちらへご連絡ください。