東京都板橋区高島平7丁目(新高島平駅)の賃貸:物件詳細
交通 所在地 |
駅徒歩 |
賃料 管理費等 |
敷金/保証金 礼金 |
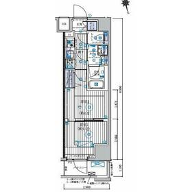
間取り 面積 |
物件種目 築年月 |
|
都営三田線/新高島平
東京都板橋区高島平7丁目
|
5分
|
9.65万円
10,000円
|
なし / なし
なし
|
2K
26.10m²
|
賃貸マンション
2025年11月
|
ペット相談、分譲タイプ、高齢者相談、ルームシェア可、二人入居可、保証人不要
|
| 交通 | 都営三田線 新高島平駅 徒歩5分 |
|---|
| その他の交通 | 都営三田線 高島平駅 徒歩7分 |
| 所在地 |
東京都板橋区高島平7丁目
|
| 物件種目 |
賃貸マンション |
| 賃料 |
9.65万円 |
管理費等 |
10,000円 |
| 敷金 / 保証金 |
なし / なし |
礼金 |
なし |
| 敷引 |
- |
保証金償却 |
- |
| その他一時金 |
契約事務手数料(税別):15,000円 |
保険等 |
要 2年 20,000円 |
| 維持費等 |
24時間サポート(税込):1,100円/月 |
| 間取り |
2K |
専有面積 |
26.10m² |
| 築年月 |
2025年11月
|
階建 / 階 |
8階建 / 3階 |
| 建物構造 |
RC |
総戸数 |
- |
| 主要採光面 |
|
駐車場 |
- |
| バイク置き場 |
- |
駐輪場 |
- |
| 建物名・部屋番号 |
MAXIVCROS高島平MIRAIS 303 |
ペット |
相談 |
| アピールポイント |
セキュリティ面は、オートロック・TVインターホンなど充実しているので、防犯対策もばっちりです。室内設備は浴室乾燥機・洗面所独立など大変充実しております。共用部には宅配ボックスを設置しているため、外出が多い方でも荷物を受け取ることができます。コートなども扱いやすいクロゼットが設置されています。管理人がマンションを巡回しているのでもしもの時でも安心です。敷金不要の物件なので、初期費用を減らすことができます。過ごしやすい環境を実現する、エアコン付きの物件です。大切なペットと一緒に入居出来る物件です。耐久性の高いシステムキッチンが備え付けられております。周辺環境も良好で、魅力的な住環境のある、2025年築の物件です。 |
| リフォーム履歴 |
- |
| リノベーション履歴 |
- |
| 備考 |
賃貸保証等:加入要(イントラスト 初回保証委託料:月額総支払額の50~100%、年間保証料12,000円ミライズインシュア/日本セーフティ/ルームバンクインシュア/クレディセゾン:初回保証料:月額総支払額の50~100%)
管理形態/管理員の勤務形態:-/巡回
管理人巡回
クリーニング費用は退去時請求:47,000円(税別)エアコン洗浄費用:12,000円×設置台数(税別)1年未満の解約:賃料+管理費の2ヵ月 1年以上2年未満の解約:賃料+管理費1ヵ月 解約予告:2ヶ月前
セキュリティ面は、TVインターホン・オートロックなどを備え付けているので安心して暮らせます。室内設備は浴室乾燥機・洗面所独立などが揃っているので、快適に過ごしやすいお部屋になります。リモートワークや入浴中など、直接配達を受け取れない時は宅配ボックスに荷物が届きます。システムキッチンは収納性に優れているため、キッチン回りを綺麗に保ちやすくなります。仲良しの友達同士でルームシェアを始めることができる物件です。敷金不要の物件です。こちらは月々の家賃が9.45万円の物件です。2人入居可能の物件です。BSの受信環境は整っているので、BS加入後すぐに視聴できます。お家に友達を呼ぶ機会が多い方にオススメ、2K物件です。
|
| エネルギー消費性能 |
- |
| 断熱性能 |
- |
| 目安光熱費 |
- |
| バス・トイレ |
バス・トイレ別、浴室乾燥機、洗面所独立、洗面所、温水洗浄便座、トイレ |
| キッチン |
システムキッチン、2口コンロ、ガスコンロ可 |
| セキュリティー |
モニター付オートロック、オートロック、モニター付インターホン |
| 収納 |
収納スペース、クローゼット |
| 設備・サービス |
室内洗濯機置場、洗濯機置場、都市ガス、エアコン |
| TV・通信 |
インターネット対応、BS端子 |
| その他 |
宅配BOX、エレベーター |
| 契約期間 |
2年 |
現況 |
空家 |
| 条件等 |
- |
入居可能時期 |
相談 |
| 更新料 |
旧賃料 1ヶ月 |
物件番号 |
1188129716 |
| 情報公開日 |
2025年12月1日 |
次回更新予定日 |
2025年12月29日 |
| ケータイ用バーコード |
- スマートフォンでこの物件を見る
- スマートフォンからもこの物件をご覧になれます。
|
※「-」と表示されている項目については、情報提供会社にご確認ください。
ここから簡単にお問い合わせをすることができます。
(SSLでの暗号化での送信を希望されるお客さまは
こちら
よりお問い合わせください)
お問い合わせを行う前に
「個人情報の取り扱いについて」を必ずお読みください。
「個人情報の取り扱いについて」に同意いただいた場合は「上記にご同意の上 確認画面へ進む」のボタンをクリックしてください。
個人情報の取り扱いについて
皆さまが送付された個人情報はアットホーム(株)のサーバを経由し、お問い合わせ先の不動産会社にメールまたはFAXにて転送されるためアットホーム(株)にも保管されます。アットホーム(株)で保管された個人情報の取り扱いについては、【こちら】をご覧ください。
また、本画面でご記入いただいた個人情報は、お問い合わせ先の不動産会社でも保管します。 お問い合わせ先の不動産会社が保管する個人情報の取り扱いについては、不動産会社に直接お問い合わせください。
(株)ハウスフレンド東京都知事免許(7)第73741号 |
|---|
- 交通:
- JR総武線/秋葉原駅 徒歩3分
- 東京都千代田区神田相生町1番地 秋葉原センタープレイスビル11階
- TEL:
- 03-5577-5538
- FAX:
- 03-5577-5539
- 所属団体:
- (公社)東京都宅地建物取引業協会会員(公社)首都圏不動産公正取引協議会加盟
取引態様:貸主 |
- 提携サイト等より掲載されている物件情報につきましては、不動産会社詳細情報にリンクされていないものがあります。
- 物件に関するお問合せは、物件詳細ページの「情報提供会社」に表示されている不動産会社へ直接お願いいたします。
- 間取図は、現況を優先させていただきます。
- 映像は物件の一部を撮影したものです。物件の契約にあたっての最終判断はご自身の判断に基づいて行ってください。
- 仲介手数料について

アットホームは物件情報の適正化に努めております。
内容に誤りがある場合にはこちらへご連絡ください。