不動産 賃貸 マンション等の住宅情報:埼玉住まい情報


東京都台東区入谷2丁目(入谷駅)の賃貸:物件詳細

  • 物件詳細
  • 情報の見方
  • 印刷用画面
交通
所在地
駅徒歩 賃料
管理費等
敷金/保証金
礼金
間取り
面積
物件種目
築年月

東京メトロ日比谷線/入谷

東京都台東区入谷2丁目

5分

11.9万円

10,000円

なし / なし

1ヶ月

1DK

30.61m²

賃貸マンション

2014年7月(築11年8ヶ月)

おすすめPOINT分譲タイプ、角部屋、二人入居可、2面採光、24時間換気システム、保証人不要

おすすめコメント  スタッフ: 大内

当物件はオンラインまたはお近くの店舗でご相談お申込を承ります

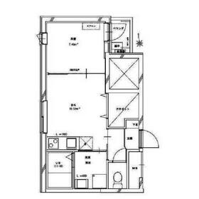
間取図

間取図

外観

外観

レゴキューブ

<
その他の画像
  • リビング
  • キッチン
  • バス/シャワー
  • 室内
  • トイレ
  • 玄関
  • 洗面
  • 収納
  • 設備
  • 設備
  • バルコニー
  • 眺望
  • 室内
  • 室内
  • 室内
  • エントランス
  • エントランス
  • 共有部分
  • その他
  • 販売店
  • コンビニ
  • コンビニ
  • その他
  • 郵便局
>
    • とりあえず保存
    • お問い合わせ
    交通

    東京メトロ日比谷線 入谷駅 徒歩5分

    その他の交通

    JR山手線 鶯谷駅 徒歩15分

    つくばエクスプレス 浅草駅 徒歩13分

    所在地 東京都台東区入谷2丁目
    物件種目 賃貸マンション
    賃料 11.9万円 管理費等 10,000円
    敷金 / 保証金 なし / なし 礼金 1ヶ月
    敷引 保証金償却
    その他一時金 契約事務手数料:5,500円、室内消毒代:22,000円、鍵交換代等:38,500円~ 保険等
    維持費等 にじいろサポート24:2,200円/月 クレジットカード決済 初期費用可
    間取り 1DK 専有面積 30.61m²
    築年月 2014年7月(築11年8ヶ月) 階建 / 階 4階建 / 3階
    建物構造 RC 総戸数
    主要採光面 駐車場
    バイク置き場 駐輪場
    建物名・部屋番号 レゴキューブ 303 ペット
    アピールポイント 室内見学承ります・お客様のご都合に合わせてオンラインまたはお近くの店舗でご提案可・初期費用分割払い可・クレジットカード利用可・引越業者割引・初期費用のお見積や入居日のご相談もお気軽にお問合せください
    リフォーム履歴
    リノベーション履歴
    備考
    賃貸保証等:加入要((初回)総賃料の80%~ (月額)総賃料の1%~(決済サービス料)550円/月)
    管理形態/管理員の勤務形態:-/巡回
    管理人巡回
    当物件は「住まいのリライフ」で取り扱っております。リライフは首都圏24店舗のネットワークで豊富な物件情報をお客様へご提供します。当物件に類似した未公開物件なども合わせてご提案可能です。お気軽にお問合せください。
    違約金有:短期解約違約金有
    エネルギー消費性能
    断熱性能
    目安光熱費
    バス・トイレ バス・トイレ別、浴室乾燥機、オートバス、追焚機能、洗面所独立
    キッチン システムキッチン、2口コンロ、ガスコンロ可
    セキュリティー オートロック、モニター付インターホン、防犯カメラ
    収納 クローゼット、シューズボックス
    設備・サービス 室内洗濯機置場、全居室フローリング、フローリング、都市ガス、エアコン
    TV・通信 光ファイバー、CS、BS端子
    その他 宅配BOX、バルコニー、駐輪場
    契約期間 2年 現況 空家
    条件等 入居可能時期 相談
    更新料 新賃料 1.5ヶ月 物件番号 1188195502
    情報公開日 2025年12月26日 次回更新予定日 2026年2月13日
    ケータイ用バーコード

    QRコード

    スマートフォンでこの物件を見る
    スマートフォンからもこの物件をご覧になれます。
    ※「-」と表示されている項目については、情報提供会社にご確認ください。

    この物件の周辺情報

    周辺施設 いなげや 入谷店
    距離 225m
    周辺施設 まいばすけっと合羽橋北店
    距離 350m
    周辺施設 セブンイレブン台東入谷1丁目店
    距離 165m
    周辺施設 ファミリーマート入谷二丁目店
    距離 214m
    周辺施設 ミヤモトドラッグ 入谷店
    距離 187m
    周辺施設 ポニークリーニング入谷1丁目店
    距離 214m
    周辺施設 台東入谷郵便局
    距離 393m
    周辺施設 台東区立中央図書館
    距離 418m

    クイックお問い合わせ

    ここから簡単にお問い合わせをすることができます。
    (SSLでの暗号化での送信を希望されるお客さまは こちら よりお問い合わせください)

    お問い合わせ内容(必須)
    お名前(必須) 姓  名 
    メールアドレス(必須)
    ※携帯電話のメールアドレスをご入力される方はこちらをご確認ください
    電話番号(必須)
    - -

    ※入力いただいた電話番号へSMSまたは音声でパスワードをご連絡します。

    携帯電話の番号をご入力の方へ

    携帯電話の番号をご入力の方へ
    確認画面にて送信ボタンをクリックするとSMSが携帯電話に届きます。
    そのSMSに記載のパスワード(認証番号)を入力し、お問い合わせを完了してください。
    尚、SMSの送信者番号は 0005 202 760 となります。
    これはアットホームの固定番号です。

    備考欄 希望条件、物件案内希望日、質問などがございましたらご記入ください。
    お問い合わせを行う前に「個人情報の取り扱いについて」を必ずお読みください。
    「個人情報の取り扱いについて」に同意いただいた場合は「上記にご同意の上 確認画面へ進む」のボタンをクリックしてください。

    個人情報の取り扱いについて

    皆さまが送付された個人情報はアットホーム(株)のサーバを経由し、お問い合わせ先の不動産会社にメールまたはFAXにて転送されるためアットホーム(株)にも保管されます。アットホーム(株)で保管された個人情報の取り扱いについては、【こちら】をご覧ください。
    また、本画面でご記入いただいた個人情報は、お問い合わせ先の不動産会社でも保管します。 お問い合わせ先の不動産会社が保管する個人情報の取り扱いについては、不動産会社に直接お問い合わせください。

    情報提供会社

    情報提供会社

    (株)リライフ 上野店

    国土交通大臣免許(1)第10792号

    交通:
    JR山手線/上野駅 徒歩3分
    東京都台東区上野4丁目9-5 イシイビル3階
    TEL:
    03-4218-2689
    FAX:
    03-5817-4772
    所属団体:
    (公社)東京都宅地建物取引業協会会員
    (公社)首都圏不動産公正取引協議会加盟

    取引態様:仲介

    • 会社情報
    • 00268234
    スマートフォンで
    この不動産会社を見る
    QRコード
    • とりあえず保存
    • お問い合わせ
    • 提携サイト等より掲載されている物件情報につきましては、不動産会社詳細情報にリンクされていないものがあります。
    • 物件に関するお問合せは、物件詳細ページの「情報提供会社」に表示されている不動産会社へ直接お願いいたします。
    • 間取図は、現況を優先させていただきます。
    • 映像は物件の一部を撮影したものです。物件の契約にあたっての最終判断はご自身の判断に基づいて行ってください。
    • 仲介手数料について仲介手数料

    アットホームは物件情報の適正化に努めております。 内容に誤りがある場合にはこちらへご連絡ください。

    【埼玉住まい情報】では、日本全国の物件から賃貸マンションや賃貸アパート・賃貸一戸建て等の賃貸住宅情報、新築マンション・分譲マンションや中古マンション等の売買マンション情報、新築一戸建てや中古一戸建てなどの戸建住宅、 土地など、総合的な不動産住宅情報検索サービスを提供致します。
    【埼玉住まい情報】から、選りすぐりの不動産物件を探してみましょう。

    【免責事項】
    このコーナーの運営はアットホーム株式会社(https://www.athome.co.jp/)が行っています。
    このコーナーに掲載している物件情報は、「アットホーム不動産情報ネットワーク」に加盟する不動産会社等(情報提供元)から提供されています。信頼性の高い情報提供が行えるよう、最大限の努力をしておりますが、その内容を保証するものではありません。 利用者のみなさまと各情報提供元との取引に起因する損害および情報が掲載されたことに起因する損害等については、株式会社イーシティ埼玉、およびアットホームは一切責任を負いません。
    各物件情報の内容や画像等はすべて現況を優先させていただきます。
    お取引等(お取引の準備、資金調達等を含みます)の際には、内容や契約条件等について、各情報提供元より十分な説明を受け、ご自身でご確認の上、判断してください。
    このコーナーへの物件情報のご掲載、その他不動産業務ソリューション等についての不動産会社様のお問合せはこちらからお願いいたします。

    物件画像: