不動産 賃貸 マンション等の住宅情報:埼玉住まい情報


埼玉県越谷市登戸町(南越谷駅)の賃貸:物件詳細

  • 物件詳細
  • 情報の見方
  • 印刷用画面
交通
所在地
駅徒歩 賃料
管理費等
敷金/保証金
礼金
間取り
面積
物件種目
築年月

JR武蔵野線/南越谷 新着

埼玉県越谷市登戸町

8分

5万円

2,000円

1ヶ月 / なし

なし

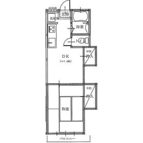
1DK

28.76m²

賃貸アパート

1968年2月(築57年11ヶ月)

おすすめPOINT角部屋、最上階、南向き、2面採光

おすすめコメント  スタッフ: 山野 潤

オンラインで申込から契約手続き、LINEでのご相談も可能です/当物件は初期費用分割払い可(クレジットカード決済も可)/お客様のご希望に合わせた方法(店頭、オンライン等)で物件をご提案いたします

間取図

間取図

外観

外観

<
その他の画像
  • キッチン
  • バス/シャワー
  • 設備
  • 室内
  • キッチン
  • バス/シャワー
  • 駐車場
  • 室内
  • 室内
  • トイレ
  • 玄関
  • 共有部分
  • 収納
  • バルコニー
  • その他
  • ショッピング施設
  • ショッピング施設
  • コンビニ
  • 販売店
  • 販売店
  • 飲食店
  • 病院
  • 病院
>
    • とりあえず保存
    • お問い合わせ
    交通

    JR武蔵野線 南越谷駅 徒歩8分

    その他の交通

    東武伊勢崎線 新越谷駅 徒歩9分

    東武伊勢崎線 蒲生駅 徒歩18分

    所在地 埼玉県越谷市登戸町
    物件種目 賃貸アパート
    賃料 5万円 管理費等 2,000円
    敷金 / 保証金 1ヶ月 / なし 礼金 なし
    敷引 保証金償却
    その他一時金 なし 保険等
    維持費等 クレジットカード決済 初期費用可
    間取り 1DK(DK7.4和室6) 専有面積 28.76m²
    築年月 1968年2月(築57年11ヶ月) 階建 / 階 2階建 / 2階
    建物構造 木造 総戸数
    主要採光面 駐車場 近有 7,700円/月
    バイク置き場 駐輪場 有 無料
    建物名・部屋番号 第二明徳団地 5号棟 ペット
    アピールポイント ☆当店の強みをお伝えします☆

    ①クレジットカードの初期費用分割払いを、喜んでお受けいたします(クレジットカード以外もOK)
    ②他社様がネットに掲載されている物件は、全てお調べし、【好条件】でご紹介いたします
    他社様で「お申込み」された物件でも、【好条件】でご紹介できる場合がございます
    ③「審査が不安…」「保証人がいない…」「値段交渉をして欲しい…」などなど、
    どのようなご条件でも、遠慮なくご相談いただけます
    ④ご検討されている「エリア」「沿線」が「広範囲」「複数」でも、一度で漏れなくお探しいただけます

    ポータルサイトや他社サイトで気になるお部屋がございましたらお気軽にご相談ください
    お客様のご来店を心よりお待ちしております
    リフォーム履歴
    リノベーション履歴
    備考
    賃貸保証等:加入要(初回:賃料等の60%、継続:800円/月、口座引落し手数料:330円/月)
    管理形態/管理員の勤務形態:-/-
    火災保険 必須 20000円2年 入居人数により変更あり/口座引落し手数料330円月額/退去時室内清掃代38500円退去時エアコン清掃代11000円1年未満の解約で賃料1ヶ月相当分の違約金/鍵交換代借主負担
    エネルギー消費性能
    断熱性能
    目安光熱費
    バス・トイレ バス・トイレ別、シャワー、トイレ、浴室に窓あり
    キッチン ガスコンロ付
    セキュリティー 火災警報器(報知機)
    収納 全居室収納、床下収納
    設備・サービス 室内洗濯機置場、プロパンガス給湯、給湯、プロパンガス、エアコン
    TV・通信 インターネット対応、光ファイバー
    その他 バイク置き場、バルコニー、駐輪場
    契約期間 2年 現況 空家
    条件等 入居可能時期 即時
    更新料 物件番号 1188296917
    情報公開日 2025年12月10日 次回更新予定日 2025年12月26日
    ケータイ用バーコード

    QRコード

    スマートフォンでこの物件を見る
    スマートフォンからもこの物件をご覧になれます。
    ※「-」と表示されている項目については、情報提供会社にご確認ください。

    この物件の周辺情報

    周辺施設 南越谷ラクーン
    距離 390m
    周辺施設 ジョイフーズ越谷登戸店
    距離 310m
    周辺施設 コンビニなんこし
    距離 163m
    周辺施設 ウエルシア越谷登戸店
    距離 401m
    周辺施設 ケーヨーデイツー 南越谷店
    距離 628m
    周辺施設 麺座でん
    距離 424m
    周辺施設 獨協医科大学越谷病院
    距離 837m
    周辺施設 木村クリニック
    距離 206m

    クイックお問い合わせ

    ここから簡単にお問い合わせをすることができます。
    (SSLでの暗号化での送信を希望されるお客さまは こちら よりお問い合わせください)

    お問い合わせ内容(必須)
    お名前(必須) 姓  名 
    メールアドレス(必須)
    ※携帯電話のメールアドレスをご入力される方はこちらをご確認ください
    電話番号(必須)
    - -

    ※入力いただいた電話番号へSMSまたは音声でパスワードをご連絡します。

    携帯電話の番号をご入力の方へ

    携帯電話の番号をご入力の方へ
    確認画面にて送信ボタンをクリックするとSMSが携帯電話に届きます。
    そのSMSに記載のパスワード(認証番号)を入力し、お問い合わせを完了してください。
    尚、SMSの送信者番号は 0005 202 760 となります。
    これはアットホームの固定番号です。

    備考欄 希望条件、物件案内希望日、質問などがございましたらご記入ください。
    お問い合わせを行う前に「個人情報の取り扱いについて」を必ずお読みください。
    「個人情報の取り扱いについて」に同意いただいた場合は「上記にご同意の上 確認画面へ進む」のボタンをクリックしてください。

    個人情報の取り扱いについて

    皆さまが送付された個人情報はアットホーム(株)のサーバを経由し、お問い合わせ先の不動産会社にメールまたはFAXにて転送されるためアットホーム(株)にも保管されます。アットホーム(株)で保管された個人情報の取り扱いについては、【こちら】をご覧ください。
    また、本画面でご記入いただいた個人情報は、お問い合わせ先の不動産会社でも保管します。 お問い合わせ先の不動産会社が保管する個人情報の取り扱いについては、不動産会社に直接お問い合わせください。

    情報提供会社

    情報提供会社

    アエラス川口店 (株)アエラス.FR

    国土交通大臣免許(1)第10206号

    交通:
    JR京浜東北線/川口駅 徒歩3分
    埼玉県川口市栄町3丁目8-4 イソベビル 2階
    TEL:
    048-250-0588
    FAX:
    048-250-0589
    所属団体:
    (公社)全日本不動産協会会員
    (公社)首都圏不動産公正取引協議会加盟

    取引態様:仲介

    • 会社情報
    • 00786153
    スマートフォンで
    この不動産会社を見る
    QRコード
    • とりあえず保存
    • お問い合わせ
    • 提携サイト等より掲載されている物件情報につきましては、不動産会社詳細情報にリンクされていないものがあります。
    • 物件に関するお問合せは、物件詳細ページの「情報提供会社」に表示されている不動産会社へ直接お願いいたします。
    • 間取図は、現況を優先させていただきます。
    • 映像は物件の一部を撮影したものです。物件の契約にあたっての最終判断はご自身の判断に基づいて行ってください。
    • 仲介手数料について仲介手数料

    アットホームは物件情報の適正化に努めております。 内容に誤りがある場合にはこちらへご連絡ください。

    【埼玉住まい情報】では、日本全国の物件から賃貸マンションや賃貸アパート・賃貸一戸建て等の賃貸住宅情報、新築マンション・分譲マンションや中古マンション等の売買マンション情報、新築一戸建てや中古一戸建てなどの戸建住宅、 土地など、総合的な不動産住宅情報検索サービスを提供致します。
    【埼玉住まい情報】から、選りすぐりの不動産物件を探してみましょう。

    【免責事項】
    このコーナーの運営はアットホーム株式会社(https://www.athome.co.jp/)が行っています。
    このコーナーに掲載している物件情報は、「アットホーム不動産情報ネットワーク」に加盟する不動産会社等(情報提供元)から提供されています。信頼性の高い情報提供が行えるよう、最大限の努力をしておりますが、その内容を保証するものではありません。 利用者のみなさまと各情報提供元との取引に起因する損害および情報が掲載されたことに起因する損害等については、株式会社イーシティ埼玉、およびアットホームは一切責任を負いません。
    各物件情報の内容や画像等はすべて現況を優先させていただきます。
    お取引等(お取引の準備、資金調達等を含みます)の際には、内容や契約条件等について、各情報提供元より十分な説明を受け、ご自身でご確認の上、判断してください。
    このコーナーへの物件情報のご掲載、その他不動産業務ソリューション等についての不動産会社様のお問合せはこちらからお願いいたします。

    物件画像: