東京都世田谷区上馬2丁目(駒沢大学駅)の賃貸:物件詳細
交通 所在地 |
駅徒歩 |
賃料 管理費等 |
敷金/保証金 礼金 |
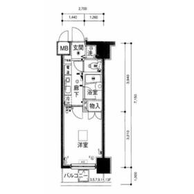
間取り 面積 |
物件種目 築年月 |
|
東急田園都市線/駒沢大学
東京都世田谷区上馬2丁目
|
5分
|
7.8万円
10,000円
|
なし / なし
1ヶ月
|
1K
19.30m²
|
賃貸マンション
1997年10月(築28年3ヶ月)
|
分譲タイプ、二人入居可
|
|
間取図
|
外観
|
<
その他の画像
>
|
| 交通 | 東急田園都市線 駒沢大学駅 徒歩5分 |
|---|
| その他の交通 | 東急田園都市線 三軒茶屋駅 徒歩12分 東急世田谷線 西太子堂駅 徒歩12分 |
| 所在地 |
東京都世田谷区上馬2丁目
|
| 物件種目 |
賃貸マンション |
| 賃料 |
7.8万円 |
管理費等 |
10,000円 |
| 敷金 / 保証金 |
なし / なし |
礼金 |
1ヶ月 |
| 敷引 |
- |
保証金償却 |
- |
| その他一時金 |
コンシェルジュ24:16,500円、契約事務手数料:11,000円、退去時ハウスクリーニング:38,500円、退去時エアコン分解清掃:11,000円、鍵交換代等:33,000円~ |
保険等 |
要 2年 20,000円 |
| 維持費等 |
- |
| 間取り |
1K(洋5.8) |
専有面積 |
19.30m² |
| 築年月 |
1997年10月(築28年3ヶ月)
|
階建 / 階 |
14階建 / 4階 |
| 建物構造 |
SRC |
総戸数 |
- |
| 主要採光面 |
南東 |
駐車場 |
- |
| バイク置き場 |
無 |
駐輪場 |
有 |
| 建物名・部屋番号 |
菱和パレス上馬 403 |
ペット |
-
|
| リフォーム履歴 |
- |
| リノベーション履歴 |
- |
| 備考 |
賃貸保証等:加入要(初回契約時:50%、更新時:10,000円、1年毎 お客様の内容によって保証料変更あり)
管理形態/管理員の勤務形態:-/-
東急田園都市線駒沢大学駅周辺への引っ越しをお考えなら「菱和パレス上馬」。ファミリーマート 上馬交差点前店まで徒歩3分と近場にコンビニがあるのもポイント。床がフローリングの物件です。世田谷区や東急田園都市線駒沢大学付近のことなら、当社までお気軽にご連絡下さい。あなたに合う素敵なお部屋がきっと見つかります。
便利なスーパー「オオゼキ 野沢店」まで246mです。収納はシューズボックス・全居室収納などが備え付けられているので、衣類や日用品の収納に重宝します。こちらの物件にはエレベーターがあります。利便性の高い暮らしをするなら世田谷区でいかがでしょうか。賃貸住宅情報をお探しの際には、ぜひお気軽に当社までご連絡下さい。しっかりとサポート致します。
|
| エネルギー消費性能 |
- |
| 断熱性能 |
- |
| 目安光熱費 |
- |
| バス・トイレ |
バス・トイレ別、洗面台、トイレ |
| キッチン |
システムキッチン、電気コンロ |
| セキュリティー |
モニター付オートロック、オートロック、モニター付インターホン、防犯カメラ |
| 収納 |
全居室収納、収納スペース、シューズボックス |
| 設備・サービス |
室内洗濯機置場、洗濯機置場、フローリング、都市ガス、エアコン |
| TV・通信 |
CS、BS端子 |
| その他 |
宅配BOX、バルコニー、駐輪場、エレベーター |
| 契約期間 |
2年 |
現況 |
居住中 |
| 条件等 |
- |
入居可能時期 |
2026年2月中旬予定 |
| 更新料 |
新賃料 1ヶ月 |
物件番号 |
1188551516 |
| 情報公開日 |
2025年12月9日 |
次回更新予定日 |
2026年1月2日 |
| ケータイ用バーコード |
- スマートフォンでこの物件を見る
- スマートフォンからもこの物件をご覧になれます。
|
※「-」と表示されている項目については、情報提供会社にご確認ください。
| 周辺施設 |
オオゼキ 野沢店 |
| 距離 |
246m |
写真を見る |
| 周辺施設 |
ファミリーマート 上馬交差点前店 |
| 距離 |
182m |
写真を見る |
ここから簡単にお問い合わせをすることができます。
(SSLでの暗号化での送信を希望されるお客さまは
こちら
よりお問い合わせください)
お問い合わせを行う前に
「個人情報の取り扱いについて」を必ずお読みください。
「個人情報の取り扱いについて」に同意いただいた場合は「上記にご同意の上 確認画面へ進む」のボタンをクリックしてください。
個人情報の取り扱いについて
皆さまが送付された個人情報はアットホーム(株)のサーバを経由し、お問い合わせ先の不動産会社にメールまたはFAXにて転送されるためアットホーム(株)にも保管されます。アットホーム(株)で保管された個人情報の取り扱いについては、【こちら】をご覧ください。
また、本画面でご記入いただいた個人情報は、お問い合わせ先の不動産会社でも保管します。 お問い合わせ先の不動産会社が保管する個人情報の取り扱いについては、不動産会社に直接お問い合わせください。
東京都知事免許(1)第106938号 |
|---|
- 交通:
- 東急田園都市線/三軒茶屋駅 徒歩1分
- 東京都世田谷区三軒茶屋1丁目37-8 ワコーレ三軒茶屋64ビル3A-5
- TEL:
- 03-6450-7277
- FAX:
- 03-6850-7600
- 所属団体:
- (公社)全日本不動産協会会員(公社)首都圏不動産公正取引協議会加盟
取引態様:仲介  - 00271188
|
- スマートフォンで
この不動産会社を見る

|
- 提携サイト等より掲載されている物件情報につきましては、不動産会社詳細情報にリンクされていないものがあります。
- 物件に関するお問合せは、物件詳細ページの「情報提供会社」に表示されている不動産会社へ直接お願いいたします。
- 間取図は、現況を優先させていただきます。
- 映像は物件の一部を撮影したものです。物件の契約にあたっての最終判断はご自身の判断に基づいて行ってください。
- 仲介手数料について

アットホームは物件情報の適正化に努めております。
内容に誤りがある場合にはこちらへご連絡ください。