不動産 賃貸 マンション等の住宅情報:埼玉住まい情報


東京都江東区豊洲1丁目(豊洲駅)の賃貸:物件詳細

  • 物件詳細
  • 情報の見方
  • 印刷用画面
交通
所在地
駅徒歩 賃料
管理費等
敷金/保証金
礼金
間取り
面積
物件種目
築年月

東京メトロ有楽町線/豊洲

東京都江東区豊洲1丁目

8分

27.9万円

7,000円

1ヶ月 / なし

1ヶ月

2LDK

57.19m²

賃貸マンション

2008年3月(築17年10ヶ月)

おすすめPOINTペット相談、楽器相談、フロントサービス、常時ゴミ出し可能、高齢者相談、二人入居可、免震構造、制震構造、24時間換気システム、管理人常駐、IT重説対応物件、保証人不要

おすすめコメント

共用部には宅配ボックス・ゴミ出し24時間OKなどが揃っております。セキュリティ面は、オートロック・TVインターホンなど充実しているので、防犯対策もばっちりです。駐輪場付きのマンションです。

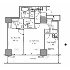
間取図

間取図

外観

外観

落ち着いた雰囲気の外観です

<
その他の画像
  • リビング
  • キッチン
  • キッチン
  • バス/シャワー
  • トイレ
  • 洗面
  • 室内
  • 設備
  • 室内
  • 収納
  • その他
  • バルコニー
  • エントランス
  • 共有部分
  • 共有部分
  • 駐車場
  • その他
  • 販売店
  • 販売店
  • コンビニ
  • 販売店
  • 販売店
  • 病院
>
    • とりあえず保存
    • お問い合わせ
    交通

    東京メトロ有楽町線 豊洲駅 徒歩8分

    その他の交通

    JR京葉線 越中島駅 徒歩17分

    新交通ゆりかもめ 新豊洲駅 徒歩20分

    所在地 東京都江東区豊洲1丁目
    物件種目 賃貸マンション
    賃料 27.9万円 管理費等 7,000円
    敷金 / 保証金 1ヶ月 / なし 礼金 1ヶ月
    敷引 保証金償却
    その他一時金 室内清掃費用:106,945円、鍵交換代等:16,500円~ 保険等
    維持費等 口座振替事務手数料:110円/月
    間取り 2LDK(LDK13.1、洋6.8、洋4.5) 専有面積 57.19m²
    築年月 2008年3月(築17年10ヶ月) 階建 / 階 地上20階地下1階建 / 6階
    建物構造 RC 総戸数
    主要採光面 北東 駐車場 有 44,000円/月
    バイク置き場 駐輪場
    建物名・部屋番号 パークアクシス豊洲 ペット 相談
    アピールポイント 室内設備は洗面所独立・浴室乾燥機など大変充実しております。セキュリティ面は、オートロック・TVインターホンなど充実しているので、防犯対策もばっちりです。共用部には宅配ボックス・ゴミ出し24時間OKなどが備わっておりとても充実しています。転居先に住み心地も良いこちらの賃貸物件。充実した新生活を過ごしましょう。駐輪場付きの物件です。3駅以上利用可なので、お出かけの幅も広がるのが魅力です。共用部に住民専用のゴミ置き場を備えているので、面倒なゴミ出しも楽になります。防犯カメラを設置しているので、犯罪の抑止や不法投棄などによる入居者同士のトラブルを減らせます。システムキッチンはコンロとシンクの間に隙間がなく、掃除が簡単なためキッチンを綺麗に保ちやすくなります。火を使わないIHに対応しているので、ガス漏れなどの心配なく安心してご利用いただけます。
    リフォーム履歴
    リノベーション履歴
    備考
    賃貸保証等:加入要(初回保証委託料(最低20,000円):月額賃料等の50%、 2年目以降:9,600円/年)
    管理形態/管理員の勤務形態:-/常駐
    IT重説対応物件
    セキュリティ面は、TVインターホン・オートロックなど充実しているので安心して生活できます。室内設備は浴室乾燥機・洗面化粧台などが揃っているので、快適に過ごしやすいお部屋になります。共用部には宅配ボックス・ゴミ出し24時間OKなどが揃っております。寒い時期に活躍する追い焚き機能付きの浴室がある物件です。3駅以上利用できる立地となっていて、様々な場所へのアクセスが便利良いです。こちらの物件はシステムキッチンが用意されております。クローゼット付きの物件です。二人での生活なら、楽しみも増えることでしょう。専有面積57.19平米もある広々とした住まい。こちらの物件には管理人が常駐しているので安心です。
    エネルギー消費性能
    断熱性能
    目安光熱費
    バス・トイレ バス・トイレ別、浴室乾燥機、オートバス、追焚機能、洗面所独立、洗面所、温水洗浄便座、トイレ
    キッチン システムキッチン、独立型キッチン、IHクッキングヒーター、3口以上コンロ、グリル
    セキュリティー モニター付オートロック、オートロック、モニター付インターホン、ディンプルキー、ダブルロックドア、防犯カメラ
    収納 ウォークインクローゼット、収納スペース、クローゼット
    設備・サービス 室内洗濯機置場、洗濯機置場、全居室フローリング、フローリング、都市ガス、エアコン、冷房
    TV・通信 インターネット対応、CATVインターネット、ケーブルTV、CS、BS端子
    その他 宅配BOX、エレベーター2基以上、バルコニー、駐輪場、エレベーター
    契約期間 2年 現況 居住中
    条件等 入居可能時期 2026年1月下旬予定
    更新料 新賃料 1ヶ月 物件番号 1188561816
    情報公開日 2025年12月2日 次回更新予定日 2025年12月22日
    ケータイ用バーコード

    QRコード

    スマートフォンでこの物件を見る
    スマートフォンからもこの物件をご覧になれます。
    ※「-」と表示されている項目については、情報提供会社にご確認ください。

    この物件の周辺情報

    周辺施設 フードストアあおき ららぽーと豊洲
    距離 684m
    周辺施設 文化堂豊洲店
    距離 1036m
    周辺施設 ローソン 豊洲一丁目店
    距離 127m
    周辺施設 スーパービバホーム 豊洲店
    距離 978m
    周辺施設 くすりの福太郎 豊洲1丁目店
    距離 134m
    周辺施設 昭和大学江東豊洲病院
    距離 1328m

    クイックお問い合わせ

    ここから簡単にお問い合わせをすることができます。
    (SSLでの暗号化での送信を希望されるお客さまは こちら よりお問い合わせください)

    お問い合わせ内容(必須)
    お名前(必須) 姓  名 
    メールアドレス(必須)
    ※携帯電話のメールアドレスをご入力される方はこちらをご確認ください
    電話番号(必須)
    - -

    ※入力いただいた電話番号へSMSまたは音声でパスワードをご連絡します。

    携帯電話の番号をご入力の方へ

    携帯電話の番号をご入力の方へ
    確認画面にて送信ボタンをクリックするとSMSが携帯電話に届きます。
    そのSMSに記載のパスワード(認証番号)を入力し、お問い合わせを完了してください。
    尚、SMSの送信者番号は 0005 202 760 となります。
    これはアットホームの固定番号です。

    備考欄 希望条件、物件案内希望日、質問などがございましたらご記入ください。
    お問い合わせを行う前に「個人情報の取り扱いについて」を必ずお読みください。
    「個人情報の取り扱いについて」に同意いただいた場合は「上記にご同意の上 確認画面へ進む」のボタンをクリックしてください。

    個人情報の取り扱いについて

    皆さまが送付された個人情報はアットホーム(株)のサーバを経由し、お問い合わせ先の不動産会社にメールまたはFAXにて転送されるためアットホーム(株)にも保管されます。アットホーム(株)で保管された個人情報の取り扱いについては、【こちら】をご覧ください。
    また、本画面でご記入いただいた個人情報は、お問い合わせ先の不動産会社でも保管します。 お問い合わせ先の不動産会社が保管する個人情報の取り扱いについては、不動産会社に直接お問い合わせください。

    情報提供会社

    情報提供会社

    Sky Yard Property(株)

    東京都知事免許(1)第107337号

    交通:
    JR山手線/新橋駅 徒歩5分
    東京都中央区銀座8丁目11-1 GINZA GS BLD.2 7階
    TEL:
    03-6281-4770
    FAX:
    03-6281-4771
    所属団体:
    (公社)東京都宅地建物取引業協会会員
    (公社)首都圏不動産公正取引協議会加盟

    取引態様:仲介

    • 会社情報
    • 00271811
    スマートフォンで
    この不動産会社を見る
    QRコード
    • とりあえず保存
    • お問い合わせ
    • 提携サイト等より掲載されている物件情報につきましては、不動産会社詳細情報にリンクされていないものがあります。
    • 物件に関するお問合せは、物件詳細ページの「情報提供会社」に表示されている不動産会社へ直接お願いいたします。
    • 間取図は、現況を優先させていただきます。
    • 映像は物件の一部を撮影したものです。物件の契約にあたっての最終判断はご自身の判断に基づいて行ってください。
    • 仲介手数料について仲介手数料

    アットホームは物件情報の適正化に努めております。 内容に誤りがある場合にはこちらへご連絡ください。

    【埼玉住まい情報】では、日本全国の物件から賃貸マンションや賃貸アパート・賃貸一戸建て等の賃貸住宅情報、新築マンション・分譲マンションや中古マンション等の売買マンション情報、新築一戸建てや中古一戸建てなどの戸建住宅、 土地など、総合的な不動産住宅情報検索サービスを提供致します。
    【埼玉住まい情報】から、選りすぐりの不動産物件を探してみましょう。

    【免責事項】
    このコーナーの運営はアットホーム株式会社(https://www.athome.co.jp/)が行っています。
    このコーナーに掲載している物件情報は、「アットホーム不動産情報ネットワーク」に加盟する不動産会社等(情報提供元)から提供されています。信頼性の高い情報提供が行えるよう、最大限の努力をしておりますが、その内容を保証するものではありません。 利用者のみなさまと各情報提供元との取引に起因する損害および情報が掲載されたことに起因する損害等については、株式会社イーシティ埼玉、およびアットホームは一切責任を負いません。
    各物件情報の内容や画像等はすべて現況を優先させていただきます。
    お取引等(お取引の準備、資金調達等を含みます)の際には、内容や契約条件等について、各情報提供元より十分な説明を受け、ご自身でご確認の上、判断してください。
    このコーナーへの物件情報のご掲載、その他不動産業務ソリューション等についての不動産会社様のお問合せはこちらからお願いいたします。

    物件画像: