東京都板橋区小茂根1丁目(小竹向原駅)の賃貸:物件詳細
交通 所在地 |
駅徒歩 |
賃料 管理費等 |
敷金/保証金 礼金 |
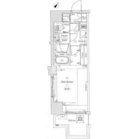
間取り 面積 |
物件種目 築年月 |
|
東京メトロ有楽町線/小竹向原
東京都板橋区小茂根1丁目
|
5分
|
9.7万円
10,000円
|
なし / なし
1ヶ月
|
1K
25.40m²
|
賃貸マンション
2014年9月(築11年4ヶ月)
|
ペット相談、分譲タイプ、常時ゴミ出し可能、角部屋、2面採光、24時間換気システム、外観タイル張り、IT重説対応物件、保証人不要
|
|
間取図
|
外観
|
<
その他の画像
>
|
| 交通 | 東京メトロ有楽町線 小竹向原駅 徒歩5分 |
|---|
| その他の交通 | 西武有楽町線 小竹向原駅 徒歩5分 東京メトロ副都心線 小竹向原駅 徒歩5分 |
| 所在地 |
東京都板橋区小茂根1丁目
|
| 物件種目 |
賃貸マンション |
| 賃料 |
9.7万円 |
管理費等 |
10,000円 |
| 敷金 / 保証金 |
なし / なし |
礼金 |
1ヶ月 |
| 敷引 |
- |
保証金償却 |
- |
| その他一時金 |
書類作成代:22,000円、室内消毒代:11,000円、鍵交換代等:33,000円~ |
保険等 |
要 2年 18,000円 |
| 維持費等 |
安心入居サポート:770円/月 |
| 間取り |
1K(洋8.2) |
専有面積 |
25.40m² |
| 築年月 |
2014年9月(築11年4ヶ月)
|
階建 / 階 |
10階建 / 9階 |
| 建物構造 |
RC |
総戸数 |
- |
| 主要採光面 |
南東 |
駐車場 |
- |
| バイク置き場 |
有 |
駐輪場 |
有 |
| 建物名・部屋番号 |
|
ペット |
相談 |
| アピールポイント |
セキュリティ面は、オートロック・TVインターホンなど充実しているので安心して生活できます。共用部にはゴミ出し24時間OK・宅配ボックスなどが揃っており、とても充実しています。室内設備は浴室乾燥機・洗面所独立などが揃っているので、快適に過ごしやすいお部屋になります。収納はシューズボックス・クロゼットなどが備え付けられているので、衣類や日用品の収納に重宝します。物件にはシステムキッチンが備え付けてあります。自然なイメージを感じるフローリングとなっています。防犯カメラを設置しているので、犯罪の抑止や不法投棄などによる入居者同士のトラブルを減らせます。共用部にゴミ置き場があるので、外部の人にごみを見られたり持っていかれるリスクが下がります。2口コンロが付いているので、忙しい朝でも短い時間で一気に料理ができます。徒歩5分に駅がある物件です。 |
| リフォーム履歴 |
- |
| リノベーション履歴 |
- |
| 備考 |
賃貸保証等:加入要(全保連 初回保証料:総賃料の70% 月額:総賃料の1%)
管理形態/管理員の勤務形態:-/巡回
IT重説対応物件、管理人巡回
インターネット上で他にも気になるお部屋がございましたら、当社でまとめてご案内可能です。ご不明な点やご質問などございましたら、お気軽に何でもお問い合わせ下さいませ。
セキュリティ面は、オートロック・TVインターホンなど充実しているので、防犯対策もばっちりです。収納はシューズボックス・クロゼットなど豊富なので、広々と空間を利用することも可能です。共用部にはゴミ出し24時間OK・宅配ボックスなどが揃っております。室内設備は洗面所独立・浴室乾燥機などが揃っているので、快適に過ごしやすいお部屋になります。このマンションは駐輪場が付いている物件です。こちらはマンションタイプになります。二口コンロが付いています。とてもニーズが高いのが3駅以上利用可のマンションです。周辺環境も良好で、魅力的な住環境のある、2014年築の物件です。畳に比べるとダニ・カビを気にしなくて良いフローリング付き。一人暮らしの安心できるマンション、防犯対策でカメラがついています。
|
| エネルギー消費性能 |
- |
| 断熱性能 |
- |
| 目安光熱費 |
- |
| バス・トイレ |
バス・トイレ別、浴室乾燥機、洗面所独立、洗面所、洗面台、シャワー、温水洗浄便座、トイレ |
| キッチン |
システムキッチン、2口コンロ、ガスコンロ可 |
| セキュリティー |
モニター付オートロック、オートロック、モニター付インターホン、ディンプルキー、ダブルロックドア、防犯カメラ |
| 収納 |
全居室収納、収納スペース、クローゼット、シューズボックス |
| 設備・サービス |
室内洗濯機置場、洗濯機置場、都市ガス給湯、給湯、フローリング、都市ガス、エアコン、冷房、照明器具 |
| TV・通信 |
インターネット対応、CS、BS端子 |
| その他 |
宅配BOX、バイク置き場、バルコニー、駐輪場、エレベーター |
| 契約期間 |
2年 |
現況 |
居住中 |
| 条件等 |
- |
入居可能時期 |
相談 |
| 更新料 |
新賃料 1ヶ月 |
物件番号 |
1189151516 |
| 情報公開日 |
2025年12月9日 |
次回更新予定日 |
2026年1月5日 |
| ケータイ用バーコード |
- スマートフォンでこの物件を見る
- スマートフォンからもこの物件をご覧になれます。
|
※「-」と表示されている項目については、情報提供会社にご確認ください。
| 周辺施設 |
ファミリーマート 羽沢三丁目店 |
| 距離 |
706m |
写真を見る |
| 周辺施設 |
セブンイレブン 練馬羽沢3丁目店 |
| 距離 |
913m |
写真を見る |
| 周辺施設 |
まいばすけっと 小竹向原駅北店 |
| 距離 |
278m |
写真を見る |
| 周辺施設 |
オーケー 小茂根店 |
| 距離 |
266m |
写真を見る |
| 周辺施設 |
びっくりドンキー 板橋こもね店 |
| 距離 |
297m |
写真を見る |
| 周辺施設 |
Olympic(オリンピック) 小竹向原店 |
| 距離 |
316m |
写真を見る |
| 周辺施設 |
ローソン 小竹向原駅前店 |
| 距離 |
371m |
写真を見る |
ここから簡単にお問い合わせをすることができます。
(SSLでの暗号化での送信を希望されるお客さまは
こちら
よりお問い合わせください)
お問い合わせを行う前に
「個人情報の取り扱いについて」を必ずお読みください。
「個人情報の取り扱いについて」に同意いただいた場合は「上記にご同意の上 確認画面へ進む」のボタンをクリックしてください。
個人情報の取り扱いについて
皆さまが送付された個人情報はアットホーム(株)のサーバを経由し、お問い合わせ先の不動産会社にメールまたはFAXにて転送されるためアットホーム(株)にも保管されます。アットホーム(株)で保管された個人情報の取り扱いについては、【こちら】をご覧ください。
また、本画面でご記入いただいた個人情報は、お問い合わせ先の不動産会社でも保管します。 お問い合わせ先の不動産会社が保管する個人情報の取り扱いについては、不動産会社に直接お問い合わせください。
東京都知事免許(1)第111656号 |
|---|
- 交通:
- JR山手線/池袋駅
- 東京都豊島区東池袋1丁目42-14 28山京ビル7階8号室
- TEL:
- 03-6820-4263
- 所属団体:
- (公社)全日本不動産協会会員(公社)首都圏不動産公正取引協議会加盟
取引態様:仲介  - 00278775
|
- スマートフォンで
この不動産会社を見る

|
- 提携サイト等より掲載されている物件情報につきましては、不動産会社詳細情報にリンクされていないものがあります。
- 物件に関するお問合せは、物件詳細ページの「情報提供会社」に表示されている不動産会社へ直接お願いいたします。
- 間取図は、現況を優先させていただきます。
- 映像は物件の一部を撮影したものです。物件の契約にあたっての最終判断はご自身の判断に基づいて行ってください。
- 仲介手数料について

アットホームは物件情報の適正化に努めております。
内容に誤りがある場合にはこちらへご連絡ください。