不動産 賃貸 マンション等の住宅情報:埼玉住まい情報


東京都武蔵野市境1丁目(武蔵境駅)の賃貸:物件詳細

  • 物件詳細
  • 情報の見方
  • 印刷用画面
交通
所在地
駅徒歩 賃料
管理費等
敷金/保証金
礼金
間取り
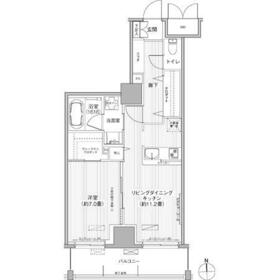
面積
物件種目
築年月

JR中央線/武蔵境

東京都武蔵野市境1丁目

2分

19.2万円

8,000円

1ヶ月 / なし

2ヶ月

1LDK

50.17m²

賃貸マンション

2020年2月(築5年11ヶ月)

おすすめPOINT南向き、二人入居可、外観タイル張り、IT重説対応物件、保証人不要

おすすめコメント  スタッフ: 平口 みゆき

南向き♪オートロック、防犯カメラなどセキュリティ充実♪ウォークインクローゼットなど収納スペース豊富♪フレッツ光をご利用いただけます(ネット契約費用必要)♪

間取図

間取図

外観

外観

外観です♪

<
その他の画像
  • 室内
  • 室内
  • キッチン
  • バス/シャワー
  • トイレ
  • 洗面
  • 設備
  • 収納
  • 収納
  • 玄関
  • バルコニー
  • 眺望
  • その他
  • 共有部分
  • 共有部分
  • エントランス
  • 販売店
  • 販売店
  • コンビニ
  • 飲食店
  • 銀行
>
    • とりあえず保存
    • お問い合わせ
    交通

    JR中央線 武蔵境駅 徒歩2分

    その他の交通

    西武多摩川線 武蔵境駅 徒歩2分

    JR中央線 三鷹駅 徒歩17分

    所在地 東京都武蔵野市境1丁目
    物件種目 賃貸マンション
    賃料 19.2万円 管理費等 8,000円
    敷金 / 保証金 1ヶ月 / なし 礼金 2ヶ月
    敷引 保証金償却
    その他一時金 退去時ハウスクリーニング:66,224円、鍵交換代等:27,500円~ 保険等
    維持費等
    間取り 1LDK(LDK11.2・洋室7) 専有面積 50.17m²
    築年月 2020年2月(築5年11ヶ月) 階建 / 階 地上12階地下1階建 / 6階
    建物構造 RC 総戸数
    主要採光面 駐車場
    バイク置き場 駐輪場
    建物名・部屋番号 グランシャルール武蔵境 605 ペット
    アピールポイント JR中央線『武蔵境』駅徒歩2分!利便性◎
    リフォーム履歴
    リノベーション履歴
    備考
    賃貸保証等:加入要(初回契約時:40%、更新時:1%、月額:1%)
    管理形態/管理員の勤務形態:-/巡回
    IT重説対応物件、管理人巡回
    内覧予約随時受付中☆ お問い合わせは日商ベックス代々木店へ♪ 何かお困りな事などありましたらお気軽にご相談ください☆ ご要望にぴったりなお部屋を、一緒にお探しします♪
    エネルギー消費性能
    断熱性能
    目安光熱費
    バス・トイレ バス・トイレ別、浴室乾燥機、追焚機能、洗面所独立、洗面所、洗面台、シャワー、温水洗浄便座、トイレ
    キッチン カウンターキッチン、システムキッチン、2口コンロ、ガスコンロ付
    セキュリティー オートロック、モニター付インターホン、カードキー、防犯カメラ、火災警報器(報知機)
    収納 ウォークインクローゼット、収納スペース、クローゼット、シューズボックス
    設備・サービス 室内洗濯機置場、洗濯機置場、全居室フローリング、フローリング、都市ガス、エアコン
    TV・通信 光ファイバー、CATVインターネット、ケーブルTV、CS、BS端子
    その他 宅配BOX、バルコニー、駐輪場、エレベーター
    契約期間 2年 現況 空家
    条件等 入居可能時期 相談
    仲介手数料 1.1ヶ月    
    更新料 新賃料 1ヶ月 物件番号 1189312214
    情報公開日 2025年12月4日 次回更新予定日 2025年12月29日
    ケータイ用バーコード

    QRコード

    スマートフォンでこの物件を見る
    スマートフォンからもこの物件をご覧になれます。
    ※「-」と表示されている項目については、情報提供会社にご確認ください。

    この物件の周辺情報

    周辺施設 イトーヨーカドー武蔵境店
    距離 300m
    周辺施設 業務スーパー武蔵境店
    距離 68m
    周辺施設 クイーンズ伊勢丹武蔵境店
    距離 302m
    周辺施設 セブンイレブン武蔵境1丁目店
    距離 84m
    周辺施設 マクドナルド武蔵境北口店
    距離 112m
    周辺施設 ゆうちょ銀行本店イトーヨーカドー武蔵境店内出張所
    距離 300m

    クイックお問い合わせ

    ここから簡単にお問い合わせをすることができます。
    (SSLでの暗号化での送信を希望されるお客さまは こちら よりお問い合わせください)

    お問い合わせ内容(必須)
    お名前(必須) 姓  名 
    メールアドレス(必須)
    ※携帯電話のメールアドレスをご入力される方はこちらをご確認ください
    電話番号(必須)
    - -

    ※入力いただいた電話番号へSMSまたは音声でパスワードをご連絡します。

    携帯電話の番号をご入力の方へ

    携帯電話の番号をご入力の方へ
    確認画面にて送信ボタンをクリックするとSMSが携帯電話に届きます。
    そのSMSに記載のパスワード(認証番号)を入力し、お問い合わせを完了してください。
    尚、SMSの送信者番号は 0005 202 760 となります。
    これはアットホームの固定番号です。

    備考欄 希望条件、物件案内希望日、質問などがございましたらご記入ください。
    お問い合わせを行う前に「個人情報の取り扱いについて」を必ずお読みください。
    「個人情報の取り扱いについて」に同意いただいた場合は「上記にご同意の上 確認画面へ進む」のボタンをクリックしてください。

    個人情報の取り扱いについて

    皆さまが送付された個人情報はアットホーム(株)のサーバを経由し、お問い合わせ先の不動産会社にメールまたはFAXにて転送されるためアットホーム(株)にも保管されます。アットホーム(株)で保管された個人情報の取り扱いについては、【こちら】をご覧ください。
    また、本画面でご記入いただいた個人情報は、お問い合わせ先の不動産会社でも保管します。 お問い合わせ先の不動産会社が保管する個人情報の取り扱いについては、不動産会社に直接お問い合わせください。

    情報提供会社

    情報提供会社

    リロの不動産 (株)日商ベックス 代々木店

    国土交通大臣免許(10)第3273号

    交通:
    JR山手線/代々木駅 徒歩3分
    東京都渋谷区代々木1丁目45-1 日商代々木ビル
    TEL:
    03-3379-7744
    FAX:
    03-3376-2256
    所属団体:
    (一社)全国住宅産業協会会員
    (公社)首都圏不動産公正取引協議会加盟

    取引態様:仲介

    • 会社情報
    • 00420543
    スマートフォンで
    この不動産会社を見る
    QRコード
    • とりあえず保存
    • お問い合わせ
    • 提携サイト等より掲載されている物件情報につきましては、不動産会社詳細情報にリンクされていないものがあります。
    • 物件に関するお問合せは、物件詳細ページの「情報提供会社」に表示されている不動産会社へ直接お願いいたします。
    • 間取図は、現況を優先させていただきます。
    • 映像は物件の一部を撮影したものです。物件の契約にあたっての最終判断はご自身の判断に基づいて行ってください。
    • 仲介手数料について仲介手数料

    アットホームは物件情報の適正化に努めております。 内容に誤りがある場合にはこちらへご連絡ください。

    【埼玉住まい情報】では、日本全国の物件から賃貸マンションや賃貸アパート・賃貸一戸建て等の賃貸住宅情報、新築マンション・分譲マンションや中古マンション等の売買マンション情報、新築一戸建てや中古一戸建てなどの戸建住宅、 土地など、総合的な不動産住宅情報検索サービスを提供致します。
    【埼玉住まい情報】から、選りすぐりの不動産物件を探してみましょう。

    【免責事項】
    このコーナーの運営はアットホーム株式会社(https://www.athome.co.jp/)が行っています。
    このコーナーに掲載している物件情報は、「アットホーム不動産情報ネットワーク」に加盟する不動産会社等(情報提供元)から提供されています。信頼性の高い情報提供が行えるよう、最大限の努力をしておりますが、その内容を保証するものではありません。 利用者のみなさまと各情報提供元との取引に起因する損害および情報が掲載されたことに起因する損害等については、株式会社イーシティ埼玉、およびアットホームは一切責任を負いません。
    各物件情報の内容や画像等はすべて現況を優先させていただきます。
    お取引等(お取引の準備、資金調達等を含みます)の際には、内容や契約条件等について、各情報提供元より十分な説明を受け、ご自身でご確認の上、判断してください。
    このコーナーへの物件情報のご掲載、その他不動産業務ソリューション等についての不動産会社様のお問合せはこちらからお願いいたします。

    物件画像: