不動産 賃貸 マンション等の住宅情報:埼玉住まい情報


東京都文京区白山1丁目(春日駅)の賃貸:物件詳細

  • 物件詳細
  • 情報の見方
  • 印刷用画面
交通
所在地
駅徒歩 賃料
管理費等
敷金/保証金
礼金
間取り
面積
物件種目
築年月

都営三田線/春日

東京都文京区白山1丁目

7分

9.7万円

15,000円

なし / なし

1ヶ月

1K

20.94m²

賃貸マンション

2005年10月(築20年3ヶ月)

おすすめPOINTペット相談、分譲タイプ、常時ゴミ出し可能、角部屋、IT重説対応物件

おすすめコメント  スタッフ: E.Y

新生活を失敗せず、スタートさせたいならこちらの「スカイコート後楽園壱番館」はいかがでしょうか。すぐ近く(徒歩6分)には富坂警察署 白山交番もあります。収納はクロゼット・シューズボックスなどが備え付け

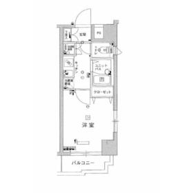
間取図

間取図

外観

外観

<
その他の画像
  • リビング
  • キッチン
  • バス/シャワー
  • トイレ
  • 室内
  • 玄関
  • 洗面
  • 設備
  • 設備
  • 玄関
  • エントランス
  • 共有部分
  • その他
  • 公園
  • その他
  • ショッピング施設
>
    • とりあえず保存
    • お問い合わせ
    交通

    都営三田線 春日駅 徒歩7分

    その他の交通

    都営大江戸線 春日駅 徒歩7分

    東京メトロ丸ノ内線 後楽園駅 徒歩9分

    所在地 東京都文京区白山1丁目
    物件種目 賃貸マンション
    賃料 9.7万円 管理費等 15,000円
    敷金 / 保証金 なし / なし 礼金 1ヶ月
    敷引 保証金償却
    その他一時金 24時間入居サポート:16,500円、鍵交換代等:19,800円~ 保険等 要 2年 18,000円
    維持費等 クレジットカード決済 初期費用可
    間取り 1K(洋6、K2) 専有面積 20.94m²
    築年月 2005年10月(築20年3ヶ月) 階建 / 階 14階建 / 7階
    建物構造 SRC 総戸数
    主要採光面 西 駐車場
    バイク置き場 駐輪場 有 無料
    建物名・部屋番号 スカイコート後楽園壱番館 702 ペット 相談
    リフォーム履歴
    リノベーション履歴
    備考
    賃貸保証等:加入要(初回、総賃料の50% 次年度以降10000円/年)
    管理形態/管理員の勤務形態:-/-
    IT重説対応物件
    富坂警察署 白山交番が455mのところにあります。収納はシューズボックス・クロゼットなど豊富なので、衣類や履き物の整理がしやすく便利です。快適な暮らしがしたいとお考えの方に、ぜひご紹介したい街があります。それは文京区エリアです。住環境が整っているので、不便さをあまり感じない生活が可能です。ぜひお気軽にご連絡下さい。
    短期解約違約金有/ペット相談可
    エネルギー消費性能
    断熱性能
    目安光熱費
    バス・トイレ バス・トイレ別、浴室乾燥機、シャワー、温水洗浄便座、トイレ
    キッチン システムキッチン、2口コンロ、ガスコンロ可
    セキュリティー モニター付オートロック、オートロック、モニター付インターホン
    収納 収納スペース、クローゼット、シューズボックス
    設備・サービス 室内洗濯機置場、洗濯機置場、都市ガス給湯、給湯、フローリング、都市ガス、エアコン、照明器具
    TV・通信 インターネット対応、ケーブルTV、CS、BS端子
    その他 宅配BOX、バルコニー、駐輪場、エレベーター
    契約期間 2年 現況 居住中
    条件等 入居可能時期 2025年12月下旬予定
    更新料 新賃料 1ヶ月 物件番号 1189313216
    情報公開日 2025年12月3日 次回更新予定日 2025年12月24日
    ケータイ用バーコード

    QRコード

    スマートフォンでこの物件を見る
    スマートフォンからもこの物件をご覧になれます。
    ※「-」と表示されている項目については、情報提供会社にご確認ください。

    この物件の周辺情報

    周辺施設 東京ドームシティ アトラクションズ
    距離 1302m
    周辺施設 礫川公園
    距離 1044m
    周辺施設 東京ドーム天然温泉 Spa LaQua
    距離 1088m
    周辺施設 メトロ・エム後楽園
    距離 1070m

    クイックお問い合わせ

    ここから簡単にお問い合わせをすることができます。
    (SSLでの暗号化での送信を希望されるお客さまは こちら よりお問い合わせください)

    お問い合わせ内容(必須)
    お名前(必須) 姓  名 
    メールアドレス(必須)
    ※携帯電話のメールアドレスをご入力される方はこちらをご確認ください
    電話番号(必須)
    - -

    ※入力いただいた電話番号へSMSまたは音声でパスワードをご連絡します。

    携帯電話の番号をご入力の方へ

    携帯電話の番号をご入力の方へ
    確認画面にて送信ボタンをクリックするとSMSが携帯電話に届きます。
    そのSMSに記載のパスワード(認証番号)を入力し、お問い合わせを完了してください。
    尚、SMSの送信者番号は 0005 202 760 となります。
    これはアットホームの固定番号です。

    備考欄 希望条件、物件案内希望日、質問などがございましたらご記入ください。
    お問い合わせを行う前に「個人情報の取り扱いについて」を必ずお読みください。
    「個人情報の取り扱いについて」に同意いただいた場合は「上記にご同意の上 確認画面へ進む」のボタンをクリックしてください。

    個人情報の取り扱いについて

    皆さまが送付された個人情報はアットホーム(株)のサーバを経由し、お問い合わせ先の不動産会社にメールまたはFAXにて転送されるためアットホーム(株)にも保管されます。アットホーム(株)で保管された個人情報の取り扱いについては、【こちら】をご覧ください。
    また、本画面でご記入いただいた個人情報は、お問い合わせ先の不動産会社でも保管します。 お問い合わせ先の不動産会社が保管する個人情報の取り扱いについては、不動産会社に直接お問い合わせください。

    情報提供会社

    情報提供会社

    ハウス・トゥ・ハウス・ネットサービス(株) 駒込店

    国土交通大臣免許(4)第7400号

    交通:
    JR山手線/駒込駅 徒歩1分
    東京都文京区本駒込6丁目24-4 アヴァンツァーレ文京本駒込
    TEL:
    03-5981-7077
    FAX:
    03-5981-7078
    所属団体:
    (公社)全日本不動産協会会員
    (公社)首都圏不動産公正取引協議会加盟

    取引態様:仲介

    • 会社情報
    • 00277080
    スマートフォンで
    この不動産会社を見る
    QRコード
    • とりあえず保存
    • お問い合わせ
    • 提携サイト等より掲載されている物件情報につきましては、不動産会社詳細情報にリンクされていないものがあります。
    • 物件に関するお問合せは、物件詳細ページの「情報提供会社」に表示されている不動産会社へ直接お願いいたします。
    • 間取図は、現況を優先させていただきます。
    • 映像は物件の一部を撮影したものです。物件の契約にあたっての最終判断はご自身の判断に基づいて行ってください。
    • 仲介手数料について仲介手数料

    アットホームは物件情報の適正化に努めております。 内容に誤りがある場合にはこちらへご連絡ください。

    【埼玉住まい情報】では、日本全国の物件から賃貸マンションや賃貸アパート・賃貸一戸建て等の賃貸住宅情報、新築マンション・分譲マンションや中古マンション等の売買マンション情報、新築一戸建てや中古一戸建てなどの戸建住宅、 土地など、総合的な不動産住宅情報検索サービスを提供致します。
    【埼玉住まい情報】から、選りすぐりの不動産物件を探してみましょう。

    【免責事項】
    このコーナーの運営はアットホーム株式会社(https://www.athome.co.jp/)が行っています。
    このコーナーに掲載している物件情報は、「アットホーム不動産情報ネットワーク」に加盟する不動産会社等(情報提供元)から提供されています。信頼性の高い情報提供が行えるよう、最大限の努力をしておりますが、その内容を保証するものではありません。 利用者のみなさまと各情報提供元との取引に起因する損害および情報が掲載されたことに起因する損害等については、株式会社イーシティ埼玉、およびアットホームは一切責任を負いません。
    各物件情報の内容や画像等はすべて現況を優先させていただきます。
    お取引等(お取引の準備、資金調達等を含みます)の際には、内容や契約条件等について、各情報提供元より十分な説明を受け、ご自身でご確認の上、判断してください。
    このコーナーへの物件情報のご掲載、その他不動産業務ソリューション等についての不動産会社様のお問合せはこちらからお願いいたします。

    物件画像: