兵庫県明石市宮の上(林崎松江海岸駅)の賃貸:物件詳細
交通 所在地 |
駅徒歩 |
賃料 管理費等 |
敷金/保証金 礼金 |
間取り 面積 |
物件種目 築年月 |
|
山陽電鉄本線/林崎松江海岸
兵庫県明石市宮の上
|
8分
|
6.84万円
4,000円
|
2ヶ月 / なし
なし
|
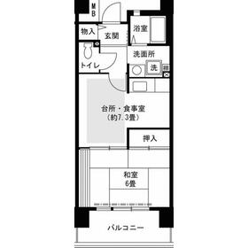
1DK
37.32m²
|
賃貸マンション
2003年3月(築22年10ヶ月)
|
楽器相談、二人入居可、閑静な住宅街、保証人不要
|
|
間取図
|
外観
落ち着いた雰囲気の外観です
|
<
その他の画像
>
|
| 交通 | 山陽電鉄本線 林崎松江海岸駅 徒歩8分 |
|---|
| その他の交通 | JR山陽本線 明石駅 【バス】 7分 宮の上(兵庫県) 停歩3分 |
| 所在地 |
兵庫県明石市宮の上
|
| 物件種目 |
賃貸マンション |
| 賃料 |
6.84万円 |
管理費等 |
4,000円 |
| 敷金 / 保証金 |
2ヶ月 / なし |
礼金 |
なし |
| 敷引 |
- |
保証金償却 |
- |
| その他一時金 |
なし |
保険等 |
不要 |
| 維持費等 |
- |
| 間取り |
1DK(和6、LD7.3) |
専有面積 |
37.32m² |
| 築年月 |
2003年3月(築22年10ヶ月)
|
階建 / 階 |
11階建 / 6階 |
| 建物構造 |
RC |
総戸数 |
- |
| 主要採光面 |
南東 |
駐車場 |
有 9,680円/月 |
| バイク置き場 |
有 |
駐輪場 |
有 |
| 建物名・部屋番号 |
サンラフレ明石 |
ペット |
-
|
| リフォーム履歴 |
- |
| リノベーション履歴 |
- |
| 備考 |
管理形態/管理員の勤務形態:-/日勤
駐車場敷金:2.00ヶ月
バルコニー:6.88m²
外壁コンクリート、管理人日勤
家賃帯は58,100円から67,000円です。 広さや階数などによって異なります。 室内設備は洗面所独立・浴室乾燥機などが揃っており、とても充実しています。共用部にはエレベータ・バイク置場などが揃っております。通風良好な物件はいつでも気持ちの良い空間です。閑静な住宅地にある物件です。明石市エリアや山陽電鉄本線林崎松江海岸付近できっと素敵なお部屋が見つかることでしょう。
共用部にはエレベータ・バイク置場などが揃っております。室内設備は浴室乾燥機・洗面所独立などが揃っており、とても充実しています。自走式の駐車場がある物件です。こちらの物件は追い焚き機能の付いた浴室になります。お家で楽器の練習をしたい方、ご相談応じます。明石市エリアや山陽電鉄本線林崎松江海岸付近でお部屋をお探しの方は、是非当社へお越し下さい。当社でなら、きっと希望にマッチしたお部屋が見つかります。
|
| エネルギー消費性能 |
- |
| 断熱性能 |
- |
| 目安光熱費 |
- |
| バス・トイレ |
バス・トイレ別、浴室乾燥機、追焚機能、洗面所独立、洗面所、洗面台、シャワー、トイレ |
| キッチン |
システムキッチン、3口以上コンロ、ガスコンロ可 |
| セキュリティー |
モニター付インターホン |
| 収納 |
収納スペース |
| 設備・サービス |
室内洗濯機置場、洗濯機置場、都市ガス給湯、給湯、フローリング、クッションフロア、都市ガス、エアコン |
| TV・通信 |
インターネット対応、光ファイバー、ケーブルTV、CS、BS端子 |
| その他 |
バイク置き場、バルコニー、駐輪場、エレベーター |
| 契約期間 |
1年 |
現況 |
空家 |
| 条件等 |
- |
入居可能時期 |
即時 |
| 更新料 |
- |
物件番号 |
1189482716 |
| 情報公開日 |
2025年12月3日 |
次回更新予定日 |
2025年12月31日 |
| ケータイ用バーコード |
- スマートフォンでこの物件を見る
- スマートフォンからもこの物件をご覧になれます。
|
※「-」と表示されている項目については、情報提供会社にご確認ください。
| 周辺施設 |
明石貴崎郵便局 |
| 距離 |
724m |
写真を見る |
| 周辺施設 |
山陽林崎松江海岸駅 |
| 距離 |
793m |
写真を見る |
ここから簡単にお問い合わせをすることができます。
(SSLでの暗号化での送信を希望されるお客さまは
こちら
よりお問い合わせください)
お問い合わせを行う前に
「個人情報の取り扱いについて」を必ずお読みください。
「個人情報の取り扱いについて」に同意いただいた場合は「上記にご同意の上 確認画面へ進む」のボタンをクリックしてください。
個人情報の取り扱いについて
皆さまが送付された個人情報はアットホーム(株)のサーバを経由し、お問い合わせ先の不動産会社にメールまたはFAXにて転送されるためアットホーム(株)にも保管されます。アットホーム(株)で保管された個人情報の取り扱いについては、【こちら】をご覧ください。
また、本画面でご記入いただいた個人情報は、お問い合わせ先の不動産会社でも保管します。 お問い合わせ先の不動産会社が保管する個人情報の取り扱いについては、不動産会社に直接お問い合わせください。
国土交通大臣免許(3)第8770号 |
|---|
- 交通:
- JR山陽本線/垂水駅 徒歩2分
- 兵庫県神戸市垂水区天ノ下町1-1 ウエステ垂水2F
- TEL:
- 078-647-8236
- FAX:
- 078-647-8238
- 所属団体:
- (一社)兵庫県宅地建物取引業協会会員(公社)近畿地区不動産公正取引協議会加盟
取引態様:仲介  - 50109040
|
- スマートフォンで
この不動産会社を見る

|
- 提携サイト等より掲載されている物件情報につきましては、不動産会社詳細情報にリンクされていないものがあります。
- 物件に関するお問合せは、物件詳細ページの「情報提供会社」に表示されている不動産会社へ直接お願いいたします。
- 間取図は、現況を優先させていただきます。
- 映像は物件の一部を撮影したものです。物件の契約にあたっての最終判断はご自身の判断に基づいて行ってください。
- 仲介手数料について

アットホームは物件情報の適正化に努めております。
内容に誤りがある場合にはこちらへご連絡ください。