東京都品川区上大崎3丁目(目黒駅)の賃貸:物件詳細
交通 所在地 |
駅徒歩 |
賃料 管理費等 |
敷金/保証金 礼金 |
間取り 面積 |
物件種目 築年月 |
|
JR山手線/目黒
東京都品川区上大崎3丁目
|
2分
|
22万円
5,000円
|
1ヶ月 / なし
1ヶ月
|
ワンルーム
31.36m²
|
賃貸マンション
2017年11月(築8年2ヶ月)
|
ペット相談、常時ゴミ出し可能、免震構造、制震構造、外観タイル張り、管理人常駐、IT重説対応物件、保証人不要
|
|
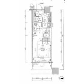
間取図
|
外観
きれいな外観です
|
<
その他の画像
>
|
| 交通 | JR山手線 目黒駅 徒歩2分 |
|---|
| その他の交通 | 東急目黒線 不動前駅 徒歩12分 都営浅草線 五反田駅 徒歩12分 |
| 所在地 |
東京都品川区上大崎3丁目
|
| 物件種目 |
賃貸マンション |
| 賃料 |
22万円 |
管理費等 |
5,000円 |
| 敷金 / 保証金 |
1ヶ月 / なし |
礼金 |
1ヶ月 |
| 敷引 |
- |
保証金償却 |
- |
| その他一時金 |
なし |
保険等 |
要 |
| 維持費等 |
- |
| 間取り |
ワンルーム(洋11.2) |
専有面積 |
31.36m² |
| 築年月 |
2017年11月(築8年2ヶ月)
|
階建 / 階 |
40階建 / 9階 |
| 建物構造 |
SRC |
総戸数 |
- |
| 主要採光面 |
西 |
駐車場 |
近有 40,000円/月 |
| バイク置き場 |
- |
駐輪場 |
有 |
| 建物名・部屋番号 |
目黒第一マンションズ |
ペット |
相談 |
| アピールポイント |
室内設備は浴室乾燥機・洗面化粧台などが揃っているので、快適に過ごしやすいお部屋になります。収納はクロゼット・全居室収納などが備え付けられているので、衣類や日用品の収納に重宝します。共用部には宅配ボックス・ゴミ出し24時間OKなど様々な設備やサービスが揃っているので便利です。セキュリティ面は、TVインターホン・オートロックなどを設置しているので安全面でも優れております。コンロとシンクの間に隙間がなく、掃除が簡単なためキッチンを綺麗に保ちやすいシステムキッチンを備えております。駐輪場が付いている物件です。二口コンロが付いているマンションです。不法投棄やいたずらを防止して入居者が快適に暮らせるように、防犯カメラがあります。平成29年築の物件です。お車を所有されてる方に。近隣に駐車場もあります。ワンルームの物件なので、一人暮らしの方にもおすすめです。 |
| リフォーム履歴 |
- |
| リノベーション履歴 |
- |
| 備考 |
賃貸保証等:加入要(初回 賃料総額の40%~)
管理形態/管理員の勤務形態:-/常駐
IT重説対応物件
共用部にはゴミ出し24時間OK・宅配ボックスなどが揃っており、とても充実しています。セキュリティ面は、オートロック・TVインターホンなど充実しているので、防犯対策もばっちりです。室内設備は浴室乾燥機・洗面化粧台など大変充実しております。収納はクロゼット・全居室収納など豊富なので、衣類や履き物の整理がしやすく便利です。追い焚き機能があり、寒さの厳しい日でも体の芯から温められます。車をよく利用する方も安心、近隣に駐車場があります。防犯カメラが設置されているため犯罪への抑止力となり、安全性が高くなります。電車でのアクセスを快適なものにする、2駅利用可能な物件です。こちらは現在空家の物件です。BS・CSでは、色々なジャンルの番組が視聴できます。1人暮らしはおしゃれな1Rでいかがでしょうか。
|
| エネルギー消費性能 |
- |
| 断熱性能 |
- |
| 目安光熱費 |
- |
| バス・トイレ |
バス・トイレ別、浴室乾燥機、オートバス、追焚機能、温水洗浄便座、トイレ |
| キッチン |
システムキッチン、2口コンロ、ガスコンロ可 |
| セキュリティー |
モニター付オートロック、オートロック、モニター付インターホン、ディンプルキー、ダブルロックドア、防犯カメラ |
| 収納 |
全居室収納、収納スペース、クローゼット |
| 設備・サービス |
全居室エアコン、室内洗濯機置場、洗濯機置場、全居室フローリング、フローリング、都市ガス、エアコン、冷房 |
| TV・通信 |
インターネット対応、CATVインターネット、ケーブルTV、CS、BS端子 |
| その他 |
宅配BOX、エレベーター2基以上、バルコニー、駐輪場、エレベーター |
| 契約期間 |
2年 |
現況 |
空家 |
| 条件等 |
定期借家 |
入居可能時期 |
相談 |
| 更新料 |
新賃料 1ヶ月 |
物件番号 |
1189805316 |
| 情報公開日 |
2025年12月3日 |
次回更新予定日 |
2025年12月31日 |
| ケータイ用バーコード |
- スマートフォンでこの物件を見る
- スマートフォンからもこの物件をご覧になれます。
|
※「-」と表示されている項目については、情報提供会社にご確認ください。
| 周辺施設 |
まなびの森保育園目黒 |
| 距離 |
854m |
写真を見る |
| 周辺施設 |
回し寿司活目黒店 |
| 距離 |
123m |
写真を見る |
| 周辺施設 |
プレッセ 目黒店 |
| 距離 |
153m |
写真を見る |
| 周辺施設 |
成城石井 アトレ目黒2店 |
| 距離 |
177m |
写真を見る |
| 周辺施設 |
TOKYU SQUARE GOTANDA(五反田東急スクエア) |
| 距離 |
1226m |
写真を見る |
| 周辺施設 |
セブンイレブン 目黒セントラルスクエア店 |
| 距離 |
62m |
写真を見る |
| 周辺施設 |
葵薬局 目黒駅前店 目黒セントラルスクエア |
| 距離 |
126m |
写真を見る |
| 周辺施設 |
武藤クリニック |
| 距離 |
28m |
写真を見る |
ここから簡単にお問い合わせをすることができます。
(SSLでの暗号化での送信を希望されるお客さまは
こちら
よりお問い合わせください)
お問い合わせを行う前に
「個人情報の取り扱いについて」を必ずお読みください。
「個人情報の取り扱いについて」に同意いただいた場合は「上記にご同意の上 確認画面へ進む」のボタンをクリックしてください。
個人情報の取り扱いについて
皆さまが送付された個人情報はアットホーム(株)のサーバを経由し、お問い合わせ先の不動産会社にメールまたはFAXにて転送されるためアットホーム(株)にも保管されます。アットホーム(株)で保管された個人情報の取り扱いについては、【こちら】をご覧ください。
また、本画面でご記入いただいた個人情報は、お問い合わせ先の不動産会社でも保管します。 お問い合わせ先の不動産会社が保管する個人情報の取り扱いについては、不動産会社に直接お問い合わせください。
東京都知事免許(1)第107337号 |
|---|
- 交通:
- JR山手線/新橋駅 徒歩5分
- 東京都中央区銀座8丁目11-1 GINZA GS BLD.2 7階
- TEL:
- 03-6281-4770
- FAX:
- 03-6281-4771
- 所属団体:
- (公社)東京都宅地建物取引業協会会員(公社)首都圏不動産公正取引協議会加盟
取引態様:仲介  - 00271811
|
- スマートフォンで
この不動産会社を見る

|
- 提携サイト等より掲載されている物件情報につきましては、不動産会社詳細情報にリンクされていないものがあります。
- 物件に関するお問合せは、物件詳細ページの「情報提供会社」に表示されている不動産会社へ直接お願いいたします。
- 間取図は、現況を優先させていただきます。
- 映像は物件の一部を撮影したものです。物件の契約にあたっての最終判断はご自身の判断に基づいて行ってください。
- 仲介手数料について

アットホームは物件情報の適正化に努めております。
内容に誤りがある場合にはこちらへご連絡ください。