兵庫県神戸市兵庫区新開地5丁目(神戸駅)の賃貸:物件詳細
交通 所在地 |
駅徒歩 |
賃料 管理費等 |
敷金/保証金 礼金 |
間取り 面積 |
物件種目 築年月 |
|
JR東海道本線/神戸
兵庫県神戸市兵庫区新開地5丁目
|
9分
|
6.7万円
10,000円
|
なし / なし
1ヶ月
|
1K
27.84m²
|
賃貸マンション
2012年9月(築13年4ヶ月)
|
IT重説対応物件
|
|
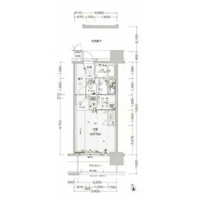
間取図
広めの使いやすい間取りですね♪
|
外観
外観もきれいです
|
| 交通 | JR東海道本線 神戸駅 徒歩9分 |
|---|
| その他の交通 | 神戸高速東西線 新開地駅 徒歩7分 神戸電鉄有馬線 湊川駅 徒歩12分 |
| 所在地 |
兵庫県神戸市兵庫区新開地5丁目
|
| 物件種目 |
賃貸マンション |
| 賃料 |
6.7万円 |
管理費等 |
10,000円 |
| 敷金 / 保証金 |
なし / なし |
礼金 |
1ヶ月 |
| 敷引 |
- |
保証金償却 |
- |
| その他一時金 |
なし、鍵交換代等:27,500円~ |
保険等 |
要 2年 13,000円 |
| 維持費等 |
- |
クレジットカード決済 |
初期費用可 |
| 間取り |
1K |
専有面積 |
27.84m² |
| 築年月 |
2012年9月(築13年4ヶ月)
|
階建 / 階 |
15階建 / 3階 |
| 建物構造 |
RC |
総戸数 |
- |
| 主要採光面 |
|
駐車場 |
近有 25,000円/月 |
| バイク置き場 |
- |
駐輪場 |
有 |
| 建物名・部屋番号 |
エストーネハーバーランド 303 |
ペット |
-
|
| アピールポイント |
共用部には宅配ボックスが備え付けられているため、好きなタイミングで荷物を受け取ることができます。化粧水や化粧品なども片付けられるのが洗面化粧台のメリットです。敷地内には使いやすいごみ置き場もございます。1Kの物件です。衣類の収納にご利用いただけるクロゼット付きの物件です。地上15階建ての物件は、弊社イチオシの物件です。防犯対策もバッチリなマンションタイプの物件です。駐車場料金が月額25000円の物件です。風通しが良好なので、夏も涼しい風がはいってきます。 |
| リフォーム履歴 |
- |
| リノベーション履歴 |
- |
| 備考 |
賃貸保証等:加入要(初回保証料50%から)
管理形態/管理員の勤務形態:-/-
IT重説対応物件
こだわりで選びたい方におすすめ。神戸市兵庫区エリアで住まいをお探しなら「エストーネハーバーランド」。徒歩12分の場所に神戸市立湊小学校があります。住みやすい環境が嬉しい賃貸物件です。神戸市兵庫区での新生活を、東海道本線神戸周辺で叶えましょう。078-855-7936からいつでもfrancにご連絡下さい。
お手入れしやすくなっているので綺麗な状態を保ちやすい洗面化粧台が付いています。宅配ボックスに鍵をかけることができるので、置き配よりも盗難の心配がなくなります。敷地内にゴミ置き場が備え付けられているので、遠くまで運ぶ必要がなくゴミ出しが楽になります。予定外の事態が起こりがちな新居選び、入居日などもぜひ一度ご相談ください。収納豊富なマンションで、利便性の高い得する機能をご利用ください。犯罪への抑止力やセキュリティの強化のために防犯カメラが付いています。地上15階建てのマンションをご紹介。こちらの物件はマンションです。忙しい時でも効率よく料理したい人におすすめな、2口コンロを設置しております。
|
| エネルギー消費性能 |
- |
| 断熱性能 |
- |
| 目安光熱費 |
- |
| バス・トイレ |
バス・トイレ別、トイレ |
| キッチン |
2口コンロ |
| セキュリティー |
防犯カメラ |
| 収納 |
収納スペース、クローゼット |
| 設備・サービス |
室内洗濯機置場、洗濯機置場、都市ガス給湯、給湯、都市ガス |
| TV・通信 |
- |
| その他 |
宅配BOX、駐輪場、エレベーター |
| 契約期間 |
2年 |
現況 |
居住中 |
| 条件等 |
- |
入居可能時期 |
相談 |
| 更新料 |
- |
物件番号 |
1190041416 |
| 情報公開日 |
2025年12月4日 |
次回更新予定日 |
2025年12月18日 |
| ケータイ用バーコード |
- スマートフォンでこの物件を見る
- スマートフォンからもこの物件をご覧になれます。
|
※「-」と表示されている項目については、情報提供会社にご確認ください。
ここから簡単にお問い合わせをすることができます。
(SSLでの暗号化での送信を希望されるお客さまは
こちら
よりお問い合わせください)
お問い合わせを行う前に
「個人情報の取り扱いについて」を必ずお読みください。
「個人情報の取り扱いについて」に同意いただいた場合は「上記にご同意の上 確認画面へ進む」のボタンをクリックしてください。
個人情報の取り扱いについて
皆さまが送付された個人情報はアットホーム(株)のサーバを経由し、お問い合わせ先の不動産会社にメールまたはFAXにて転送されるためアットホーム(株)にも保管されます。アットホーム(株)で保管された個人情報の取り扱いについては、【こちら】をご覧ください。
また、本画面でご記入いただいた個人情報は、お問い合わせ先の不動産会社でも保管します。 お問い合わせ先の不動産会社が保管する個人情報の取り扱いについては、不動産会社に直接お問い合わせください。
国土交通大臣免許(1)第11032号 |
|---|
- 交通:
- JR東海道本線/三ノ宮駅 徒歩5分
- 兵庫県神戸市中央区二宮町4丁目7-7 101号
- TEL:
- 078-855-7936
- FAX:
- 078-855-7937
- 所属団体:
- (公社)全日本不動産協会会員(公社)近畿地区不動産公正取引協議会加盟
取引態様:仲介  - 50106463
|
- スマートフォンで
この不動産会社を見る

|
- 提携サイト等より掲載されている物件情報につきましては、不動産会社詳細情報にリンクされていないものがあります。
- 物件に関するお問合せは、物件詳細ページの「情報提供会社」に表示されている不動産会社へ直接お願いいたします。
- 間取図は、現況を優先させていただきます。
- 映像は物件の一部を撮影したものです。物件の契約にあたっての最終判断はご自身の判断に基づいて行ってください。
- 仲介手数料について

アットホームは物件情報の適正化に努めております。
内容に誤りがある場合にはこちらへご連絡ください。