兵庫県神戸市垂水区王居殿2丁目(滝の茶屋駅)の賃貸:物件詳細
交通 所在地 |
駅徒歩 |
賃料 管理費等 |
敷金/保証金 礼金 |
間取り 面積 |
物件種目 築年月 |
|
山陽電鉄本線/滝の茶屋
兵庫県神戸市垂水区王居殿2丁目
|
7分
|
6.2万円
5,000円
|
なし / なし
1ヶ月
|
1LDK
34.79m²
|
賃貸アパート
2021年7月(築4年6ヶ月)
|
デザイナーズ、角部屋、閑静な住宅街、IT重説対応物件
|
|
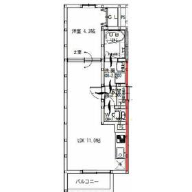
間取図
広めの使いやすい間取りですね♪
|
外観
外観もきれいです
|
| 交通 | 山陽電鉄本線 滝の茶屋駅 徒歩7分 |
|---|
| その他の交通 | 山陽電鉄本線 山陽塩屋駅 徒歩16分 山陽電鉄本線 東垂水駅 徒歩17分 |
| 所在地 |
兵庫県神戸市垂水区王居殿2丁目
|
| 物件種目 |
賃貸アパート |
| 賃料 |
6.2万円 |
管理費等 |
5,000円 |
| 敷金 / 保証金 |
なし / なし |
礼金 |
1ヶ月 |
| 敷引 |
- |
保証金償却 |
- |
| その他一時金 |
なし、鍵交換代等:22,000円~ |
保険等 |
要 2年 17,000円 |
| 維持費等 |
- |
クレジットカード決済 |
初期費用可 |
| 間取り |
1LDK |
専有面積 |
34.79m² |
| 築年月 |
2021年7月(築4年6ヶ月)
|
階建 / 階 |
3階建 / 1階 |
| 建物構造 |
木造 |
総戸数 |
- |
| 主要採光面 |
南東 |
駐車場 |
近有 16,500円/月 |
| バイク置き場 |
無 |
駐輪場 |
有 |
| 建物名・部屋番号 |
ミラージュ垂水 101 |
ペット |
-
|
| アピールポイント |
ドアを開けたり直接会話しなくてもモニター越しに来訪者を確認できるモニター付きインターホンで防犯対策が可能です。室内設備は浴室乾燥機・洗面化粧台などが揃っており、とても充実しています。非対面での荷物受け取りができる宅配ボックス付きのマンションです。収納はクロゼット・シューズボックスなど豊富なので、広々と空間を利用することも可能です。新しい日々を送るにふさわしい、きれいな室内です。家賃6.2万円でおすすめの物件です。このマンションはCATV対応の為、簡単な契約で視聴可能です。システムキッチンなので、お掃除も楽々です。パソコンが使える快適な生活、インターネットの回線を導入。パーキングスペース利用料金16500円。こちらの物件から、100mの距離に駐車場があります。 |
| リフォーム履歴 |
- |
| リノベーション履歴 |
- |
| 備考 |
賃貸保証等:加入要(初回保証料50%から)
管理形態/管理員の勤務形態:-/-
IT重説対応物件
室内設備はシャッター・バストイレ別など大変充実しております。閑静な住宅地にある物件です。ネットの回線を繋げているのでパソコンが使える生活。物件の近くに駐車場があるので、車をお持ちの方はご利用ください。初期費用削減に期待できる、敷金ゼロ円の物件です。できるだけ早めに不動産情報を集めたい方は当社スタッフまでご連絡ください。地域の不動産情報をいち早くお届けします。
室内設備は浴室乾燥機・洗面化粧台など豊富に揃っており、過ごしやすいお部屋になっております。知らない人が来た時でも玄関を開けずに顔を確認できるモニター付きインターホンが付いております。共用部には宅配ボックスを設置しているため、急なお出かけや不在の際にも荷物を受け取ることが可能です。収納はシューズボックス・クロゼットなど豊富なので、衣類や履き物の整理がしやすく便利です。間取りが1LDKなのでリビングで広々と楽しい時間を過ごせます。入居時からインターネット環境が整っているため、ネット回線の契約がいらず契約の手続きがめんどくさいと感じる方にもおすすめです。共用部に防犯カメラがある、いざという時も録画内容を利用できる安心感があります。駐車
|
| エネルギー消費性能 |
- |
| 断熱性能 |
- |
| 目安光熱費 |
- |
| バス・トイレ |
バス・トイレ別、浴室乾燥機、シャワー付洗面化粧台、温水洗浄便座、トイレ |
| キッチン |
システムキッチン、2口コンロ |
| セキュリティー |
モニター付インターホン、ディンプルキー、防犯カメラ、シャッター雨戸 |
| 収納 |
収納スペース、クローゼット、シューズボックス |
| 設備・サービス |
プロパンガス給湯、給湯、プロパンガス |
| TV・通信 |
インターネット対応、インターネット使用料無料、ケーブルTV |
| その他 |
宅配BOX、駐輪場 |
| 契約期間 |
2年 |
現況 |
空家 |
| 条件等 |
- |
入居可能時期 |
即時 |
| 更新料 |
- |
物件番号 |
1190041816 |
| 情報公開日 |
2025年12月4日 |
次回更新予定日 |
2026年1月1日 |
| ケータイ用バーコード |
- スマートフォンでこの物件を見る
- スマートフォンからもこの物件をご覧になれます。
|
※「-」と表示されている項目については、情報提供会社にご確認ください。
ここから簡単にお問い合わせをすることができます。
(SSLでの暗号化での送信を希望されるお客さまは
こちら
よりお問い合わせください)
お問い合わせを行う前に
「個人情報の取り扱いについて」を必ずお読みください。
「個人情報の取り扱いについて」に同意いただいた場合は「上記にご同意の上 確認画面へ進む」のボタンをクリックしてください。
個人情報の取り扱いについて
皆さまが送付された個人情報はアットホーム(株)のサーバを経由し、お問い合わせ先の不動産会社にメールまたはFAXにて転送されるためアットホーム(株)にも保管されます。アットホーム(株)で保管された個人情報の取り扱いについては、【こちら】をご覧ください。
また、本画面でご記入いただいた個人情報は、お問い合わせ先の不動産会社でも保管します。 お問い合わせ先の不動産会社が保管する個人情報の取り扱いについては、不動産会社に直接お問い合わせください。
国土交通大臣免許(1)第11032号 |
|---|
- 交通:
- JR東海道本線/三ノ宮駅 徒歩5分
- 兵庫県神戸市中央区二宮町4丁目7-7 101号
- TEL:
- 078-855-7936
- FAX:
- 078-855-7937
- 所属団体:
- (公社)全日本不動産協会会員(公社)近畿地区不動産公正取引協議会加盟
取引態様:仲介  - 50106463
|
- スマートフォンで
この不動産会社を見る

|
- 提携サイト等より掲載されている物件情報につきましては、不動産会社詳細情報にリンクされていないものがあります。
- 物件に関するお問合せは、物件詳細ページの「情報提供会社」に表示されている不動産会社へ直接お願いいたします。
- 間取図は、現況を優先させていただきます。
- 映像は物件の一部を撮影したものです。物件の契約にあたっての最終判断はご自身の判断に基づいて行ってください。
- 仲介手数料について

アットホームは物件情報の適正化に努めております。
内容に誤りがある場合にはこちらへご連絡ください。