東京都大田区千鳥2丁目(千鳥町駅)の賃貸:物件詳細
交通 所在地 |
駅徒歩 |
賃料 管理費等 |
敷金/保証金 礼金 |
間取り 面積 |
物件種目 築年月 |
|
東急池上線/千鳥町
東京都大田区千鳥2丁目
|
6分
|
13.5万円
20,000円
|
1ヶ月 / なし
1ヶ月
|
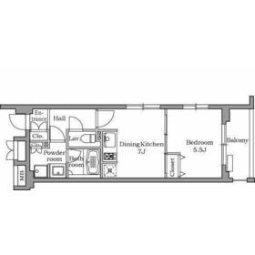
1DK
34.92m²
|
賃貸マンション
2006年9月(築19年6ヶ月)
|
ペット相談、IT重説対応物件、保証人不要
|
|
間取図
|
外観
|
<
その他の画像
>
|
| 交通 | 東急池上線 千鳥町駅 徒歩6分 |
|---|
| その他の交通 | 東急多摩川線 武蔵新田駅 徒歩7分 東急池上線 池上駅 徒歩11分 |
| 所在地 |
東京都大田区千鳥2丁目
|
| 物件種目 |
賃貸マンション |
| 賃料 |
13.5万円 |
管理費等 |
20,000円 |
| 敷金 / 保証金 |
1ヶ月 / なし |
礼金 |
1ヶ月 |
| 敷引 |
- |
保証金償却 |
- |
| その他一時金 |
入居者限定会員サービス:11,000円、鍵交換代等:33,000円~ |
保険等 |
要 2年 21,500円 |
| 維持費等 |
- |
| 間取り |
1DK(洋室5.5帖 DK7.0帖) |
専有面積 |
34.92m² |
| 築年月 |
2006年9月(築19年6ヶ月)
|
階建 / 階 |
5階建 / 4階 |
| 建物構造 |
RC |
総戸数 |
60戸 |
| 主要採光面 |
西 |
駐車場 |
有 33,000円/月 |
| バイク置き場 |
有 |
駐輪場 |
有 |
| 建物名・部屋番号 |
レジディア千鳥町 401 |
ペット |
相談 |
| アピールポイント |
★全物件!契約金カード払いで分割払い可能★ |
| リフォーム履歴 |
- |
| リノベーション履歴 |
- |
| 備考 |
賃貸保証等:加入要(初回契約時:40%、更新時:10,000円、月額:1,000円)
管理形態/管理員の勤務形態:-/巡回
IT重説対応物件、管理人巡回
★全物件!契約金カード払いで分割払い可能★
|
| エネルギー消費性能 |
- |
| 断熱性能 |
- |
| 目安光熱費 |
- |
| バス・トイレ |
バス・トイレ別、浴室乾燥機、洗面所独立、温水洗浄便座 |
| キッチン |
システムキッチン、2口コンロ、ガスコンロ付 |
| セキュリティー |
モニター付オートロック、オートロック、モニター付インターホン、防犯カメラ |
| 収納 |
クローゼット、シューズボックス |
| 設備・サービス |
室内洗濯機置場、フローリング、都市ガス、エアコン |
| TV・通信 |
インターネット対応、光ファイバー、ケーブルTV、CS、BS端子 |
| その他 |
宅配BOX、バイク置き場、駐輪場、エレベーター |
| 契約期間 |
2年 |
現況 |
空家 |
| 条件等 |
- |
入居可能時期 |
2026年2月下旬予定 |
| 更新料 |
新賃料 1ヶ月 |
物件番号 |
1190395718 |
| 情報公開日 |
2026年1月22日 |
次回更新予定日 |
2026年2月6日 |
| ケータイ用バーコード |
- スマートフォンでこの物件を見る
- スマートフォンからもこの物件をご覧になれます。
|
※「-」と表示されている項目については、情報提供会社にご確認ください。
| 周辺施設 |
サミットストア大田千鳥町店 |
| 距離 |
500m |
写真を見る |
| 周辺施設 |
まいばすけっと武蔵新田駅前店 |
| 距離 |
580m |
写真を見る |
| 周辺施設 |
セブンイレブン大田区千鳥2丁目店 |
| 距離 |
250m |
写真を見る |
| 周辺施設 |
ローソン千鳥一丁目店 |
| 距離 |
310m |
写真を見る |
| 周辺施設 |
くすりセイジョー武蔵新田店 |
| 距離 |
500m |
写真を見る |
| 周辺施設 |
ドラッグストアスマイル武蔵新田店 |
| 距離 |
660m |
写真を見る |
| 周辺施設 |
ドラッグストアスマイル武蔵新田店 |
| 距離 |
660m |
写真を見る |
ここから簡単にお問い合わせをすることができます。
(SSLでの暗号化での送信を希望されるお客さまは
こちら
よりお問い合わせください)
お問い合わせを行う前に
「個人情報の取り扱いについて」を必ずお読みください。
「個人情報の取り扱いについて」に同意いただいた場合は「上記にご同意の上 確認画面へ進む」のボタンをクリックしてください。
個人情報の取り扱いについて
皆さまが送付された個人情報はアットホーム(株)のサーバを経由し、お問い合わせ先の不動産会社にメールまたはFAXにて転送されるためアットホーム(株)にも保管されます。アットホーム(株)で保管された個人情報の取り扱いについては、【こちら】をご覧ください。
また、本画面でご記入いただいた個人情報は、お問い合わせ先の不動産会社でも保管します。 お問い合わせ先の不動産会社が保管する個人情報の取り扱いについては、不動産会社に直接お問い合わせください。
国土交通大臣免許(4)第7352号 |
|---|
- 交通:
- JR京浜東北線/川崎駅 徒歩3分
- 神奈川県川崎市川崎区駅前本町4-13 伊藤ビル2F
- TEL:
- 0120-69-7890
- FAX:
- 044-221-7501
- 所属団体:
- (公社)全日本不動産協会会員不動産公正取引協議会加盟
取引態様:仲介  - 00016880
|
- スマートフォンで
この不動産会社を見る

|
- 提携サイト等より掲載されている物件情報につきましては、不動産会社詳細情報にリンクされていないものがあります。
- 物件に関するお問合せは、物件詳細ページの「情報提供会社」に表示されている不動産会社へ直接お願いいたします。
- 間取図は、現況を優先させていただきます。
- 映像は物件の一部を撮影したものです。物件の契約にあたっての最終判断はご自身の判断に基づいて行ってください。
- 仲介手数料について

アットホームは物件情報の適正化に努めております。
内容に誤りがある場合にはこちらへご連絡ください。