北海道札幌市東区北十五条東18丁目(環状通東駅)の賃貸:物件詳細
交通 所在地 |
駅徒歩 |
賃料 管理費等 |
敷金/保証金 礼金 |
間取り 面積 |
物件種目 築年月 |
|
札幌市東豊線/環状通東
北海道札幌市東区北十五条東18丁目
|
4分
|
4.8万円
3,000円
|
なし / なし
なし
|
1LDK
31.03m²
|
賃貸マンション
2007年9月(築18年4ヶ月)
|
最上階、IT重説対応物件、保証人不要
|
| 交通 | 札幌市東豊線 環状通東駅 徒歩4分 |
|---|
| その他の交通 | 札幌市東豊線 東区役所前駅 徒歩17分 札幌市東豊線 元町駅 徒歩20分 |
| 所在地 |
北海道札幌市東区北十五条東18丁目
|
| 物件種目 |
賃貸マンション |
| 賃料 |
4.8万円 |
管理費等 |
3,000円 |
| 敷金 / 保証金 |
なし / なし |
礼金 |
なし |
| 敷引 |
- |
保証金償却 |
- |
| その他一時金 |
ハウスクリーニング:33,000円 |
保険等 |
要 2年 23,500円 |
| 維持費等 |
リペアサービス:1,650円/月 |
| 間取り |
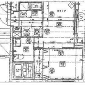
1LDK(LD7.4・洋室4.2・K2) |
専有面積 |
31.03m² |
| 築年月 |
2007年9月(築18年4ヶ月)
|
階建 / 階 |
4階建 / 4階 |
| 建物構造 |
RC |
総戸数 |
12戸 |
| 主要採光面 |
|
駐車場 |
有 11,000円/月 |
| バイク置き場 |
無 |
駐輪場 |
無 |
| 建物名・部屋番号 |
ブランノワールエピオス |
ペット |
-
|
| リフォーム履歴 |
- |
| リノベーション履歴 |
- |
| 備考 |
賃貸保証等:加入要(ライフ de ホッ 初回保証料:月額賃料等の50% 最低保証料金:20000円 月額保証料:1.7% 年間更新料:10000円 ※審査落ちした場合、別プランに変更になります。)
管理形態/管理員の勤務形態:-/-
IT重説対応物件
|
| エネルギー消費性能 |
- |
| 断熱性能 |
- |
| 目安光熱費 |
- |
| バス・トイレ |
バス・トイレ別、シャワー付洗面化粧台、洗面台、トイレ |
| キッチン |
- |
| セキュリティー |
オートロック |
| 収納 |
- |
| 設備・サービス |
洗濯機置場、給湯、プロパンガス、暖房 |
| TV・通信 |
インターネット使用料無料 |
| その他 |
- |
| 契約期間 |
2年 |
現況 |
空家 |
| 条件等 |
- |
入居可能時期 |
相談 |
| 更新料 |
9,900円 |
物件番号 |
1190678214 |
| 情報公開日 |
2025年12月12日 |
次回更新予定日 |
2025年12月26日 |
| ケータイ用バーコード |
- スマートフォンでこの物件を見る
- スマートフォンからもこの物件をご覧になれます。
|
※「-」と表示されている項目については、情報提供会社にご確認ください。
| 周辺施設 |
まいばすけっと北14条東15丁目店 |
| 距離 |
407m |
| 周辺施設 |
セイコーマート北16条東店 |
| 距離 |
285m |
| 周辺施設 |
ドラッグセイムス札幌苗穂店 |
| 距離 |
654m |
| 周辺施設 |
タイヤ館北16条環状通り |
| 距離 |
163m |
ここから簡単にお問い合わせをすることができます。
(SSLでの暗号化での送信を希望されるお客さまは
こちら
よりお問い合わせください)
お問い合わせを行う前に
「個人情報の取り扱いについて」を必ずお読みください。
「個人情報の取り扱いについて」に同意いただいた場合は「上記にご同意の上 確認画面へ進む」のボタンをクリックしてください。
個人情報の取り扱いについて
皆さまが送付された個人情報はアットホーム(株)のサーバを経由し、お問い合わせ先の不動産会社にメールまたはFAXにて転送されるためアットホーム(株)にも保管されます。アットホーム(株)で保管された個人情報の取り扱いについては、【こちら】をご覧ください。
また、本画面でご記入いただいた個人情報は、お問い合わせ先の不動産会社でも保管します。 お問い合わせ先の不動産会社が保管する個人情報の取り扱いについては、不動産会社に直接お問い合わせください。
北海道知事免許 空知(3)第498号 |
|---|
- 交通:
- JR札沼線/札幌駅 徒歩5分
- 北海道札幌市北区北八条西6丁目2-20 新和ビル4F
- TEL:
- 011-374-6188
- FAX:
- 011-374-6189
- 所属団体:
- (公社)全日本不動産協会会員(一社)北海道不動産公正取引協議会加盟
取引態様:仲介  - 10006406
|
- スマートフォンで
この不動産会社を見る

|
- 提携サイト等より掲載されている物件情報につきましては、不動産会社詳細情報にリンクされていないものがあります。
- 物件に関するお問合せは、物件詳細ページの「情報提供会社」に表示されている不動産会社へ直接お願いいたします。
- 間取図は、現況を優先させていただきます。
- 映像は物件の一部を撮影したものです。物件の契約にあたっての最終判断はご自身の判断に基づいて行ってください。
- 仲介手数料について

アットホームは物件情報の適正化に努めております。
内容に誤りがある場合にはこちらへご連絡ください。