東京都北区滝野川3丁目(西巣鴨駅)の賃貸:物件詳細
交通 所在地 |
駅徒歩 |
賃料 管理費等 |
敷金/保証金 礼金 |
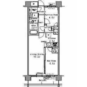
間取り 面積 |
物件種目 築年月 |
|
都営三田線/西巣鴨
東京都北区滝野川3丁目
|
10分
|
18.7万円
10,000円
|
1ヶ月 / なし
1ヶ月
|
1SLDK
50.29m²
|
賃貸マンション
2007年4月(築18年9ヶ月)
|
ペット相談、楽器相談、常時ゴミ出し可能、南向き
|
|
間取図
|
外観
|
<
その他の画像
>
|
| 交通 | 都営三田線 西巣鴨駅 徒歩10分 |
|---|
| その他の交通 | JR埼京線 板橋駅 徒歩14分 都営三田線 新板橋駅 徒歩9分 |
| 所在地 |
東京都北区滝野川3丁目
|
| 物件種目 |
賃貸マンション |
| 賃料 |
18.7万円 |
管理費等 |
10,000円 |
| 敷金 / 保証金 |
1ヶ月 / なし |
礼金 |
1ヶ月 |
| 敷引 |
- |
保証金償却 |
- |
| その他一時金 |
なし、鍵交換代等:16,500円~ |
保険等 |
不要 |
| 維持費等 |
- |
クレジットカード決済 |
初期費用可 |
| 間取り |
1SLDK(S4) |
専有面積 |
50.29m² |
| 築年月 |
2007年4月(築18年9ヶ月)
|
階建 / 階 |
7階建 / 2階 |
| 建物構造 |
RC |
総戸数 |
- |
| 主要採光面 |
南 |
駐車場 |
無 |
| バイク置き場 |
有 |
駐輪場 |
無 |
| 建物名・部屋番号 |
|
ペット |
相談 |
| リフォーム履歴 |
- |
| リノベーション履歴 |
- |
| 備考 |
賃貸保証等:加入要(初回保証委託料(最低20,000円):月額賃料等の50%、 2年目以降:9,600円\\/年)
管理形態/管理員の勤務形態:-/-
共用部には敷地内ごみ置き場・エレベータなどが揃っております。室内設備はBS・CATV・システムキッチンなどが揃っており、とても充実しています。今すぐ引っ越しをしたい方のご相談をお待ちしております。賃貸住宅をお探しの方は、お気軽に当社へご連絡下さい。当社は、お客様のご希望に適した住まいのご紹介をいたします。また、しっかりとサポート致しますのでご安心してお任せ下さい。
ぜひ一度見ていただきたい、「パークアクシス滝野川」です。薬や日用品を買うのに便利なマエノ薬局 滝野川店まで363mです。室内設備は洗面所独立・浴室乾燥機などが揃っているので、快適に過ごしやすいお部屋になります。北区で新しい住まいをお求めの方は翔大ホームにご連絡ください。お客様の希望条件にマッチしたお部屋をご紹介致します。
|
| エネルギー消費性能 |
- |
| 断熱性能 |
- |
| 目安光熱費 |
- |
| バス・トイレ |
バス・トイレ別、浴室乾燥機、追焚機能、シャワー付洗面化粧台、洗面所独立、洗面所、洗面台、シャワー、温水洗浄便座、トイレ |
| キッチン |
システムキッチン、3口以上コンロ、ガスコンロ可 |
| セキュリティー |
モニター付オートロック、オートロック、モニター付インターホン |
| 収納 |
収納スペース、クローゼット、シューズボックス |
| 設備・サービス |
室内洗濯機置場、洗濯機置場、都市ガス給湯、給湯、全居室フローリング、フローリング、都市ガス、エアコン |
| TV・通信 |
インターネット対応、光ファイバー、ケーブルTV、CS、BS端子 |
| その他 |
宅配BOX、バイク置き場、バルコニー、エレベーター |
| 契約期間 |
2年 |
現況 |
空家 |
| 条件等 |
- |
入居可能時期 |
相談 |
| 更新料 |
新賃料 1ヶ月 |
物件番号 |
1190758816 |
| 情報公開日 |
2025年12月18日 |
次回更新予定日 |
2026年1月1日 |
| ケータイ用バーコード |
- スマートフォンでこの物件を見る
- スマートフォンからもこの物件をご覧になれます。
|
※「-」と表示されている項目については、情報提供会社にご確認ください。
| 周辺施設 |
マエノ薬局 滝野川店 |
| 距離 |
363m |
写真を見る |
| 周辺施設 |
どらっぐぱぱす 王子本町店 |
| 距離 |
713m |
写真を見る |
| 周辺施設 |
セブンイレブン 北区王子本町1丁目店 |
| 距離 |
765m |
写真を見る |
| 周辺施設 |
セブンイレブン 北区西ヶ原3丁目店 |
| 距離 |
1583m |
写真を見る |
| 周辺施設 |
ファミリーマート 上池袋店 |
| 距離 |
1445m |
写真を見る |
ここから簡単にお問い合わせをすることができます。
(SSLでの暗号化での送信を希望されるお客さまは
こちら
よりお問い合わせください)
お問い合わせを行う前に
「個人情報の取り扱いについて」を必ずお読みください。
「個人情報の取り扱いについて」に同意いただいた場合は「上記にご同意の上 確認画面へ進む」のボタンをクリックしてください。
個人情報の取り扱いについて
皆さまが送付された個人情報はアットホーム(株)のサーバを経由し、お問い合わせ先の不動産会社にメールまたはFAXにて転送されるためアットホーム(株)にも保管されます。アットホーム(株)で保管された個人情報の取り扱いについては、【こちら】をご覧ください。
また、本画面でご記入いただいた個人情報は、お問い合わせ先の不動産会社でも保管します。 お問い合わせ先の不動産会社が保管する個人情報の取り扱いについては、不動産会社に直接お問い合わせください。
東京都知事免許(1)第108996号 |
|---|
- 交通:
- JR山手線/上野駅 徒歩5分
- 東京都台東区東上野4丁目26-12 コスモビル1階
- TEL:
- 03-5830-3540
- FAX:
- 03-5830-3541
- 所属団体:
- (公社)東京都宅地建物取引業協会会員(公社)首都圏不動産公正取引協議会加盟
取引態様:仲介  - 00276821
|
- スマートフォンで
この不動産会社を見る

|
- 提携サイト等より掲載されている物件情報につきましては、不動産会社詳細情報にリンクされていないものがあります。
- 物件に関するお問合せは、物件詳細ページの「情報提供会社」に表示されている不動産会社へ直接お願いいたします。
- 間取図は、現況を優先させていただきます。
- 映像は物件の一部を撮影したものです。物件の契約にあたっての最終判断はご自身の判断に基づいて行ってください。
- 仲介手数料について

アットホームは物件情報の適正化に努めております。
内容に誤りがある場合にはこちらへご連絡ください。