福岡県福岡市南区大橋3丁目(大橋駅)の賃貸:物件詳細
交通 所在地 |
駅徒歩 |
賃料 管理費等 |
敷金/保証金 礼金 |
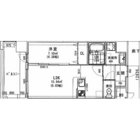
間取り 面積 |
物件種目 築年月 |
|
西鉄天神大牟田線/大橋
福岡県福岡市南区大橋3丁目
|
13分
|
8.5万円
5,000円
|
なし / なし
2ヶ月
|
1LDK
34.71m²
|
賃貸マンション
2026年2月
|
高齢者相談、二人入居可、24時間換気システム、IT重説対応物件、保証人不要
|
|
間取図
|
外観
|
<
その他の画像
>
|
|
|
| 交通 | 西鉄天神大牟田線 大橋駅 徒歩13分 |
|---|
| その他の交通 | 西鉄天神大牟田線 井尻駅 徒歩24分 JR鹿児島本線 笹原駅 徒歩28分 |
| 所在地 |
福岡県福岡市南区大橋3丁目
|
| 物件種目 |
賃貸マンション |
| 賃料 |
8.5万円 |
管理費等 |
5,000円 |
| 敷金 / 保証金 |
なし / なし |
礼金 |
2ヶ月 |
| 敷引 |
- |
保証金償却 |
- |
| その他一時金 |
室内清掃費用:55,000円 |
保険等 |
要 |
| 維持費等 |
町会費:300円/月、ライフサポート24+:880円/月 |
クレジットカード決済 |
初期費用可 |
| 間取り |
1LDK(LDK9.6、洋4.3) |
専有面積 |
34.71m² |
| 築年月 |
2026年2月
|
階建 / 階 |
11階建 / 6階 |
| 建物構造 |
RC |
総戸数 |
- |
| 主要採光面 |
西 |
駐車場 |
有 12,000円/月 |
| バイク置き場 |
有 |
駐輪場 |
有 |
| 建物名・部屋番号 |
ラシュール・イン大橋Ⅱ |
ペット |
-
|
| アピールポイント |
セキュリティ面は、オートロック・TVインターホンなど充実しているので、防犯対策もばっちりです。共用部には宅配ボックスが付いているため、非対面で荷物を受け取れます。収納はシューズボックス・クロゼットなど豊富なので、広々と空間を利用することも可能です。室内設備は浴室乾燥機・洗面所独立などが揃っており、とても充実しています。こちらの物件では初期費用をカードでお支払いいただけます。現在建設中です。インターネット回線の契約がいらないため、手続きが多い引越し作業中でも手間がかからず便利です。地域のゴミ捨て場まで行かずにサッとゴミ出しできるように、共用部にゴミ捨て場を設置しております。きれいで気持ちいい新築物件で新生活をスタートしませんか。このお部屋の入居可能予定は令和8年2月ですのでお早目にご連絡お願いします。地上11階建てのマンション。 |
| リフォーム履歴 |
- |
| リノベーション履歴 |
- |
| 備考 |
賃貸保証等:加入要(オリコ ・初回保証料:賃料合計の50%(最低保証料なし) ・月額支払手数料:賃料合計の1.2%(変動費がある場合変動費含む合計の1.2%) ※更新料1年毎10,000円)
管理形態/管理員の勤務形態:-/-
IT重説対応物件、外壁コンクリート
物件のお問い合わせはSumoSumoまで♪♪
荷物を注文する時に時間を気にしなくてよくなる宅配ボックスを共用部に備えています。収納はクロゼット・シューズボックスなどが備え付けられているので、衣類や日用品の収納に重宝します。セキュリティ面は、オートロック・TVインターホンなどを備え付けているので安心して暮らせます。室内設備は浴室乾燥機・洗面化粧台など大変充実しております。2口コンロが付いているので、同時に2つの料理できるので毎日忙しい人におすすめです。防犯対策もバッチリなマンションタイプの物件です。こちらのマンションでは初期費用をカードでお支払いいただけます。11階建ての建物で地域にマッチしたマンション。パソコンでもスマホでもタブレットでも、通信料金を気にすることなく好きな端末で好きな時間にインターネットに接続することが可能です。駅近くに立地する物件で、徒歩13分程でアクセスできます。敷地内に居住者用の駐輪場がある物件です。短期違約金あり:1年未満は2か月分、2年未満は1か月分の賃料。
|
| エネルギー消費性能 |
- |
| 断熱性能 |
- |
| 目安光熱費 |
- |
| バス・トイレ |
バス・トイレ別、浴室暖房、浴室乾燥機、シャワー付洗面化粧台、洗面所独立、洗面所、洗面台、シャワー、温水洗浄便座、トイレ |
| キッチン |
カウンターキッチン、システムキッチン、2口コンロ、ガスコンロ可 |
| セキュリティー |
モニター付オートロック、オートロック、モニター付インターホン、ディンプルキー、防犯カメラ |
| 収納 |
収納スペース、クローゼット、シューズボックス |
| 設備・サービス |
室内洗濯機置場、洗濯機置場、都市ガス給湯、給湯、全居室フローリング、フローリング、都市ガス、エアコン、冷房 |
| TV・通信 |
インターネット対応、インターネット使用料無料、CATVインターネット、ケーブルTV、CS、BS端子 |
| その他 |
宅配BOX、バイク置き場、バルコニー、駐輪場、エレベーター |
| 契約期間 |
2年 |
現況 |
未完成 |
| 条件等 |
- |
入居可能時期 |
2026年2月上旬予定 |
| 更新料 |
- |
物件番号 |
1190796716 |
| 情報公開日 |
2025年12月4日 |
次回更新予定日 |
2026年1月3日 |
| ケータイ用バーコード |
- スマートフォンでこの物件を見る
- スマートフォンからもこの物件をご覧になれます。
|
※「-」と表示されている項目については、情報提供会社にご確認ください。
| 周辺施設 |
新生堂薬局 南店 |
| 距離 |
42m |
写真を見る |
| 周辺施設 |
セブンイレブン 福岡みやけ通り店 |
| 距離 |
48m |
写真を見る |
| 周辺施設 |
福岡三宅郵便局 |
| 距離 |
267m |
写真を見る |
| 周辺施設 |
南警察署三宅交番 |
| 距離 |
471m |
写真を見る |
| 周辺施設 |
Maxvalu Express(マックスバリュ エクスプレス) 大橋店 |
| 距離 |
590m |
写真を見る |
| 周辺施設 |
サニー向新町店 |
| 距離 |
972m |
写真を見る |
ここから簡単にお問い合わせをすることができます。
(SSLでの暗号化での送信を希望されるお客さまは
こちら
よりお問い合わせください)
お問い合わせを行う前に
「個人情報の取り扱いについて」を必ずお読みください。
「個人情報の取り扱いについて」に同意いただいた場合は「上記にご同意の上 確認画面へ進む」のボタンをクリックしてください。
個人情報の取り扱いについて
皆さまが送付された個人情報はアットホーム(株)のサーバを経由し、お問い合わせ先の不動産会社にメールまたはFAXにて転送されるためアットホーム(株)にも保管されます。アットホーム(株)で保管された個人情報の取り扱いについては、【こちら】をご覧ください。
また、本画面でご記入いただいた個人情報は、お問い合わせ先の不動産会社でも保管します。 お問い合わせ先の不動産会社が保管する個人情報の取り扱いについては、不動産会社に直接お問い合わせください。
国土交通大臣免許(2)第9550号 |
|---|
- 交通:
- JR鹿児島本線/博多駅 徒歩5分
- 福岡県福岡市博多区博多駅前2丁目13-13 シャンソンビル博多4F
- TEL:
- 092-600-0801
- 所属団体:
- (公社)全日本不動産協会会員(公社)近畿地区不動産公正取引協議会加盟
取引態様:仲介  - 80507507
|
- スマートフォンで
この不動産会社を見る

|
- 提携サイト等より掲載されている物件情報につきましては、不動産会社詳細情報にリンクされていないものがあります。
- 物件に関するお問合せは、物件詳細ページの「情報提供会社」に表示されている不動産会社へ直接お願いいたします。
- 間取図は、現況を優先させていただきます。
- 映像は物件の一部を撮影したものです。物件の契約にあたっての最終判断はご自身の判断に基づいて行ってください。
- 仲介手数料について

アットホームは物件情報の適正化に努めております。
内容に誤りがある場合にはこちらへご連絡ください。