大阪府大阪市阿倍野区天王寺町北2丁目(寺田町駅)の賃貸:物件詳細
交通 所在地 |
駅徒歩 |
賃料 管理費等 |
敷金/保証金 礼金 |
間取り 面積 |
物件種目 築年月 |
|
JR大阪環状線/寺田町
大阪府大阪市阿倍野区天王寺町北2丁目
|
2分
|
6.7万円
6,000円
|
なし / なし
1ヶ月
|
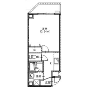
1K
25.00m²
|
賃貸マンション
2025年12月
|
常時ゴミ出し可能、角部屋、24時間セキュリティー、24時間換気システム、閑静な住宅街、外観タイル張り
|
|
間取図
|
外観
|
<
その他の画像
>
|
| 交通 | JR大阪環状線 寺田町駅 徒歩2分 |
|---|
| その他の交通 | 近鉄南大阪線 河堀口駅 徒歩7分 JR阪和線 美章園駅 徒歩12分 |
| 所在地 |
大阪府大阪市阿倍野区天王寺町北2丁目
|
| 物件種目 |
賃貸マンション |
| 賃料 |
6.7万円 |
管理費等 |
6,000円 |
| 敷金 / 保証金 |
なし / なし |
礼金 |
1ヶ月 |
| 敷引 |
- |
保証金償却 |
- |
| その他一時金 |
なし |
保険等 |
要 |
| 維持費等 |
- |
クレジットカード決済 |
初期費用可 |
| 間取り |
1K(洋室7.3・K2.5) |
専有面積 |
25.00m² |
| 築年月 |
2025年12月
|
階建 / 階 |
9階建 / 6階 |
| 建物構造 |
鉄骨造 |
総戸数 |
- |
| 主要採光面 |
北東 |
駐車場 |
有 23,000円/月 |
| バイク置き場 |
無 |
駐輪場 |
有 |
| 建物名・部屋番号 |
|
ペット |
-
|
| リフォーム履歴 |
- |
| リノベーション履歴 |
- |
| 備考 |
管理形態/管理員の勤務形態:-/巡回
外壁コンクリート、管理人巡回
|
| エネルギー消費性能 |
- |
| 断熱性能 |
- |
| 目安光熱費 |
- |
| バス・トイレ |
バス・トイレ別、シャワー付洗面化粧台、洗面所独立、洗面所、洗面台、温水洗浄便座、トイレ |
| キッチン |
システムキッチン、2口コンロ、ガスコンロ付 |
| セキュリティー |
オートロック、モニター付インターホン、防犯カメラ |
| 収納 |
全居室収納、収納スペース、クローゼット、シューズボックス |
| 設備・サービス |
室内洗濯機置場、洗濯機置場、給湯、全居室フローリング、フローリング、プロパンガス、エアコン、冷房、照明器具 |
| TV・通信 |
インターネット使用料無料、光ファイバー、ケーブルTV、CS、BS端子 |
| その他 |
宅配BOX、バルコニー、駐輪場、エレベーター |
| 契約期間 |
2年 |
現況 |
空家 |
| 条件等 |
- |
入居可能時期 |
即時 |
| 更新料 |
- |
物件番号 |
1190988214 |
| 情報公開日 |
2025年12月14日 |
次回更新予定日 |
2025年12月28日 |
| ケータイ用バーコード |
- スマートフォンでこの物件を見る
- スマートフォンからもこの物件をご覧になれます。
|
※「-」と表示されている項目については、情報提供会社にご確認ください。
| 周辺施設 |
ドン・キホーテ寺田町駅店 |
| 距離 |
271m |
写真を見る |
| 周辺施設 |
ビエラ寺田町 |
| 距離 |
272m |
写真を見る |
| 周辺施設 |
ファミリーマート×イズミヤ寺田町東店 |
| 距離 |
157m |
写真を見る |
| 周辺施設 |
食品館アプロ源ヶ橋店 |
| 距離 |
290m |
写真を見る |
| 周辺施設 |
ライフ寺田町駅前店 |
| 距離 |
584m |
写真を見る |
| 周辺施設 |
万代天王寺店 |
| 距離 |
762m |
写真を見る |
| 周辺施設 |
サンディ天王寺町店 |
| 距離 |
817m |
写真を見る |
| 周辺施設 |
ローソン天王寺町北二丁目店 |
| 距離 |
90m |
写真を見る |
ここから簡単にお問い合わせをすることができます。
(SSLでの暗号化での送信を希望されるお客さまは
こちら
よりお問い合わせください)
お問い合わせを行う前に
「個人情報の取り扱いについて」を必ずお読みください。
「個人情報の取り扱いについて」に同意いただいた場合は「上記にご同意の上 確認画面へ進む」のボタンをクリックしてください。
個人情報の取り扱いについて
皆さまが送付された個人情報はアットホーム(株)のサーバを経由し、お問い合わせ先の不動産会社にメールまたはFAXにて転送されるためアットホーム(株)にも保管されます。アットホーム(株)で保管された個人情報の取り扱いについては、【こちら】をご覧ください。
また、本画面でご記入いただいた個人情報は、お問い合わせ先の不動産会社でも保管します。 お問い合わせ先の不動産会社が保管する個人情報の取り扱いについては、不動産会社に直接お問い合わせください。
大阪府知事免許(2)第59918号 |
|---|
- 交通:
- 地下鉄御堂筋線/西中島南方駅 徒歩1分
- 大阪府大阪市淀川区西中島3丁目21-5 大有West Bld. 2F
- TEL:
- 06-6755-9121
- FAX:
- 06-6755-9128
- 所属団体:
- (公社)全日本不動産協会会員(公社)近畿地区不動産公正取引協議会加盟
取引態様:仲介  - 50111835
|
- スマートフォンで
この不動産会社を見る

|
- 提携サイト等より掲載されている物件情報につきましては、不動産会社詳細情報にリンクされていないものがあります。
- 物件に関するお問合せは、物件詳細ページの「情報提供会社」に表示されている不動産会社へ直接お願いいたします。
- 間取図は、現況を優先させていただきます。
- 映像は物件の一部を撮影したものです。物件の契約にあたっての最終判断はご自身の判断に基づいて行ってください。
- 仲介手数料について

アットホームは物件情報の適正化に努めております。
内容に誤りがある場合にはこちらへご連絡ください。