東京都板橋区小豆沢1丁目(志村坂上駅)の賃貸:物件詳細
交通 所在地 |
駅徒歩 |
賃料 管理費等 |
敷金/保証金 礼金 |
間取り 面積 |
物件種目 築年月 |
|
都営三田線/志村坂上
東京都板橋区小豆沢1丁目
|
6分
|
10.9万円
10,000円
|
1ヶ月 / なし
1ヶ月
|
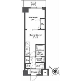
1DK
26.63m²
|
賃貸マンション
2021年3月(築4年10ヶ月)
|
ペット相談、IT重説対応物件
|
|
間取図
|
外観
|
<
その他の画像
>
|
| 交通 | 都営三田線 志村坂上駅 徒歩6分 |
|---|
| その他の交通 | 都営三田線 本蓮沼駅 徒歩8分 都営三田線 志村三丁目駅 徒歩19分 |
| 所在地 |
東京都板橋区小豆沢1丁目
|
| 物件種目 |
賃貸マンション |
| 賃料 |
10.9万円 |
管理費等 |
10,000円 |
| 敷金 / 保証金 |
1ヶ月 / なし |
礼金 |
1ヶ月 |
| 敷引 |
- |
保証金償却 |
- |
| その他一時金 |
室内清掃費用:49,500円、鍵交換代等:33,000円~ |
保険等 |
要 2年 16,550円 |
| 維持費等 |
- |
| 間取り |
1DK(DK5.2、洋4.6) |
専有面積 |
26.63m² |
| 築年月 |
2021年3月(築4年10ヶ月)
|
階建 / 階 |
8階建 / 5階 |
| 建物構造 |
RC |
総戸数 |
- |
| 主要採光面 |
北東 |
駐車場 |
空無 |
| バイク置き場 |
有 |
駐輪場 |
有 |
| 建物名・部屋番号 |
コンフォリア志村坂上 |
ペット |
相談 |
| リフォーム履歴 |
- |
| リノベーション履歴 |
- |
| 備考 |
賃貸保証等:加入要(保証料:賃料等の50%(最低2万)、月額保証料:賃料等の1%(更新料無))
管理形態/管理員の勤務形態:-/-
IT重説対応物件
ペット相談可♪インターネット無料♪オートロック付きで安心
ペット相談可:小型犬1匹または猫2匹まで、敷金1ヶ月追加。
|
| エネルギー消費性能 |
- |
| 断熱性能 |
- |
| 目安光熱費 |
- |
| バス・トイレ |
バス・トイレ別、浴室乾燥機、洗面所独立、洗面所、シャワー、温水洗浄便座、トイレ |
| キッチン |
システムキッチン、独立型キッチン、2口コンロ、ガスコンロ付、ガスコンロ可 |
| セキュリティー |
モニター付オートロック、オートロック、モニター付インターホン、ダブルロックドア、防犯カメラ |
| 収納 |
収納スペース、クローゼット、シューズボックス |
| 設備・サービス |
室内洗濯機置場、洗濯機置場、給湯、エアコン |
| TV・通信 |
インターネット対応、インターネット使用料無料、CS |
| その他 |
宅配BOX、バイク置き場、バルコニー、駐輪場、エレベーター |
| 契約期間 |
2年 |
現況 |
空家 |
| 条件等 |
- |
入居可能時期 |
即時 |
| 仲介手数料 |
1.1ヶ月 |
|
|
| 更新料 |
新賃料 1ヶ月 |
物件番号 |
1191766016 |
| 情報公開日 |
2025年12月6日 |
次回更新予定日 |
2025年12月20日 |
| ケータイ用バーコード |
- スマートフォンでこの物件を見る
- スマートフォンからもこの物件をご覧になれます。
|
※「-」と表示されている項目については、情報提供会社にご確認ください。
| 周辺施設 |
肉のハナマサ 板橋志村店 |
| 距離 |
218m |
写真を見る |
| 周辺施設 |
まいばすけっと 志村1丁目店 |
| 距離 |
269m |
写真を見る |
| 周辺施設 |
Seven Town(セブン タウン) 小豆沢 |
| 距離 |
977m |
写真を見る |
| 周辺施設 |
志村ショッピングセンター |
| 距離 |
1555m |
写真を見る |
| 周辺施設 |
ファミリーマート 小豆沢一丁目店 |
| 距離 |
72m |
写真を見る |
| 周辺施設 |
板橋中央総合病院 |
| 距離 |
408m |
写真を見る |
ここから簡単にお問い合わせをすることができます。
(SSLでの暗号化での送信を希望されるお客さまは
こちら
よりお問い合わせください)
お問い合わせを行う前に
「個人情報の取り扱いについて」を必ずお読みください。
「個人情報の取り扱いについて」に同意いただいた場合は「上記にご同意の上 確認画面へ進む」のボタンをクリックしてください。
個人情報の取り扱いについて
皆さまが送付された個人情報はアットホーム(株)のサーバを経由し、お問い合わせ先の不動産会社にメールまたはFAXにて転送されるためアットホーム(株)にも保管されます。アットホーム(株)で保管された個人情報の取り扱いについては、【こちら】をご覧ください。
また、本画面でご記入いただいた個人情報は、お問い合わせ先の不動産会社でも保管します。 お問い合わせ先の不動産会社が保管する個人情報の取り扱いについては、不動産会社に直接お問い合わせください。
国土交通大臣免許(4)第7400号 |
|---|
- 交通:
- 都営三田線/志村坂上駅 徒歩1分
- 東京都板橋区志村1丁目14-11 1F
- TEL:
- 03-5915-2525
- FAX:
- 03-5915-2555
- 所属団体:
- (公社)全日本不動産協会会員(公社)首都圏不動産公正取引協議会加盟
取引態様:仲介  - 00277087
|
- スマートフォンで
この不動産会社を見る

|
- 提携サイト等より掲載されている物件情報につきましては、不動産会社詳細情報にリンクされていないものがあります。
- 物件に関するお問合せは、物件詳細ページの「情報提供会社」に表示されている不動産会社へ直接お願いいたします。
- 間取図は、現況を優先させていただきます。
- 映像は物件の一部を撮影したものです。物件の契約にあたっての最終判断はご自身の判断に基づいて行ってください。
- 仲介手数料について

アットホームは物件情報の適正化に努めております。
内容に誤りがある場合にはこちらへご連絡ください。