神奈川県川崎市幸区幸町3丁目(川崎駅)の賃貸:物件詳細
交通 所在地 |
駅徒歩 |
賃料 管理費等 |
敷金/保証金 礼金 |
間取り 面積 |
物件種目 築年月 |
|
JR東海道本線/川崎
神奈川県川崎市幸区幸町3丁目
|
8分
|
8万円
12,000円
|
なし / なし
2ヶ月
|
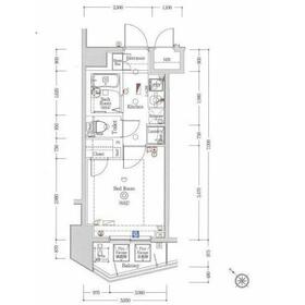
1K
21.35m²
|
賃貸マンション
2007年5月(築18年8ヶ月)
|
ペット相談、分譲タイプ、常時ゴミ出し可能、二人入居可、外観タイル張り
|
|
間取図
|
外観
|
<
その他の画像
>
|
|
|
| 交通 | JR東海道本線 川崎駅 徒歩8分 |
|---|
| その他の交通 | 京急本線 京急川崎駅 徒歩8分 京急大師線 港町駅 徒歩19分 |
| 所在地 |
神奈川県川崎市幸区幸町3丁目
|
| 物件種目 |
賃貸マンション |
| 賃料 |
8万円 |
管理費等 |
12,000円 |
| 敷金 / 保証金 |
なし / なし |
礼金 |
2ヶ月 |
| 敷引 |
- |
保証金償却 |
- |
| その他一時金 |
契約事務手数料11000:11,000円 |
保険等 |
要 |
| 維持費等 |
- |
クレジットカード決済 |
初期費用可 |
| 間取り |
1K(洋室6) |
専有面積 |
21.35m² |
| 築年月 |
2007年5月(築18年8ヶ月)
|
階建 / 階 |
10階建 / 9階 |
| 建物構造 |
RC |
総戸数 |
- |
| 主要採光面 |
|
駐車場 |
近有 27,500円/月 |
| バイク置き場 |
有 |
駐輪場 |
有 |
| 建物名・部屋番号 |
アルテシモ ヴィスタ |
ペット |
相談 |
| アピールポイント |
☆当店の強みをお伝えします☆
①クレジットカードの初期費用分割払いを、喜んでお受けいたします(クレジットカード以外もOK)
②他社様がネットに掲載されている物件は、全てお調べし、【好条件】でご紹介いたします
他社様で「お申込み」された物件でも、【好条件】でご紹介できる場合がございます
③「審査が不安…」「保証人がいない…」「値段交渉をして欲しい…」などなど、
どのようなご条件でも、遠慮なくご相談いただけます
④ご検討されている「エリア」「沿線」が「広範囲」「複数」でも、一度で漏れなくお探しいただけます
ポータルサイトや他社サイトで気になるお部屋がございましたらお気軽にご相談ください
お客様のご来店を心よりお待ちしております |
| リフォーム履歴 |
- |
| リノベーション履歴 |
- |
| 備考 |
賃貸保証等:加入要(初回:賃料等の50%、更新料:1.5万円、月額賃料等の1500円、口座振替手数料330円)
管理形態/管理員の勤務形態:-/-
外壁コンクリート
ペット飼育可(小型犬猫どちらか1匹まで敷金1ヶ月積み増し償却1ヶ月)/収納手数料330円月額/あんしんサポートクラブ月額1700円/鍵を複製する場合1本3300円/短期解約違約金1年半未満賃料の1ヶ月分/退去時清掃費¥49500/エアコン洗浄用16500円台/CATVでBSCS視聴可(CATVBS別途契約要有償)/駐輪場代借主負担(使用時)/バイク置場代借主負担(使用時)/鍵交換費用 23100円(退去時)
|
| エネルギー消費性能 |
- |
| 断熱性能 |
- |
| 目安光熱費 |
- |
| バス・トイレ |
バス・トイレ別、浴室乾燥機、洗面台、シャワー、温水洗浄便座、トイレ |
| キッチン |
システムキッチン、2口コンロ、ガスコンロ付、グリル |
| セキュリティー |
オートロック、モニター付インターホン、ディンプルキー、防犯カメラ、火災警報器(報知機) |
| 収納 |
- |
| 設備・サービス |
室内洗濯機置場、給湯、フローリング、都市ガス、エアコン |
| TV・通信 |
インターネット対応、インターネット使用料無料、光ファイバー、ケーブルTV、BS端子 |
| その他 |
宅配BOX、バイク置き場、バルコニー、駐輪場、エレベーター |
| 契約期間 |
2年 |
現況 |
居住中 |
| 条件等 |
- |
入居可能時期 |
2026年1月下旬予定 |
| 更新料 |
- |
物件番号 |
1191816117 |
| 情報公開日 |
2025年12月21日 |
次回更新予定日 |
2026年1月4日 |
| ケータイ用バーコード |
- スマートフォンでこの物件を見る
- スマートフォンからもこの物件をご覧になれます。
|
※「-」と表示されている項目については、情報提供会社にご確認ください。
| 周辺施設 |
ラゾーナ川崎プラザ |
| 距離 |
909m |
写真を見る |
| 周辺施設 |
北野エースラゾーナ川崎店 |
| 距離 |
881m |
写真を見る |
| 周辺施設 |
クリエイトエス・ディー川崎駅北口店 |
| 距離 |
862m |
写真を見る |
| 周辺施設 |
ユニディラゾーナ川崎店 |
| 距離 |
911m |
写真を見る |
| 周辺施設 |
グローバルBiz専門職大学 |
| 距離 |
819m |
写真を見る |
| 周辺施設 |
関クリニック |
| 距離 |
596m |
写真を見る |
ここから簡単にお問い合わせをすることができます。
(SSLでの暗号化での送信を希望されるお客さまは
こちら
よりお問い合わせください)
お問い合わせを行う前に
「個人情報の取り扱いについて」を必ずお読みください。
「個人情報の取り扱いについて」に同意いただいた場合は「上記にご同意の上 確認画面へ進む」のボタンをクリックしてください。
個人情報の取り扱いについて
皆さまが送付された個人情報はアットホーム(株)のサーバを経由し、お問い合わせ先の不動産会社にメールまたはFAXにて転送されるためアットホーム(株)にも保管されます。アットホーム(株)で保管された個人情報の取り扱いについては、【こちら】をご覧ください。
また、本画面でご記入いただいた個人情報は、お問い合わせ先の不動産会社でも保管します。 お問い合わせ先の不動産会社が保管する個人情報の取り扱いについては、不動産会社に直接お問い合わせください。
国土交通大臣免許(3)第8522号 |
|---|
- 交通:
- JR京浜東北線/川崎駅 徒歩1分
- 神奈川県川崎市川崎区駅前本町11-1 パシフィックマークス川崎 8階
- TEL:
- 044-221-4180
- FAX:
- 044-221-4181
- 所属団体:
- (公社)全日本不動産協会会員(公社)首都圏不動産公正取引協議会加盟
取引態様:仲介  - 00785866
|
- スマートフォンで
この不動産会社を見る

|
- 提携サイト等より掲載されている物件情報につきましては、不動産会社詳細情報にリンクされていないものがあります。
- 物件に関するお問合せは、物件詳細ページの「情報提供会社」に表示されている不動産会社へ直接お願いいたします。
- 間取図は、現況を優先させていただきます。
- 映像は物件の一部を撮影したものです。物件の契約にあたっての最終判断はご自身の判断に基づいて行ってください。
- 仲介手数料について

アットホームは物件情報の適正化に努めております。
内容に誤りがある場合にはこちらへご連絡ください。